Angeboten wird ein ca. im Jahr 1984 in Holzrahmenbauweise errichtetes, modernisiertes Einfamilienhaus im dänischen Stil, welches derzeit in 2 Wohneinheiten aufgeteilt ist. Dies bietet größtmögliche Vielseitigkeit - entweder man belässt die Nutzung von 2 Wohneinheiten oder stellt den ursprünglichen Zustand eines Einfamilienhauses wieder her, was sich leicht durch Entfernen einer (Leichtbau)-Wand im Erdgeschoss und einer (kurzen) Wand im Obergeschoss erreichen lässt. Insgesamt bietet das Haus 6 Zimmer plus 2 halbe Zimmer bei einer Wohnfläche von ca. 190m². Das schöne Grundstück ist ca. 540m² groß.
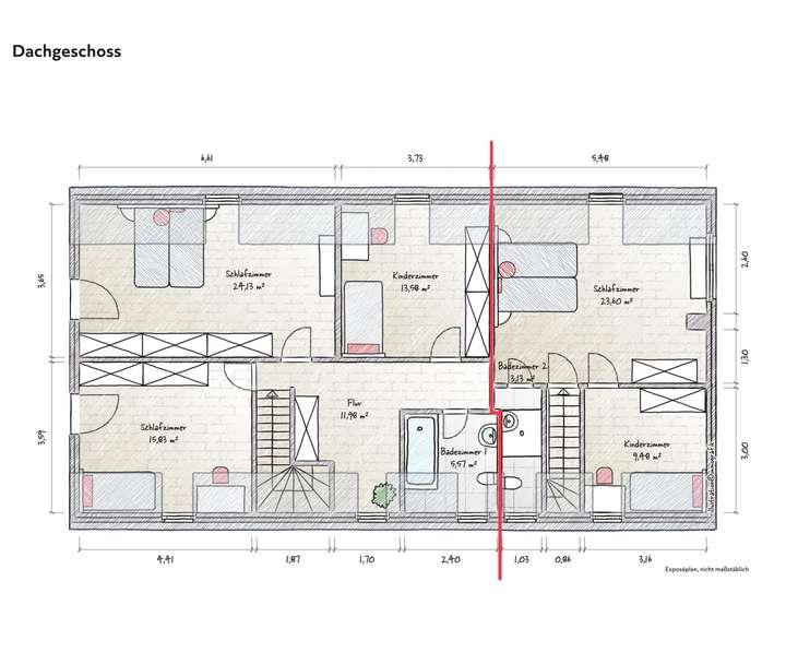
Die erste Wohneinheit verfügt im EG über einen Windfang, eine Diele, eine Wohnküche mit angeschlossenem Hauswirtschaftsraum sowie über ein Schlafzimmer und ein Duschbad. Im Obergeschoss stehen neben einem Flur weitere 3 Zimmer und ein Vollbad zur Verfügung.
Die zweite Wohneinheit bietet im EG einen Flur, ein Vollbad, ein halbes Zimmer sowie ein großes Wohn-/Esszimmer mit Anschlüssen für eine Einbauküche und Zugang zu einer nach Süden ausgerichteten Terrasse. Im OG, welches erst zu einem späteren Zeitpunkt ausgebaut worden ist, befindet sich ein großes Zimmer mit Zugang zu einem weiteren, halben Zimmer sowie ein Duschbad.
Fügt man beide Einheiten wieder zusammen, hat man ein überaus großzügiges und familienfreundliches Einfamilienhaus. Das gesamte Objekt präsentiert sich gepflegt und zeitlos modernisiert mit dem gemütlichen Charme dänischer Häuser.
Im vorderen Grundstücksbereich steht ein PKW-Stellplatz zur Verfügung. Im herrlich eingewachsenen Garten gibt es einen kleines Gartenhaus, welches Platz bereit hält für Gartengeräte und ähnliches.
Lassen Sie sich eine Besichtigung dieser charmanten Immobilie nicht entgehen!
Modernisiertes, vielseitiges Einfamilienhaus mit viel Platz in toller Lage
22395 Hamburg
Die vollständige Adresse der Immobilie erhalten Sie vom Anbieter.
Auf Karte anzeigen
Die vollständige Adresse der Immobilie erhalten Sie vom Anbieter.
Finanzierungszertifikat
In nur zwei Minuten zu Ihrem persönlichen Finanzierungszertifkat.
Infos
| Haustyp | Einfamilienhaus |
|---|---|
| Wohnfläche ca. | 190 m2 |
| Grundstücksfläche | 540 m2 |
| Zimmer | 7,5 |
Kosten
| Kaufpreis |
789.000 € |
|---|---|
| Provision |
2,975 % inkl. ges. MwSt. |
Finanzierungsrechner:
Kaufpreis:
600.000 €
Eigenkapital:
600.000 €
Monatliche Rate
0 €
Effektiver Jahreszins
0 %
Sollzinsbindung
10 Jahre
Bausubstanz & Energieausweis
| Baujahr | 1984 |
|---|---|
| Bauphase | Haus fertig gestellt |
| Objektzustand | Modernisiert |
| Heizungsart | Zentralheizung |
| Wesentliche Energieträger | Gas |
| Energieausweis | liegt vor |
| Energieausweistyp | Bedarfsausweis |
| Energieverbrauchskennwert | 131,7 kWh/(m²*a) |
| Energieeffizienzklasse | E |
131,7
kWh/(m²*a)
Energieeffizienzklasse E
- A+
- A
- B
- C
- D
- E
- F
- G
- H
- 0
- 25
- 50
- 75
- 100
- 125
- 150
- 175
- 200
- 225
- >250
Beschreibung des Objekts
Ausstattung
Allgemein:
+ Holzständerbauweise (Hosby Haus)
+ Satteldach mit Pfanneneindeckung
+ Gaszentralheizung mit zentraler Warmwasserversorgung
+ Luftwärmepumpe mit Wärmerückgewinnung
+ Holzfensterrahmen mit Dreifachverglasung
+ derzeit unterteilt in 2 Wohneinheiten; leicht zurück zu bauen
+ Kriechkeller (keine Stehhöhe)
Wohneinheit 1:
+ Wohnküche mit ansprechender Einbauküche und Sitzmöglichkeiten
+ Hauswirtschaftsraum mit Außenzugang
+ ein separates Zimmer im EG
+ modernes Duschbad
+ geräumige Diele
+ 3 Zimmer im OG
+ modernes Vollbad im OG
+ Heizraum
Wohneinheit 2:
+ großes Wohn-/Esszimmer mit Anschlüssen für Einbauküche
+ Kaminofen
+ Terrasse
+ ein halbes Zimmer
+ Vollbad mit Waschmaschinenanschluss im EG
+ 1,5 Zimmer im OG
+ Duschbad im OG
Außenanlagen:
+ Stellplatz
+ Gartenhäuschen (Schuppen)
+ schöner, eingewachsener Garten
+ sehr ruhige Lage
Ein kleiner Bereich des Dachgeschosses war ursprünglich ein Bodenraum. Dieser wurde später zu Wohnzwecken ausgebaut. Es handelt sich dabei um den Dachgeschoss-Bereich der Wohneinheit II.
Lage
Bergstedt ist ein Stadtteil im Nordosten der Freien und Hansestadt Hamburg. Es ist Teil der sogenannten „Walddörfer“ und gehört zum Bezirk Wandsbek. Angrenzende Stadtteile sind Sasel, Volksdorf, Lemsahl-Mellingstedt und Wohldorf-Ohlstedt. Bergstedts Infrastruktur ist als sehr gut zu bezeichnen. Alle Einrichtungen, die zum täglichen Leben benötigt werden, sind in Bergstedt selbst oder in den angrenzenden Stadtteilen vorhanden: Schulen, Kindertagesstätten, Lebensmittelmärkte, Discounter, Ärzte, Banken, Restaurants. Die Hamburger Innenstadt erreicht man mit dem PKW in gut 30 Minuten, den Hamburger Flughafen in gut 20 Minuten. Beide Ziele sind auch mit öffentlichen Verkehrsmitteln (HVV) zu erreichen. Für weiteren „Einkaufsspaß“ steht das Alstertal-Einkaufszentrum in Poppenbüttel zur Verfügung, welches man mit dem PKW in nur 10 Minuten erreicht oder mit dem Bus in knapp 20 Minuten. Viele Vereine (kulturell und sportlich) machen den Stadtteil lebendig. Bergstedt ist ein sehr grüner Stadtteil, der eine hohe Lebensqualität vermittelt. Selbst im Ortskern sind noch viele Grünflächen vorhanden.
Sonstige Angaben
Bei ernsthaftem Interesse senden wir Ihnen gerne ein ausführliches Exposé zu. Bitte füllen Sie das Kontaktformular vollständig aus. Dies sorgt für eine schnellstmögliche Bearbeitung Ihrer Anfrage. Vielen Dank.
Käufercourtage:
Bei Abschluss des notariellen Kaufvertrages ist eine Vermittlungsprovision fällig, die in Höhe von 3,00 % des Kaufpreises inkl. der gesetzlichen MwSt. vom Käufer an uns zu zahlen ist.
Nebenkosten:
Alle Nebenkosten wie Grunderwerbssteuer in Höhe von ca. 5,50 % des Kaufpreises sowie die Notar- und Gerichtskosten trägt der Käufer.
Besichtigung:
Besichtigungen sind nur nach Terminvereinbarung möglich.
Finanzierung:
Für eine günstige und auf Ihre individuellen Wünsche zugeschnittene Finanzierung stehen Ihnen die LBS-Finanzierungsberater gern zur Verfügung. Sie werden zu allen Möglichkeiten der Immobilienfinanzierung umfassend beraten. Wenn möglich und sinnvoll, werden auch öffentliche Fördermittel wie z.B. KfW-Darlehen und staatliche Zulagen in die Finanzierungskonzepte mit eingebunden.
Hinweis zum Datenschutz:
Ihre Daten werden zum Zweck der Vertragsdurchführung, zur Erfüllung vertraglicher und vorvertraglicher Pflichten erhoben und genutzt. Unsere Datenschutzhinweise für Kunden und Interessenten finden Sie auf unserer Homepage. https://www.lbs-immoschleswigholstein.de/datenschutz/
Angaben Energie-Bedarfsausweis:
Baujahr Gebäude: 1984
Baujahr Wärmeerzeuger: 1984
Energieträger: Erdgas
Kennwert: 158,4 kWh/(m²a)
Klasse: E
Grundriss
Derzeitige Aufteilung EG
>
>
Derzeitige Aufteilung DG
>
>
24877591
>
>
24877601
>
>
Adresse
22395 Hamburg
Interessante Orte
Preis- und Lageinformationen
Preistrend für Bestandsimmobilien in Bergstedt