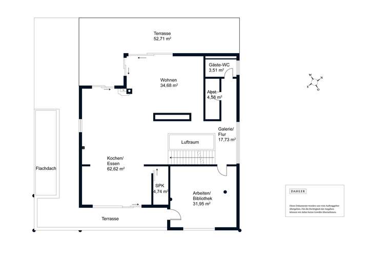
Diese moderne Villa in Bestlage von Friedrichsdorf - dem „Dillinger Hang“ - verkörpert exklusives Wohndesign und bietet ein perfektes Wohlfühlambiente. Die Architektur besticht durch eine klare, minimalistische Gestaltung, die in Kombination mit hochwertigen Materialien eine harmonische Atmosphäre schafft. Der offene Grundriss und die großzügigen Flächen lassen die Räume einladend wirken. Bereits beim Betreten des Hauses beeindruckt das lichtdurchflutete Entrée, eine freistehende Designtreppe führt in den zentralen Wohnbereich, der das Herzstück des Hauses bildet. Die repräsentative weitläufige Wohnetage ist geprägt durch einen modernen Grundriss mit bodentiefen Fenstern, einem großen Essbereich mit einer Designerküche sowie einem Panorama-Gaskamin, der für eine behagliche Stimmung sorgt. Vom Wohn- und Essbereich aus gelangt man direkt auf die sonnige Terrasse und in den geschmackvoll, geradlinig angelegten Garten. Der weitläufige, auf mehreren Ebenen terrassierte Außenbereich mit Wasserspiel verspricht erholsame Sonnenstunden in der Natur.
Ein großzügiges Arbeitszimmer mit hochwertigen Schreiner-Einbauten dient als perfekter Rückzugsort und bietet auch von dem angrenzenden Balkon einen beeindruckenden Blick auf die Frankfurter Skyline. Ein Gäste-WC, ein zweckmäßiger Abstellraum und eine geräumige Speisekammer komplettieren diese Etage.
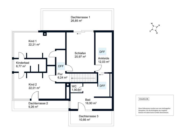
Im Obergeschoss der Villa befinden sich zwei funktionelle und große Kinderzimmer, die jeweils direkten Zugang in ein gemeinsames Bad haben. Der Elternbereich umfasst eine eigene Ankleide sowie ein geräumiges Badezimmer en Suite mit freistehender Badewanne und Zugang zu einer exklusiven Dachterrasse.
Im Parterre befinden sich ein Gästezimmer mit eigenem Bad, ein schallgedämmter Fitnessraum, sowie die üblichen Nutzräume und eine geräumige Garage. Diese bietet Platz für bis zu vier Fahrzeuge und ermöglicht den direkten Zugang zum Haus. Die sofort bezugsbereite Villa verspricht mit Ihrem durchdachten Konzept, den außergewöhnlichen Deckenhöhen, modernster Haustechnik/Smart-Home und innovativem Beleuchtungskonzept höchsten Komfort.
Dillinger Hang - Exklusivität und Moderne mit Skyline-Blick
61381 Friedrichsdorf
Die vollständige Adresse der Immobilie erhalten Sie vom Anbieter.
Auf Karte anzeigen
Die vollständige Adresse der Immobilie erhalten Sie vom Anbieter.
Finanzierungszertifikat
In nur zwei Minuten zu Ihrem persönlichen Finanzierungszertifkat.
Infos
| Haustyp | Villa |
|---|---|
| Etagenzahl | 2 |
| Wohnfläche ca. | 353 m2 |
| Nutzfläche | 120 m2 |
| Grundstücksfläche | 935 m2 |
| Bezugsfrei ab | nach Vereinbarung |
| Zimmer | 7 |
| Schlafzimmer | 4 |
| Badezimmer | 3 |
| Garage/Stellplatz | Garage |
| Anzahl Garage/Stellplatz | 4 |
Kosten
| Kaufpreis |
0 € |
|---|---|
| Provision |
3,57 % inkl. gesetzlicher MwSt. von aktuell 19 % bezogen auf den Kaufpreis |
Finanzierungsrechner:
Kaufpreis:
600.000 €
Eigenkapital:
600.000 €
Monatliche Rate
0 €
Effektiver Jahreszins
0 %
Sollzinsbindung
10 Jahre
Bausubstanz & Energieausweis
| Baujahr | 2016 |
|---|---|
| Objektzustand | Neuwertig |
| Qualität der Austattung | Luxus |
| Heizungsart | Fußbodenheizung |
| Energieausweis | liegt vor |
| Energieausweistyp | Bedarfsausweis |
| Energieverbrauchskennwert | 14,2 kWh/(m²*a) |
| Energieeffizienzklasse | A+ |
14,2
kWh/(m²*a)
Energieeffizienzklasse A+
- A+
- A
- B
- C
- D
- E
- F
- G
- H
- 0
- 25
- 50
- 75
- 100
- 125
- 150
- 175
- 200
- 225
- >250
Beschreibung des Objekts
Ausstattung
Ausstattungs-Highlights:
- hochwertiges, individuell geplantes Systemhaus in Holzständerbauweise der Firma Büdenbender mit massivem Keller
- Energieeffizienter KfW-55-Standard
- zentrale Steuerung der Gebäudetechnik mit Smart-Home-Automatisierung: Heizung, Licht, Warema-Raffstores, Schließ- und Alarmanlage
- großzügige ca. 2,75 m Deckenhöhen
- alle relevanten Räume mit Internetanschluss bzw. WLAN
- Beleuchtungskonzept mit hochwertigen eingebauten und dimmbaren LED-Deckenspots im ganzen Haus
- Wohnraumlüftungsanlage von Viessmann mit Klimamodul
- modern geradlinige Markenküche mit Siemens-Einbaugeräten und integriertem Vorratsbereich
- Panorama-Gaskamin für behagliche Wohlfühlwärme
- Designer-Bäder mit hochwertigen Einbauten, Marken-Sanitärelementen und Armaturen
- großzügige Dachterrassen mit herrlichem Weitblick zur Frankfurter Skyline sowie auf die angrenzenden Taunuswälder
- Schallgedämmter Fitnessraum
- Großraum-Garage mit vier PKW-Stellplätzen und direktem Zugang ins Haus
- zwei Regenwasser-Zisternen mit ca. 16.000 Litern für die Garten- und Teichbewässerung
- Design-Gartengerätehaus und Mähroboter „Husqvarna"
Lage
Friedrichsdorf ist die drittgrößte Stadt im hessischen Hochtaunuskreis und ein Zusammenschluss der Gemeinden Burgholzhausen, Dillingen, Köppern und Seulberg. Der beliebte "Dillinger Hang" ist nur drei Kilometer und somit fünf Autominuten von Bad Homburg, der Kreisstadt des Hochtaunuskreises, entfernt. Die reizvolle Lage zwischen der Metropole Frankfurt und den ruhigen Taunus-Wäldern sind Vorzüge des höchstgelegenen und westlichsten Stadtteils, das macht den Ort besonders attraktiv.
Obwohl Frankfurt nur 20 Autominuten entfernt ist, findet man alle Einkaufsgelegenheiten für den täglichen Bedarf, auch Ärzte und Kindergärten sind in großer Zahl vorhanden.
Vielfältige und hervorragende Freizeit- und Sportmöglichkeiten befinden sich in unmittelbarer Nähe. Die Grundschule ist nicht weit von dem Haus entfernt. Die kooperative Gesamtschule mit gymnasialer Oberstufe ist mit dem Fahrrad in fünf Minuten erreichbar.
Hinzu kommen die ausgezeichneten Verkehrsanbindungen in das Rhein-Main-Gebiet und den nahe gelegenen Flughafen Frankfurt über den direkten Autobahnanschluss oder mit der Taunusbahn sowie der S-Bahnlinie S5.
Grundriss
Wohnebene
>
>
Private Schlafebene
>
>
Nutz- und Gästeebene
>
>
Adresse
61381 Friedrichsdorf
Interessante Orte
Preis- und Lageinformationen
Preistrend für Bestandsimmobilien in Friedrichsdorf