Familienfreundlicher Einfamilienhaus mit großem Grundstück, Ausbaureserve und Doppelgarage.
Dieser großzügige Bungalow bietet mit rund 140 m² Wohnfläche und einem weitläufigen Grundstück von etwa 1.250 m² viel Raum für die ganze Familie. Das Haus verfügt über vier gut geschnittene Zimmer und überzeugt durch eine durchdachte Raumaufteilung. Wer zusätzlichen Platz benötigt, kann das Dachgeschoss ausbauen und so bis zu ca. 80 m² zusätzliche Wohnfläche schaffen. Ideal für ein Gästezimmer, ein Homeoffice oder einen eigenen Rückzugsort.
Laut Bebauungsplan ist zudem eine Hinterbebauung erlaubt. Somit eröffnet der hintere Teil des Grundstückes weiteres Entwicklungspotenzial.
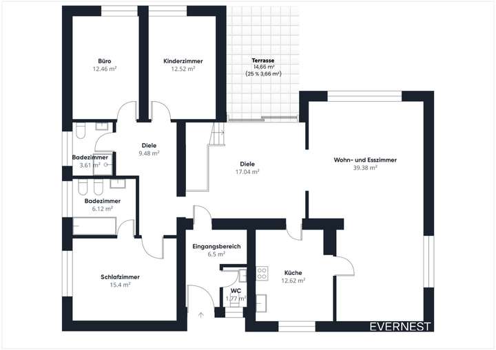
Beim Betreten des Hauses empfängt ein großzügiger Eingangsbereich die Bewohner. Von hier aus gelangt man in die zentrale Diele, die durch eine große Glasschiebetür direkten Zugang zu der überdachten Terrasse und dem Garten bietet. Der offene Wohn- und Essbereich ist lichtdurchflutet und überzeugt durch ein modernes, offenes Raumkonzept. Die derzeit separierte Küche ist über eine Tür mit dem Essbereich verbunden, lässt sich bei Bedarf aber problemlos öffnen, um einen noch großzügigeren Wohnbereich zu schaffen.
Die privaten Räume sind durch einen separaten Flur vom Gemeinschaftsbereich abgetrennt. Das Hauptschlafzimmer verfügt über ein Bad en Suite inklusive Badewanne. Zwei weitere Zimmer bieten flexible Nutzungsmöglichkeiten, sei es als Kinderzimmer, Büro oder Gästezimmer. Ein weiteres, bereits modernisiertes Bad mit ebenerdiger Dusche sowie ein separates Gäste-WC im Eingangsbereich komplettieren das Raumangebot auf dieser Ebene.
Zusätzlichen Platz bietet das Kellergeschoss mit einer Nutzfläche von ca. 84 m². Hier finden sich ein großer Partykeller mit eigenem WC, ein weiterer vielseitig nutzbarer Raum sowie ein Hauswirtschaftsraum. Mit einer Deckenhöhe von rund 2,30 m ist der Keller sehr gut nutzbar. Ob für Hobbys, als Stauraum oder für private Feiern.
Für Komfort sorgt die vorhandene Gaszentralheizung in Kombination mit einer Fußbodenheizung, die sich perspektivisch hervorragend für eine Wärmepumpe eignet.
Abgerundet wird das Angebot durch eine große Doppelgarage sowie die ruhige Lage in einem gewachsenen Wohngebiet mit sehr guter Anbindung. Die Immobilie ist sofort bezugsfrei und bietet eine solide Basis für individuelles Wohnen mit viel Potenzial.
Bungalow mit zusätzlichem Baugrundstück in Lehrte/ Hämelerwald
31275 Lehrte
Die vollständige Adresse der Immobilie erhalten Sie vom Anbieter.
Auf Karte anzeigen
Die vollständige Adresse der Immobilie erhalten Sie vom Anbieter.
Finanzierungszertifikat
In nur zwei Minuten zu Ihrem persönlichen Finanzierungszertifkat.
Infos
| Haustyp | Bungalow |
|---|---|
| Etagenzahl | 1 |
| Wohnfläche ca. | 143 m2 |
| Nutzfläche | 116,5 m2 |
| Grundstücksfläche | 1.250 m2 |
| Bezugsfrei ab | 2025-08-01 |
| Zimmer | 4 |
| Schlafzimmer | 3 |
| Badezimmer | 3 |
| Garage/Stellplatz | Garage |
| Anzahl Garage/Stellplatz | 2 |
Kosten
| Kaufpreis |
465.000 € |
|---|---|
| Provision |
3.57 % inkl. MwSt. Bei Abschluss eines notariellen Kaufvertrages ist eine Käuferprovision vom Käufer in Höhe von 3.57 % inkl. MwSt. aus dem Kaufpreis fällig. |
Finanzierungsrechner:
Kaufpreis:
600.000 €
Eigenkapital:
600.000 €
Monatliche Rate
0 €
Effektiver Jahreszins
0 %
Sollzinsbindung
10 Jahre
Bausubstanz & Energieausweis
| Baujahr | 1980 |
|---|---|
| Letzte Sanierung | 2006 |
| Objektzustand | Gepflegt |
| Qualität der Austattung | Normal |
| Heizungsart | Gas-Heizung |
| Wesentliche Energieträger | Gas |
| Energieausweis | liegt vor |
| Energieausweistyp | Verbrauchsausweis |
| Energieverbrauchskennwert | 119,2 kWh/(m²*a) |
| Energieeffizienzklasse | D |
119,2
kWh/(m²*a)
Energieeffizienzklasse D
- A+
- A
- B
- C
- D
- E
- F
- G
- H
- 0
- 25
- 50
- 75
- 100
- 125
- 150
- 175
- 200
- 225
- >250
Beschreibung des Objekts
Ausstattung
Doppelgarage
3 Badezimmer
3 Schlafzimmer
ausgebauter Keller
überdachte Terrasse
offener Wohn-Essbereich
Lage
Diese Immobilie befindet sich in ruhiger und beliebter Wohnlage von Hämelerwald, einem Ortsteil der Stadt Lehrte im Osten der Region Hannover. Das Umfeld ist geprägt von gepflegten Einfamilienhäusern und viel Grün. Ideal für jeden, der ein naturnahes und dennoch gut angebundenes Zuhause sucht.
Die örtliche Infrastruktur lässt keine Wünsche offen: Einkaufsmöglichkeiten, Bäckereien, Apotheken, Banken sowie Ärzte und Dienstleister des täglichen Bedarfs sind schnell erreichbar. Familien profitieren von mehreren Kindertagesstätten, einer Grundschule und einer Oberschule direkt im Ort.
Auch die Verkehrsanbindung ist hervorragend. Der Bahnhof Hämelerwald ist bequem erreichbar und bietet regelmäßige Zugverbindungen nach Hannover, Braunschweig und Wolfsburg – perfekt für Berufspendler. Die nahegelegene Autobahn A2 sorgt zusätzlich für eine schnelle Anbindung mit dem Auto in alle Richtungen.
Erholungs- und Freizeitmöglichkeiten bietet die Umgebung in Hülle und Fülle: Spaziergänge im Grünen, Fahrradtouren, Sportvereine und nahegelegene Waldsee schaffen ein hohes Maß an Lebensqualität in einem lebenswerten Wohnumfeld.
Grundriss
Erdgeschoss
>
>
Kellergeschoss
>
>
Dachgeschoss
>
>
Adresse
31275 Lehrte
Interessante Orte
Preis- und Lageinformationen
Preistrend für Bestandsimmobilien in Lehrte