Zum Verkauf steht eine Doppelhaushälfte aus dem Ursprungsbaujahr 1980, welche im Laufe der Jahre immer instand gehalten und gepflegt wurde. Diese Immobilie befindet sich in einer Anwohnerstraße und verfügt über einen hohen Wohnwert. Auf insgesamt ca. 170 m² Wohn- und Nutzfläche, zzgl. Garage und Fahrrad-/Geräteraum auf einem 1.000 m² großen Grundstück, bietet diese Immobilie alle Annehmlichkeiten eines schönen Wohnens.
Die Immobilie ist wie folgt aufgeteilt: Betreten über einen schönen Vorgarten und Windfang, erstreckt sich rechter Hand ein Gäste-WC. Über eine geräumige Diele, von wo die Zugänge zum Kellerbereich und den oberen Geschossen abgehen. Links davon erreicht man die Küche mit einer gemütlichen Essecke. Die Küche ist voll ausgestattet und bietet sämtliche Annehmlichkeiten für Hobbyköch*innen. Weitergehend befindet sich das großzügige Wohnzimmer mit Ausgang zur großen Terrasse und dem schön angelegten, parkähnlichen Garten. Dieser lädt mit verschiedenen gemütlichen Ecken zum Verweilen und Entspannen ein, wurde mit viel Liebe zum Detail angelegt und bietet den ganzen Tag sonnige, aber auch schattige Möglichkeiten.
Eine Garage mit Fahrrad-/Geräteraum rundet das Angebot ab. Zurück im Erdgeschoss gelangt man über eine bequeme Treppe in das Obergeschoss. Hier befindet sich ein sehr großzügiges Zimmer mit optimaler Belichtung. Ein saniertes Badezimmer mit einer geräumigen Dusche und Badewanne bietet sich hier ebenfalls. Weiterhin steht ein weiteres Zimmer zur Verfügung, ob als Kinder-/Gästezimmer oder als Büro, bietet sich hier an. Über eine Treppe vom großen Zimmer erreicht man das ausgebaute Dachgeschoss. Hier ist ein weiteres Zimmer mit Bad untergebracht.
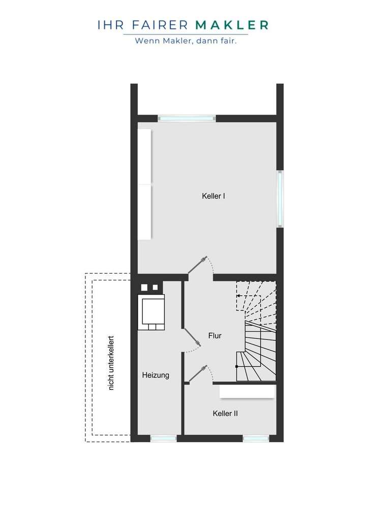
Die Immobilie ist unterkellert. Hier sind der Hauswirtschaftsraum, der Heizungsraum sowie eine Kellerbar untergebracht, die perfekt als weiteres Zimmer genutzt werden kann. Diese gemütliche Doppelhaushälfte mit ihren hochwertigen Ausstattungsmerkmalen und dem ausgebauten Dachgeschoss ist ideal für anspruchsvolle Käufer, die nach einem stilvollen und komfortablen Zuhause suchen.
Angefangen vom Keller über zwei Bäder und ein Gäste-WC bis hin zu den großzügigen Räumen und dem parkähnlichen Garten. Hier ist an alles gedacht und garantiert den Wohlfühlfaktor. Der charmante Grundriss und die durchdachte Raumaufteilung machen dieses Haus zu einer attraktiven Option für Interessenten, die ein harmonisches Wohnambiente schätzen.
Großzügige Doppelhaushälfte mit Garage in Burg-Grambke
28719 Bremen
Die vollständige Adresse der Immobilie erhalten Sie vom Anbieter.
Auf Karte anzeigen
Die vollständige Adresse der Immobilie erhalten Sie vom Anbieter.
Finanzierungszertifikat
In nur zwei Minuten zu Ihrem persönlichen Finanzierungszertifkat.
Infos
| Haustyp | Doppelhaushaelfte |
|---|---|
| Wohnfläche ca. | 170 m2 |
| Nutzfläche | 50 m2 |
| Grundstücksfläche | 1.000 m2 |
| Bezugsfrei ab | 01.11.2025 |
| Zimmer | 5 |
| Schlafzimmer | 3 |
| Badezimmer | 2 |
| Garage/Stellplatz | Garage |
| Anzahl Garage/Stellplatz | 2 |
Kosten
| Kaufpreis |
389.000 € |
|---|---|
| Provision |
1,5% zzgl. gesetzlicher MwSt. |
Finanzierungsrechner:
Kaufpreis:
600.000 €
Eigenkapital:
600.000 €
Monatliche Rate
0 €
Effektiver Jahreszins
0 %
Sollzinsbindung
10 Jahre
Bausubstanz & Energieausweis
| Baujahr | 1980 |
|---|---|
| Letzte Sanierung | 2000 |
| Objektzustand | Gepflegt |
| Qualität der Austattung | Normal |
| Heizungsart | Gas-Heizung |
| Wesentliche Energieträger | Gas |
| Energieausweis | liegt vor |
| Energieausweistyp | Bedarfsausweis |
| Energieverbrauchskennwert | 185,0 kWh/(m²*a) |
| Energieeffizienzklasse | F |
185,0
kWh/(m²*a)
Energieeffizienzklasse F
- A+
- A
- B
- C
- D
- E
- F
- G
- H
- 0
- 25
- 50
- 75
- 100
- 125
- 150
- 175
- 200
- 225
- >250
Beschreibung des Objekts
Ausstattung
- 2 Bäder + Gäste-WC
- Helle und freundliche Räume
- Garage
- Keller
- Einbauküche
- Abstellräume
- Gas-Brennwerttherme aus dem Jahre 2020
- Markise
- Kellerbar (als weiteres Zimmer nutzbar)
Lage
Die Lage der Doppelhaushälfte bietet eine Reihe von Vorteilen. Die Wohngegend bietet eine hohe Lebensqualität. Durch die Nähe zum Grambkermoor und dem Sportparksee Grambke ist den Möglichkeiten keine Grenzen gesetzt. Das Blockland ist ideal für ausgiebige Spaziergänge oder Fahrradtouren. Es gibt zahlreiche Einkaufsmöglichkeiten, Kindergärten, Schulen sowie öffentliche Verkehrsmittel in der Nähe, die bequem erreichbar sind. Die Umgebung lädt zu Spaziergängen in der Natur ein und bietet eine gute Anbindung an das Stadtzentrum. Der Bahnhof ist nur etwa 2 km entfernt und von dort aus gibt es (regelmäßige / alle 20 Minuten) Zugfahrten zum Bremer Hauptbahnhof, die nur 10 Minuten dauern.
Insgesamt bietet die Umgebung der Immobilie eine gute Infrastruktur und vielfältige Freizeitmöglichkeiten.
Sonstige Angaben
Bei den Angaben zu dem angebotenen Objekt sind wir auf die Auskünfte der Eigentümer, Bauherren, Bauträger und Behörden angewiesen. Für die Richtigkeit und Vollständigkeit der übermittelten Angaben können wir keine Haftung übernehmen. Es ist Sache des Kunden, diese Angaben auf ihre Richtigkeit hin zu überprüfen.
Grundriss
Grundriss Keller
>
>
Grundriss Erdgeschoss
>
>
Grundriss Obergeschoss
>
>
Adresse
28719 Bremen
Interessante Orte
Preis- und Lageinformationen
Preistrend für Bestandsimmobilien in Burg-Grambke