Bist du bereit? Lass uns loslegen!
Warum warten, wenn dein eigenes Zuhause nur eine Entscheidung entfernt ist?
Unsere Wegbegleiter holen dich dort ab, wo du gerade stehst, und ebnen deinen persönlichen Weg zum Wohneigentum.
Fehlt dir noch das passende Grundstück? Wir helfen dir, es zu finden.
Hast du Fragen zur Finanzierung? Wir haben die Lösung.
Bist du unsicher, welches Haus das richtige für dich ist? Unsere Experten unterstützen dich dabei.
Es gibt nie den perfekten Moment, aber es gibt den richtigen Schritt.
Dein Zuhause beginnt heute mit White&Black.
Maximaler Komfort, minimaler Aufwand.
85560 Ebersberg
Die vollständige Adresse der Immobilie erhalten Sie vom Anbieter.
Auf Karte anzeigen
Die vollständige Adresse der Immobilie erhalten Sie vom Anbieter.
Finanzierungszertifikat
In nur zwei Minuten zu Ihrem persönlichen Finanzierungszertifkat.
Infos
| Haustyp | Einfamilienhaus |
|---|---|
| Wohnfläche ca. | 170 m2 |
| Nutzfläche | 0 m2 |
| Grundstücksfläche | 500 m2 |
| Zimmer | 6 |
| Schlafzimmer | 5 |
| Badezimmer | 1 |
| Anzahl Garage/Stellplatz | 0 |
Kosten
| Kaufpreis |
1.026.678 € |
|---|---|
| Provision | Nein |
Finanzierungsrechner:
Kaufpreis:
600.000 €
Eigenkapital:
600.000 €
Monatliche Rate
0 €
Effektiver Jahreszins
0 %
Sollzinsbindung
10 Jahre
Bausubstanz & Energieausweis
| Baujahr | 2026 |
|---|---|
| Bauphase | Haus in Planung (projektiert) |
| Qualität der Austattung | Gehoben |
| Heizungsart | Wärmepumpe |
Beschreibung des Objekts
Ausstattung
THINK BLACK – All in.
- Schlüsselfertig & sofort bezugsbereit – ohne zusätzlichen Aufwand
- Kompletter Innenausbau – keine Handwerkersuche, kein Planungsstress
- Durchdachte Raumaufteilung – moderne Wohnkonzepte für jede Lebensphase
- Innovative Haustechnik – zukunftssicheres Wohnen mit höchster Effizienz
- Maximaler Komfort – alles fertig, alles drin
Für alle, die einfach einziehen und losleben wollen!
Lage
Ebersberg – Leben im Herzen Oberbayerns
Ebersberg, eine charmante Kleinstadt etwa 30 km östlich von München, bietet eine ideale Kombination aus naturnaher Lebensqualität und städtischer Infrastruktur. Eingebettet in die sanften Hügel des Alpenvorlands, umgeben von Wäldern und Seen, ist Ebersberg ein begehrter Wohnort für Familien, Paare und Pendler.
Infrastruktur und Verkehrsanbindung
Die Stadt punktet mit einer hervorragenden Verkehrsanbindung. Der S-Bahn-Anschluss (Linie S4) bringt Sie in rund 40 Minuten direkt ins Münchner Stadtzentrum. Zudem sind die Autobahnen A94 und A99 schnell erreichbar. Einkaufsmöglichkeiten, Ärzte, Apotheken und ein modernes Krankenhaus decken alle Bedürfnisse des täglichen Lebens ab.
Bildung und Schulen
Ebersberg bietet ein breites Bildungsangebot mit Kindergärten, Grundschulen und weiterführenden Schulen wie einem Gymnasium und einer Realschule. Für die Kleinsten gibt es zahlreiche Betreuungsplätze, während Jugendliche von einem vielfältigen Freizeitangebot profitieren.
Kultur und Freizeit
Die Stadt ist bekannt für ihr lebendiges Kulturleben mit Theatern, Museen und regelmäßigen Veranstaltungen. Highlights sind das Alte Kino als kulturelles Zentrum und der historische Marienplatz. Naturfreunde finden im nahegelegenen Ebersberger Forst zahlreiche Wander- und Radwege sowie einen Aussichtsturm mit Alpenblick.
Lebensqualität
Mit seiner Mischung aus Tradition und Moderne bietet Ebersberg einen hohen Wohnkomfort. Familienfreundliche Wohngebiete, vielfältige Freizeitmöglichkeiten und die Nähe zur Natur machen die Stadt zu einem attraktiven Ort für Jung und Alt.
Ebersberg – ein Ort, der Lebensqualität, Gemeinschaft und beste Voraussetzungen für die Zukunft vereint.
Sonstige Angaben
Das Haus ist projektiert inkl. Grundstück. Das Grundstück wird in Kommission angeboten bzw. direkt von Dritten verkauft. Daher kann der genannte Preis aufgrund aktueller Marktsituationen schwanken.
Die Bauabwicklung kann kurzfristig nach Grundstückserwerb begonnen werden. Bilder zeigen möglicherweise Sonderausstattungen, die auf Wunsch gegen Aufspreis zusätzlich angeboten werden können.
Erhalte in deinem persönlichen Beratungsgespräch kostenlos alle wichtigen Informationen zu diesem Projekt, insbesondere: Lage und Bebauungsmöglichkeiten des Baugrundstücks, Baukosten-Kalkulation, Finanzierungs- u. Förderungsmöglichkeiten sowie detaillierte Architektur- uund Grundrissplanung.
Wir freuen uns darauf, dich beraten zu dürfen!
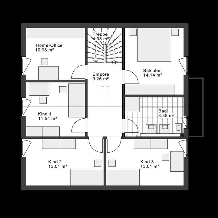
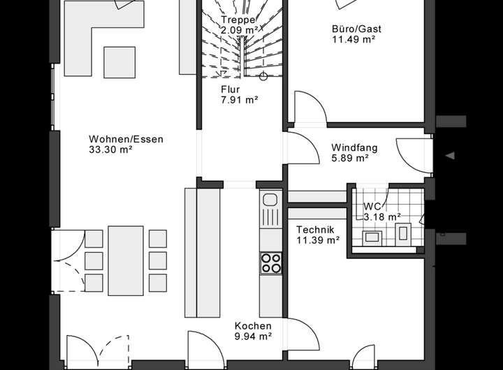
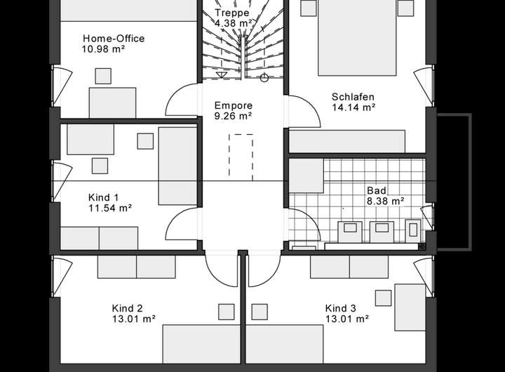
Grundriss
Grundriss DG
>
>
Adresse
85560 Ebersberg
Interessante Orte
Preis- und Lageinformationen
Preistrend für Bestandsimmobilien in Ebersberg