Es gibt Immobilien, die beeindrucken durch ihre Größe. Andere durch ihre Lage. Und dann gibt es solche Häuser wie dieses – die eine Geschichte erzählen.
Willkommen in einem eleganten Bungalow der Geschäftswelt von 1976, der auf einem weitläufigen, 1.106 m² großen Grundstück errichtet wurde – als Rückzugsort, als Repräsentationsfläche und als ruhiger Kraftplatz mit diskretem, uneinsehbarem Garten.
Schon der Vorplatz und die Hofeinfahrt mit einer Garage, die zwei Fahrzeuge hintereinander aufnimmt, sowie zwei weiteren Stellplätzen davor, unterstreicht: Hier wurde großzügig gedacht – und nachhaltig gebaut.
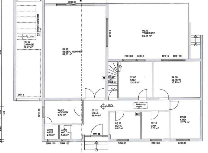
Sie betreten das Haus über eine breite Treppe, nur ein paar Stufen hinauf und Sie stehen direkt in einer hellen, großzügigen Diele, die mit ihren tiefgrünen Originalfliesen den eleganten Zeitgeist der 70er Jahre atmet. Die edlen Fliesen – einst ein luxuriöses Statement – sind nicht nur hervorragend erhalten, sondern verleihen dem Raum eine angenehm kühle Eleganz.
Zur Linken entdecken Sie eine diskret abgetrennte Garderobennische und gleich daneben ein Gäste-WC, komplett im originalen blauen Fliesendesign jener Zeit – ein Retro-Traum, der sich mühelos in moderne Konzepte umwandeln lässt.
Direkt angrenzend liegt die charaktervolle Küche in warmen Orangetönen, ebenfalls aus dem Baujahr. Hier spürt man: Kochen war schon damals mehr als eine Notwendigkeit – es war ein Lebensgefühl. Eine praktische Speisekammer ergänzt den Raum, und durch eine charmante Durchreiche lässt sich das Essen direkt ins Wohnzimmer weitergeben – eine kleine Hommage an die Gastfreundschaft vergangener Zeiten.
Das Herzstück des Hauses ist zweifellos das über 62 m² große Wohn- und Esszimmer, das Sie durch eine doppelflügelige Holzglastür betreten.
Hier eröffnet sich ein wahrer Wohntraum: Original Stäbchenparkett, ein imposanter Kamin als Blickfang, und die großen Fensterfronten mit Blick in den Garten schenken dem Raum Licht, Luft und Leben.
Die Fenster sind mit elektrischen Rollläden und Einbruchsicherungen ausgestattet – durchdacht, solide, sicher. Von hier gelangen Sie direkt auf die rund 50 m² große, sonnenverwöhnte Terrasse, überdacht von einer elektrischen Markise – ideal für lange Sommerabende, Grillfeste oder ganz einfach Ruhe im Grünen. Der Garten bietet viel Platz für neue Ideen! Ob Pool, die lang ersehnte Outdoorküche oder ein Kinderkletterparadies - hier können Sie sich austoben!
Im rechten Flügel des Hauses liegt der private Bereich – vier Schlafzimmer, davon drei Kinder- oder Arbeitszimmer und ein großzügiges Elternschlafzimmer. Zwei der Räume bieten direkten Zugang zur Terrasse – perfekt, um morgens mit der Sonne aufzuwachen oder den Tag in Stille ausklingen zu lassen.
Ein grün gefliestes Tageslichtbad mit Wanne und separater Dusche rundet diesen Bereich ab. Die Originalausstattung ist gepflegt und wartet auf neue Ideen, bietet aber bereits heute den Charme vergangener Wohnkultur.
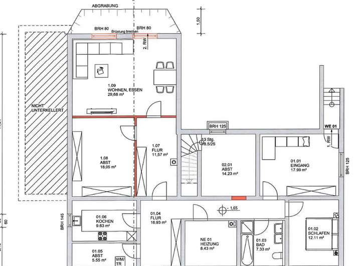
Im Untergeschoss geht es genauso großzügig weiter:
Neben einer geräumigen Waschküche mit eigenem Zugang in den Garten, einem Heizungsraum, einer Vorratskammer mit Kühlgebläse, einer weiteren Küche mit Anschlüssen, separatem WC und einem kompletten Wellnessbereich mit Solarium, Sauna, WC und Dusche, erwartet Sie ein echtes Highlight:
Ein 62 m² großer, wohnraummäßig ausgebauter Hobbyraum – ideal für Teenager, Gäste, Fitness, Atelier oder Homeoffice. Dank seiner Raumhöhe, Belichtung und Gestaltung ist dieser Bereich weit mehr als ein Keller – er ist ein zweites Wohnzimmer.
Besonders zukunftsweisend: Seit 2023 liegt eine Baugenehmigung für den Ausbau des Untergeschosses zu einer vollständigen zweiten Wohneinheit mit 127 m² Wohnfläche vor. Ob für die große Familie, zur Vermietung oder als eigenständige Generationenlösung – die Möglichkeiten sind grenzenlos.
Unternehmer Bungalow auf riesigem Grundstück
65479 Raunheim
Die vollständige Adresse der Immobilie erhalten Sie vom Anbieter.
Auf Karte anzeigen
Die vollständige Adresse der Immobilie erhalten Sie vom Anbieter.
Finanzierungszertifikat
In nur zwei Minuten zu Ihrem persönlichen Finanzierungszertifkat.
Infos
| Haustyp | Bungalow |
|---|---|
| Etagenzahl | 2 |
| Wohnfläche ca. | 244 m2 |
| Nutzfläche | 104 m2 |
| Grundstücksfläche | 1.106 m2 |
| Bezugsfrei ab | sofort |
| Zimmer | 6 |
| Schlafzimmer | 4 |
| Badezimmer | 1 |
| Garage/Stellplatz | Garage |
| Anzahl Garage/Stellplatz | 2 |
Kosten
| Kaufpreis |
849.500 € |
|---|---|
| Provision |
3,57 % |
Finanzierungsrechner:
Kaufpreis:
600.000 €
Eigenkapital:
600.000 €
Monatliche Rate
0 €
Effektiver Jahreszins
0 %
Sollzinsbindung
10 Jahre
Bausubstanz & Energieausweis
| Baujahr | 1976 |
|---|---|
| Letzte Sanierung | 2000 |
| Bauphase | Haus fertig gestellt |
| Objektzustand | Renovierungsbedürftig |
| Qualität der Austattung | Normal |
| Heizungsart | Öl-Heizung |
| Wesentliche Energieträger | Öl |
| Energieausweis | liegt vor |
| Energieausweistyp | Bedarfsausweis |
| Energieverbrauchskennwert | 541,8 kWh/(m²*a) |
| Energieeffizienzklasse | H |
541,8
kWh/(m²*a)
Energieeffizienzklasse H
- A+
- A
- B
- C
- D
- E
- F
- G
- H
- 0
- 25
- 50
- 75
- 100
- 125
- 150
- 175
- 200
- 225
- >250
Beschreibung des Objekts
Ausstattung
- Ölheizung aus dem Baujahr 1976
- Gasanschluss bereits im Haus vorhanden
- Bodendämmung im Dach
- Fassade in den frühen 2000ern modernisiert
- Außenbeleuchtung rund ums Haus sowie Stromanschlüsse im Garten
Lage
Das Haus liegt in einer zentral und , gewachsenen Wohngegend von Raunheim, die für ihre gute Nachbarschaft und angenehme Atmosphäre bekannt ist.
Einkaufsmöglichkeiten, Kitas, Schulen, Ärzte, Restaurants – alles befindet sich in unmittelbarer Nähe. Dank der S-Bahn-Anbindung (S8/S9) erreichen Sie Frankfurt in ca. 20 Minuten, den Flughafen in unter 10 Minuten – ideal für Berufspendler und Vielflieger.
Gleichzeitig ist die Natur nie weit entfernt: Die Mainuferpromenade lädt zu langen Spaziergängen ein, Radwege führen durch Felder und Auen, und auch der nahegelegene Wald bietet Erholung direkt vor der Haustür.
Raunheim ist eine Stadt im Wandel – mit starker Wirtschaftsanbindung, einer aufstrebenden Infrastruktur und hoher Lebensqualität für Jung und Alt.
Dieser Unternehmer-Bungalow ist mehr als ein Haus – er ist eine Bühne für Ihr Leben, eine Investition in Raum und Zeit, ein Ort mit Seele und Potenzial.
Lassen Sie ihn wieder erstrahlen. Schaffen Sie hier Ihr neues Zuhause oder nutzen Sie die architektonischen und genehmigungsrechtlichen Möglichkeiten, um Wohnen und Arbeiten, Miete und Familie, Alt und Neu zu verbinden.
Vereinbaren Sie jetzt Ihren Besichtigungstermin – und lassen Sie sich verzaubern.
Sonstige Angaben
Wichtiger Hinweis:
Aktuell verfügt das Erdgeschoss über 182,21 m2 Wohnfläche sowie zzgl. ein 62 m2 großer wohnraummäßig ausgebauter Hobbyraum im Untergeschoss.
Im Jahr 2023 wurden zusätzliche 127,55 m2 Wohnfläche im Untergeschoss (Baugenehmigung zum Zweifamilienhaus) dazu genehmigt. Der Umbau im Untergeschoss zur zweiten Wohneinheit wurde nur nicht mehr umgesetzt. Somit ist eine Gesamtwohnfläche (zwei Wohneinheiten) von 309,76 m2 genehmigt.
Adresse
65479 Raunheim
Interessante Orte
Preis- und Lageinformationen
Preistrend für Bestandsimmobilien in Raunheim