Die Doppelhaushälfte wurde 1993 in massiver Bauweise errichtet und liegt in einer ruhigen Sackgasse in Hamburg-Lurup.
Auf ca. 148,00 m² Wohn- und Nutzfläche bietet diese Immobilie Platz für die ganze Familie.
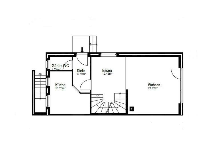
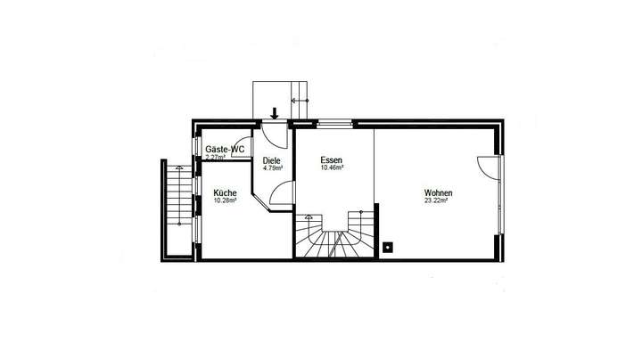
Im Erdgeschoss begrüßt Sie ein heller Flur mit Zugang zur modernen Einbauküche und zum Gäste-WC. Das Herzstück des Hauses bildet das offene Wohn- und Esszimmer mit Zugang zur sonnigen Terrasse. Hier können Sie mit der ganzen Familie zusammensitzen und die Wärme des Kaminofens genießen.
Über eine freistehende Holztreppe gelangen Sie in das Dachgeschoss des Hauses. Dort befinden sich drei gemütliche Schlafräume sowie ein gepflegtes Badezimmer mit Badewanne und Dusche.
Die ca. 17,00 m² große Ausbaureserve im Spitzboden kann vielseitig genutzt werden.
Der große Vollkeller lässt keine Wünsche offen. Drei praktische Kellerräume bieten viel Stauraum und Platz für Ihre Hobbys. Über eine Kelleraußentreppe gelangen Sie in den Garten.
Auf der sonnigen Terrasse genießen Sie einen wunderbaren Blick auf den grünen Garten.
Dieser ist liebevoll angelegt und bietet maximale Privatsphäre.
Zu den Außenanlagen gehören ein Pkw-Stellplatz sowie ein separater Wintergarten.
Doppelhaushälfte zum Einziehen und Wohlfühlen
22547 Hamburg
Die vollständige Adresse der Immobilie erhalten Sie vom Anbieter.
Auf Karte anzeigen
Die vollständige Adresse der Immobilie erhalten Sie vom Anbieter.
Finanzierungszertifikat
In nur zwei Minuten zu Ihrem persönlichen Finanzierungszertifkat.
Infos
| Haustyp | Doppelhaushaelfte |
|---|---|
| Wohnfläche ca. | 97 m2 |
| Nutzfläche | 50,23 m2 |
| Grundstücksfläche | 340,05 m2 |
| Zimmer | 4 |
| Schlafzimmer | 3 |
| Badezimmer | 1 |
Kosten
| Kaufpreis |
579.000 € |
|---|---|
| Provision |
3,57 % inkl. MwSt. |
Finanzierungsrechner:
Kaufpreis:
600.000 €
Eigenkapital:
600.000 €
Monatliche Rate
0 €
Effektiver Jahreszins
0 %
Sollzinsbindung
10 Jahre
Bausubstanz & Energieausweis
| Baujahr | 1993 |
|---|---|
| Objektzustand | Gepflegt |
| Heizungsart | Zentralheizung |
| Wesentliche Energieträger | Gas |
| Energieausweis | liegt vor |
| Energieausweistyp | Verbrauchsausweis |
| Energieverbrauchskennwert | 147,9 kWh/(m²*a) |
| Energieeffizienzklasse | E |
147,9
kWh/(m²*a)
Energieeffizienzklasse E
- A+
- A
- B
- C
- D
- E
- F
- G
- H
- 0
- 25
- 50
- 75
- 100
- 125
- 150
- 175
- 200
- 225
- >250
Beschreibung des Objekts
Ausstattung
Fenster:
Holzfenster zweifach verglast
Heizung und Warmwasser:
Gasheizung
Bodenbeläge:
Fliesen, Laminat
Küche:
Einbauküche
Bäder:
Gäste-WC im Erdgeschoss
Vollbad im Dachgeschoss
Modernisierungen:
Einbauküche aus 2017
Gas-Zentralheizung aus 2023
Kamin aus 2012
Gäste-WC aus 2011
Laminatfußböden 2011
Fliesenböden 2019
Besonderheiten: Kamin, gepflegter Garten, Pkw-Stellplatz, Vollkeller, Ausbaureserve im Dachgeschoss, Markise
Lage
Der Stadtteil Lurup befindet sich im Westen Hamburgs im Bezirk Altona und ist das jüngste der ehemaligen Bauerndörfer, die in Hamburg eingegliedert wurden. Er ist eines der bevölkerungsreichsten Wohnviertel und besonders bei jungen Familien beliebt.
In der unmittelbaren Umgebung befinden sich Kindergärten, Schulen und Freizeitanlagen. Durch die gute Infrastruktur erreichen Sie mit den Buslinien 2, 3 und 186 in wenigen Minuten die S-Bahn-Station Elbgaustraße oder die Hamburger Innenstadt.
Die neu entstehende Science City in Bahrenfeld ist nach kurzer Fahrt mit dem Fahrrad oder Bus erreichbar.
Zahlreiche Geschäfte des täglichen Bedarfs sowie ein Einkaufszentrum mit einer Vielzahl an Läden befinden sich in fußläufiger Entfernung.
Das Elbe-Einkaufszentrum, das Lurup Center oder das Stadtzentrum Schenefeld sind ebenfalls schnell erreichbar.
Der Altonaer Volkspark und der Dahliengarten laden zum Spazierengehen und Entspannen ein.
Die Trabrennbahn Bahrenfeld, das Volksparkstadion sowie die Barclays Arena bieten vielfältige kulturelle und sportliche Unterhaltung in unmittelbarer Nähe.
Grundriss
Keller
>
>
Erdgeschoss
>
>
Dachgeschoss
>
>
Adresse
22547 Hamburg
Interessante Orte
Preis- und Lageinformationen
Preistrend für Bestandsimmobilien in Lurup