Herzlich Willkommen zu Ihrem neuen Zuhause in Ehmen, einem ruhigen und familienfreundlichen Stadtteil der Stadt Wolfsburg!
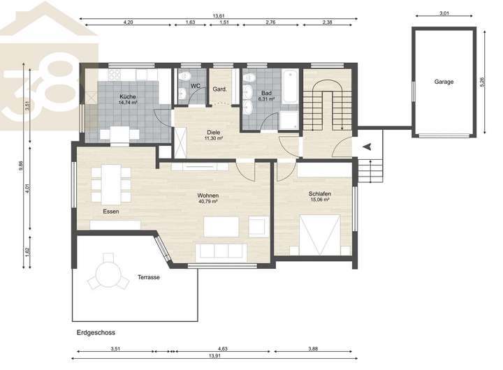
Dieses großzügige Einfamilienhaus bietet Ihnen auf 175 m² eine Vielzahl von Möglichkeiten, um Ihre Wohnträume zu verwirklichen. Vom Flur aus gelangen Sie in alle Räume des Erdgeschosses. Das hell und freundlich gestaltete Wohnzimmer bietet ausreichend Platz für einen Essbereich und ist mit Echtholzparkett und einem Kaminofen ausgestattet. Hier ist auch der Zugang zur überdachten Terrasse, sodass Sie wetterunabhängig Ihren Feierabend genießen können. Das Schlafzimmer der Etage könnte als Gästezimmer oder Büro dienen. In der gut geschnittenen Küche haben Sie zudem die Möglichkeit, einen Esstisch zu integrieren, um auch im Alltag miteinander zu speisen. Das Badezimmer im Erdgeschoss verfügt über eine Badewanne und eine zusätzliche Dusche. Ein Gäste-WC rundet die Etage ab.
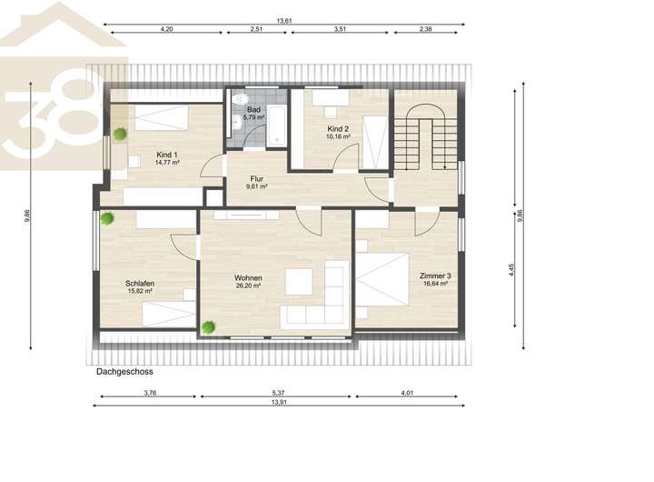
Im Dachgeschoss wartet ein zusätzliches Badezimmer auf Sie, ausgestattet mit einer Eckbadewanne. Hier finden Sie vier weitere Schlafzimmer, die vielseitig genutzt werden können – sei es als Kinder-, Arbeits- oder Gästezimmer. Ein Highlight ist ein weiteres, äußerst großzügiges, Wohnzimmer. Die Etage könnte als Einliegerwohnung genutzt werden und ein Mehrgenerationenwohnen oder eine Vermietung ermöglichen.
Der Spitzboden des Dachs wurde ebenfalls ausgebaut und bietet Ihnen vielfältige Nutzungsmöglichkeiten.
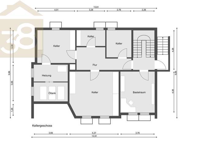
Der Keller überzeugt mit fünf Räumen plus dem Heizungsraum. Hier findet sich ausreichend Fläche zum Abstellen Ihrer Gegenstände oder Platz für Ihre Hobbys schaffen.
Zur Immobilie gehört eine Doppelgarage, die Ihre Fahrzeuge sicher unterbringt.
Der Garten wartet bereits darauf, von Ihnen bepflanzt zu werden, um einen tollen Rückzugsort oder einen Spielplatz für die Kinder zu gestalten. Hier können Sie Ihre Gartenideen verwirklichen und einen Ort der Entspannung schaffen. Eine weitere überdachte Terrasse bietet Blick in den schönen Garten.
Um Ihr neues Zuhause auf den heutigen Wohnstandard zu bringen, sind Renovierungen notwendig, wodurch Sie die Chance haben, alles nach Ihren Vorstellungen zu gestalten. Es ist dennoch gepflegt gehalten worden.
Lassen Sie sich diese Gelegenheit nicht entgehen und vereinbaren Sie noch heute einen Besichtigungstermin! Entdecken Sie das Potenzial dieses Hauses und gestalten Sie es zu Ihrem persönlichen Traumdomizil. Wir freuen uns auf Ihre Anfrage!
Einfamilienhaus mit Einliegerwohnung! Meine Immobilie = Mein Makler!
38442 Wolfsburg
Die vollständige Adresse der Immobilie erhalten Sie vom Anbieter.
Auf Karte anzeigen
Die vollständige Adresse der Immobilie erhalten Sie vom Anbieter.
Finanzierungszertifikat
In nur zwei Minuten zu Ihrem persönlichen Finanzierungszertifkat.
Infos
| Haustyp | Einfamilienhaus |
|---|---|
| Wohnfläche ca. | 175 m2 |
| Grundstücksfläche | 1.174 m2 |
| Bezugsfrei ab | sofort |
| Zimmer | 7 |
| Schlafzimmer | 6 |
| Badezimmer | 2 |
| Garage/Stellplatz | Garage |
| Anzahl Garage/Stellplatz | 2 |
Kosten
| Kaufpreis |
399.000 € |
|---|---|
| Provision |
3 % zzgl. Umsatzsteuer. 3 % zzgl. Umsatzsteuer. Die Provision ist mit der Beurkundung verdient und vom Käufer zu zahlen. |
Finanzierungsrechner:
Kaufpreis:
600.000 €
Eigenkapital:
600.000 €
Monatliche Rate
0 €
Effektiver Jahreszins
0 %
Sollzinsbindung
10 Jahre
Bausubstanz & Energieausweis
| Baujahr | 1966 |
|---|---|
| Letzte Sanierung | 1995 |
| Bauphase | Haus fertig gestellt |
| Qualität der Austattung | Einfach |
| Heizungsart | Fernwärme |
| Wesentliche Energieträger | Fernwärme |
| Energieausweis | liegt vor |
| Energieausweistyp | Bedarfsausweis |
| Energieeffizienzklasse | H |
Energieeffizienzklasse H
- A+
- A
- B
- C
- D
- E
- F
- G
- H
- 0
- 25
- 50
- 75
- 100
- 125
- 150
- 175
- 200
- 225
- >250
Beschreibung des Objekts
Ausstattung
- Einfamilienhaus mit Einliegerwohnung
- 175 m² Wohnfläche
- 7 Zimmer
- Kamin
- Einbauküche
- 2 Bäder
- Gäste-WC
- voll unterkellert
- Balkon
- Doppelgarage
- 2 Terrassen
- 1.174 m² Eigentumsgrundstück
Lage
Die angebotene Immobilie befindet sich in der charmanten Stadt Ehmen, einem Stadtteil von Wolfsburg, der durch seine ruhige und familienfreundliche Atmosphäre besticht. Ehmen zeichnet sich durch eine ausgezeichnete Anbindung an die Verkehrsinfrastruktur aus. Die Autobahn A39 ist nur wenige Minuten entfernt, was eine schnelle Erreichbarkeit der umliegenden Städte und der Autobahnauffahrten ermöglicht.
In der Nähe finden sich zahlreiche Einkaufsmöglichkeiten, darunter Supermärkte, Bäckereien und Fachgeschäfte, die den täglichen Bedarf abdecken. Für die Bildung Ihrer Kinder sind mehrere Kindergärten und Schulen in unmittelbarer Nähe vorhanden.
Die idyllische Umgebung lädt zu Spaziergängen und Freizeitaktivitäten ein. Parks und Grünflächen bieten Raum zur Erholung und sind ideal für Familien und Naturliebhaber. Außerdem profitieren die Anwohner von einer guten Anbindung an die Wolfsburger Innenstadt, die mit ihren vielfältigen Freizeit- und Einkaufsmöglichkeiten schnell erreichbar ist.
Die Lage von Ehmen kombiniert somit die Vorzüge eines ruhigen Wohngebiets mit der Nähe zu urbanen Annehmlichkeiten, was sie zu einem idealen Standort für Familien, Paare und Singles macht.
Wir freuen uns darauf, Ihnen diese attraktive Immobilie in dieser begehrten Lage näher vorzustellen!
Sonstige Angaben
Gerne laden wir Sie zu einer Besichtigung ein, um Ihnen vielleicht Ihr neues Zuhause bekannt zu machen.
Bei Interesse und zur Vereinbarung von Besichtigungsterminen setzen Sie sich bitte mit uns über das Kontaktformular in Verbindung. Bitte geben Sie hierbei Ihre vollständige Kontaktadresse an. Unvollständige Anfragen werden nicht bearbeitet.
Unser Angebot ist nur für den Empfänger bestimmt. Bei Weitergabe an Dritte - auch auszugsweise - haftet der weitergebende für unsere Courtage. Da die in diesem Exposé enthaltenen Angaben auf Informationen des Eigentümers beruhen, können wir für die Richtigkeit trotz aller Sorgfalt keine Gewähr übernehmen. Mit dem Zugang dieses Angebotes kommt ein Maklervertrag zustande. Wird von unserem Angebot Gebrauch gemacht und das Objekt erworben, zahlt der Käufer an uns die für das Objekt ausgewiesene Courtage. Die Courtage ist mit dem Abschluss des Kaufvertrags verdient und zur Zahlung fällig. Als Gerichtsstand gilt Wolfsburg als vereinbart.
Adresse
38442 Wolfsburg
Interessante Orte
Preis- und Lageinformationen
Preistrend für Bestandsimmobilien in Ehmen