Dieses gepflegte Mehrfamilienhaus in idyllischer Stadtrandlage von Papenburg begeistert mit einer Gesamtwohnfläche von ca. 259 m² und einem großzügigen Grundstück von ca. 2.046 m². Ursprünglich 1964 erbaut und 1993 durch einen Anbau erweitert, bietet die Immobilie drei vollständig abgeschlossene Wohneinheiten – ideal für Mehrgenerationenwohnen, Kapitalanleger oder die Kombination aus Eigennutzung und Vermietung.
Die hintere Hauptwohnung erstreckt sich über das Erd- und Dachgeschoss und überzeugt mit einer durchdachten Raumaufteilung. Im Erdgeschoss erwarten Sie ein großzügiger Wohnbereich mit separater Küche, ein Gäste-WC sowie ein Hauswirtschaftsraum Das Dachgeschoss ergänzt die Einheit um zwei Schlafzimmer, einem Badezimmer sowie ebenfalls eine Besenkammer.
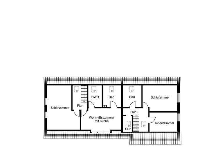
Die vordere Einheit im Erdgeschoss ist über einen eigenen Eingang zugänglich. Sie verfügt über ein helles Wohn- und Esszimmer, ein Schlafzimmer, eine separate Küche, ein Gästezimmer, ein Badezimmer und einen Hauswirtschaftsraum – ideal für Gäste, Verwandte oder zur Vermietung.
Im Dachgeschoss des vorderen Gebäudeteils befindet sich die dritte Wohnung. Diese bietet ein gemütliches Zimmer, eine Küche mit integriertem Wohn- und Essbereich, ein Badezimmer und einen praktischen Hauswirtschaftsraum. Die charmanten Dachschrägen verleihen den Räumen eine behagliche Atmosphäre.
Das weitläufige Grundstück begeistert mit gepflegten Grünflächen, einem massiven Holz-Nebengebäude, einer Garage mit vorgelagertem Carport sowie mehreren Freiplätzen. Es bietet viel Platz für Kinder, Hobbygärtner oder Tierliebhaber und garantiert Privatsphäre in ruhiger Umgebung. Einkaufsmöglichkeiten, Schulen, Kindergärten und Ärzte sind schnell erreichbar. Die naturnahe Lage verbindet Erholung mit den Vorzügen städtischer Infrastruktur.
Ob als Zuhause für mehrere Generationen oder als Kapitalanlage – dieses Dreifamilienhaus bietet vielseitige Perspektiven in begehrter Lage.
Gepflegte Wohnimmobilie mit drei zu vermietenden Einheiten und der Möglichkeit der weiteren Bebauung
26871 Papenburg
Die vollständige Adresse der Immobilie erhalten Sie vom Anbieter.
Auf Karte anzeigen
Die vollständige Adresse der Immobilie erhalten Sie vom Anbieter.
Finanzierungszertifikat
In nur zwei Minuten zu Ihrem persönlichen Finanzierungszertifkat.
Infos
| Haustyp | Mehrfamilienhaus |
|---|---|
| Etagenzahl | 2 |
| Wohnfläche ca. | 259 m2 |
| Nutzfläche | 37,43 m2 |
| Grundstücksfläche | 2.046 m2 |
| Zimmer | 9 |
| Badezimmer | 3 |
| Garage/Stellplatz | Garage |
| Anzahl Garage/Stellplatz | 1 |
Kosten
| Kaufpreis |
379.000 € |
|---|---|
| Provision |
3,57 % inkl. MwSt |
Finanzierungsrechner:
Kaufpreis:
600.000 €
Eigenkapital:
600.000 €
Monatliche Rate
0 €
Effektiver Jahreszins
0 %
Sollzinsbindung
10 Jahre
Bausubstanz & Energieausweis
| Baujahr | 1964 |
|---|---|
| Objektzustand | Gepflegt |
| Wesentliche Energieträger | Gas |
| Energieausweis | liegt vor |
| Energieausweistyp | Bedarfsausweis |
| Energieverbrauchskennwert | 243,2 kWh/(m²*a) |
| Energieeffizienzklasse | G |
243,2
kWh/(m²*a)
Energieeffizienzklasse G
- A+
- A
- B
- C
- D
- E
- F
- G
- H
- 0
- 25
- 50
- 75
- 100
- 125
- 150
- 175
- 200
- 225
- >250
Beschreibung des Objekts
Ausstattung
Einen ersten Eindruck des Hauses können Sie sich in folgendem professionellen Objektvideo machen: https://youtu.be/6Wf9NmxJ5T4
Lage
Die Immobilie befindet sich in ruhiger und dennoch zentraler Lage im beliebten Papenburger Stadtteil Obenende. Das Wohngebiet „Splitting Links“ ist geprägt von gepflegten Einfamilienhäusern und großzügigen Grundstücken – ideal für Familien und ruhesuchende Paare. In unmittelbarer Nähe befinden sich Einkaufsmöglichkeiten, Kindergärten, Schulen sowie Ärzte und Apotheken, was eine hervorragende Infrastruktur garantiert.
Auch für Pendler ist die Lage attraktiv: Durch die Nähe zur B70 und die gute Anbindung an den öffentlichen Nahverkehr sind die umliegenden Orte sowie das Zentrum von Papenburg schnell erreichbar. Der Bahnhof Papenburg ist nur wenige Autominuten entfernt und bietet regelmäßige Verbindungen in Richtung Emden und Leer sowie ins Ruhrgebiet.
Erholungs- und Freizeitmöglichkeiten bieten der nahegelegene Waldpark, der Papenburger Hauptkanal mit seinen typischen Klappbrücken und die Ems, die zu Spaziergängen, Radtouren oder Bootsfahrten einladen. Die maritime Atmosphäre der Stadt und das touristisch geprägte Umfeld machen die Lage zusätzlich attraktiv.
Sonstige Angaben
Bitte haben Sie Verständnis, dass wir nur Anfragen mit vollständig angegebenem Namen, Adresse und Telefonnummer bearbeiten können.
Sämtliche Fotos, Texte und grafische Darstellungen (z.B. Grundrisse) sind Eigentum von der Firma KAVEH Immobilien und dürfen nicht von Dritten verwendet oder weitergegeben werden.
Es gelten unsere Allgemeinen Geschäftsbedingungen.
Alle Angaben sind ohne Gewähr und basieren ausschließlich auf Informationen, die uns von unserem Auftraggeber zur Verfügung gestellt wurden. Wir übernehmen keine Gewähr für die Vollständigkeit, Richtigkeit und Aktualität dieser Angaben.
Wir stehen Ihnen mit weiteren Informationen zur Immobilie, sowie für Besichtigungen gerne zur Verfügung.
Adresse
26871 Papenburg
Interessante Orte
Preis- und Lageinformationen
Preistrend für Bestandsimmobilien in Papenburg