🚀 Unsere Mission:
WHITE & BLACK🤍🖤
WOHNEIGENTUM BEZAHLBAR💡💶
Ein Eigenheim zu besitzen ist ein großartiges
Lebensziel - es ist ein Meilenstein fur die eigene
Life Journey. Doch viele ahnen nicht, dass ihr
eigenes Zuhause zum Greifen nah ist. Wir wissen,
dass Wohneigentum für viel mehr Menschen
realisierbar ist und haben mit White&Black die
Lösung für diejenigen geschaffen, die sich dieser
Traum erfüllen mochten. ✨🏠
Wir stehen für modernes Wohnen, das nicht nur
erschwinglich, sondern auch zukunftssicher ist.
Dein Zuhause gibt dir Stabilität, Freiheit und die
Sicherheit, in deine eigene Zukunft zu investieren -
ohne steigende Mieten, ohne Abhängigkeit, dafür
mit echtem Wert. 💎🌱
Wohnen bedeutet mehr als ein
Dach über dem Kopf - es ist das Ankommen im
eigenen Leben. 🏡❤️
Hünst.-Beuerbach / Build Your Way – Entscheide selbst, wie du bauen willst.
65510 Hünstetten
Die vollständige Adresse der Immobilie erhalten Sie vom Anbieter.
Auf Karte anzeigen
Die vollständige Adresse der Immobilie erhalten Sie vom Anbieter.
Finanzierungszertifikat
In nur zwei Minuten zu Ihrem persönlichen Finanzierungszertifkat.
Infos
| Haustyp | Einfamilienhaus |
|---|---|
| Wohnfläche ca. | 140 m2 |
| Nutzfläche | 0 m2 |
| Grundstücksfläche | 400 m2 |
| Zimmer | 4 |
| Schlafzimmer | 3 |
| Badezimmer | 1 |
| Anzahl Garage/Stellplatz | 0 |
Kosten
| Kaufpreis |
350.000 € |
|---|---|
| Provision | Nein |
Finanzierungsrechner:
Kaufpreis:
600.000 €
Eigenkapital:
600.000 €
Monatliche Rate
0 €
Effektiver Jahreszins
0 %
Sollzinsbindung
10 Jahre
Bausubstanz & Energieausweis
| Baujahr | 2025 |
|---|---|
| Bauphase | Haus in Planung (projektiert) |
| Qualität der Austattung | Gehoben |
| Heizungsart | Wärmepumpe |
Beschreibung des Objekts
Ausstattung
THINK WHITE🤍 oder THINK BLACK🖤? Oder doch ein bisschen was von beiden? - Then THINK GREY🩶. Egal ob WHITE, BLACK oder GREY - du entscheidest!
🤍THINK WHITE – do it yourself.
Für alle, die selbst mitgestalten wollen. Mit der Ausbaustufe WHITE erhältst du die fertige Gebäudehülle - der Innenausbau liegt in deinen Händen 🤲🛠️. Perfekt für kreative Köpfe und Macher, die Ihr Zuhause individuell gestalten möchten. Wenn du handwerklich geschickt bist bzw. Geld sparen möchtest, ist das die ideale Wahl für dich💡💪.
Im o.g. Preis bereits enthalten:
🏅 Energieeffizienzhaus 55 🌱
✔️ Fertig verputzte Außenwände💡
✔️ Inkl. Fenster 🪟, Haustür 🚪, Dacheindeckung 🏠
✔️ Dezentrales Lüftungssystem 💨
✔️ auch innen bereits geschlossene (beplankte) Wände = malerfertig mit Vorbereitung für Elektroinstallation (das spart euch viel Arbeit)✨
....oder lieber ein bisschen mehr?
🩶THINK GREY - nearly finished (gegen Aufpreis)
Ideal für alle, die Zeit sparen und den technischen Innenausbau in erfahrene Hände legen möchten. Du kümmerst dich nur noch um den kreativen Feinausbau – den Rest übernehmen wir. 💡🙌
Bei Ausbaustufe GREY🩶 enthalten:
✔️ Ausbaustufe WHITE 🤍 wie oben stehend und zusätzlich:
✔️ Elektroinstallation ⚡
✔️ Sanitärverrohrung 🚿
✔️ Wärmepumpen-Heizung 🔥
✔️ Geschlossene (beplankte) Decken & Dachschrägen ✨
✔️ Schwimmender Estrich 🔗
🖤THINK BLACK - all in (gegen Aufpreis)
Du willst Full-Service? Dann ist 🖤BLACK das Richtige für dich - wir übernehmen den kompletten Innenausbau, sodass du ein schlüsselfertiges = bezugsfertiges Zuhause erhältst - ready to move 🚚✨.
Lage
🎯 Gebaut wird auf einem schön geschnittenen Baugrundstück in einer Anliegerstraße am Ortsrand von Hünstetten-Beuerbach.
👨👩👧👦 Kita und Kiga sind in wenigen Gehminuten erreichbar, die Grund und weiterführende Schule befindet sich im Nachbarort Hünstetten-Wallrabenstein.
🏪 Das Gewerbegebiet von Bad Camberg ist in 5 Autominuten entfernt, hier befinden sich Einkaufsmöglichkeiten wie Aldi, Lidl, DM, Netto, Medimax und zahlreiche Gastronomen etc. Im Ort selber befindet sich eine Bäckerei, einen Friseur, Gastronomie, etc.
🛣️ Die nächste Autobahnauffahrt (A3) ist 3 Km entfernt. Die Landeshauptstadt Wiesbaden ist ca. 25 Autominuten entfernt, ebenso gut erreichbar ist der Frankfurter Flughafen in ca. 30 Autominuten.
📅....am besten selbst überzeugen - ein Termin ist schnell vereinbart.
(Es gibt keine weiteren EXPOSÉ-Daten zu diesem Neubauprojekt, da individuell nach euren Wünschen auf dem Baugrundstück gebaut wird. Individuelle Wünsche klären wir gerne im persönlichen Gespräch)
Sonstige Angaben
Das angebotene Haus ist projektiert inkl. Grundstück. Das Grundstück wird in Kommission mit angeboten bzw. direkt von Dritten verkauft. Daher kann der o.g. Preis aufgrund aktueller Marktsituationen schwanken.
Änderungen und Irrtümer sind vorbehalten. Angebote sind freibleibend und unverbindlich. Weitere Geschäftsbedingungen sind in der Rubik Impressum; aufgeführt.
Anbauteile, Carport, Garage und Keller können Extras sein, die als Sonderausstattung angeboten werden. Abbildungen, Grundrisse und Flächenangaben sind beispielhaft und können Extras zeigen. Flächenangaben nach DIN 277.
Die Fotos und Bildmaterial sind urheberrechtlich geschützt. Die Nutzungsrechte liegen bei der FH Solutions GmbH.
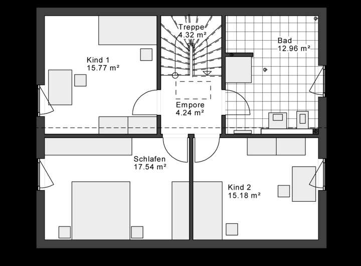
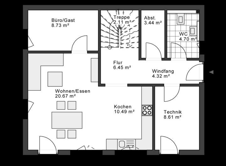
Grundriss
Grundriss EG
>
>
Grundriss OG
>
>
Adresse
65510 Hünstetten
Interessante Orte
Preis- und Lageinformationen
Preistrend für Bestandsimmobilien in Hünstetten