Junge Familie gesucht, die dieses goldige Einfamilienhaus von 1959 mit fünf Zimmern wieder mit Leben erfüllt • überdachte Terrasse • Garten • Nutzgarten • Laubenheim
Auf einer Wohnfläche von insgesamt 113 qm und einer Nutzfläche von ca. 137 qm bietet es auf zwei Wohnetagen reichlich Platz für Familien mit zwei Kindern oder Paaren mit Platzbedarf.
Im Erdgeschoss befinden sich das großzügige und lichtdurchflutete Wohnzimmer sowie das Esszimmer mit offenem Durchgang. Die Küche mit Festbrennofen und Gasofen liegt mit direktem Zugang zur überdachten Nord•Terrasse mit Blick in den wunderschönen Garten, wo Sie zusätzlich reichlich Anbaufläche für Obst und Gemüse haben.
Im Obergeschoss befindet sich das großzügiges Schlafzimmer, ein geräumiges Kinderzimmer und ein helles Arbeitszimmer. Das Duschbad und der Flur runden diese Wohnebene hervorragend ab.
Der Dachboden ist mit Glaswolle isoliert und mit Holz verkleidet.
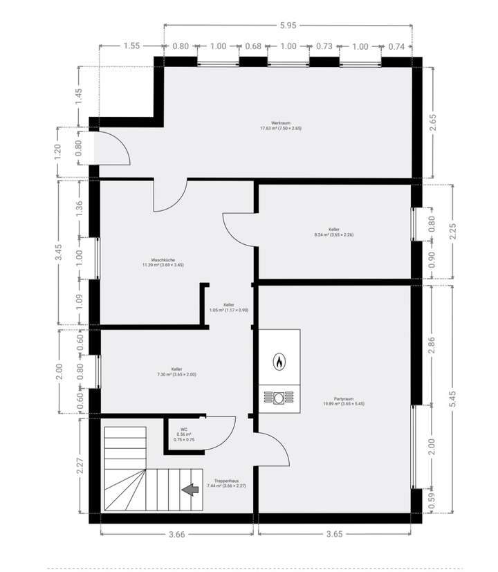
Das Kellergeschoss bietet weitere Räume mit vielen Nutzungsoptionen: ein Hobbyraum oder Partyraum, ein Vorratsraum, ein Gäste•WC, die größere Fläche im Flur für Hauswirtschaft sowie ein Werkstattraum mit Ausgang zum Garten.
Das Angebot wird mit einer Doppelgarage sowie einem Kfz-Stellplatz vervollständigt.
In dieser Immobilie lässt sich nach Sanierung ein Wohntraum mit großem Garten verwirklichen • nehmen Sie direkt mit uns Kontakt auf!
Junge Familie gesucht, die dieses goldige Einfamilienhaus mit Leben erfüllt • Laubenheim
55130 Mainz
Die vollständige Adresse der Immobilie erhalten Sie vom Anbieter.
Auf Karte anzeigen
Die vollständige Adresse der Immobilie erhalten Sie vom Anbieter.
Finanzierungszertifikat
In nur zwei Minuten zu Ihrem persönlichen Finanzierungszertifkat.
Infos
| Haustyp | Einfamilienhaus |
|---|---|
| Etagenzahl | 2 |
| Wohnfläche ca. | 113 m2 |
| Nutzfläche | 137 m2 |
| Grundstücksfläche | 513 m2 |
| Bezugsfrei ab | ab sofort |
| Zimmer | 5 |
| Schlafzimmer | 3 |
| Badezimmer | 2 |
| Garage/Stellplatz | Garage |
| Anzahl Garage/Stellplatz | 2 |
Kosten
| Kaufpreis |
525.000 € |
|---|---|
| Provision |
Die Käuferprovision beträgt 3,57% des beurkundeten Kaufpreises inkl. der gesetzlichen MwSt |
Finanzierungsrechner:
Kaufpreis:
600.000 €
Eigenkapital:
600.000 €
Monatliche Rate
0 €
Effektiver Jahreszins
0 %
Sollzinsbindung
10 Jahre
Bausubstanz & Energieausweis
| Baujahr | 1959 |
|---|---|
| Objektzustand | Renovierungsbedürftig |
| Qualität der Austattung | Normal |
| Heizungsart | Gas-Heizung |
| Wesentliche Energieträger | Gas |
| Energieausweis | liegt vor |
| Energieausweistyp | Bedarfsausweis |
| Energieverbrauchskennwert | 327,1 kWh/(m²*a) |
| Energieeffizienzklasse | H |
327,1
kWh/(m²*a)
Energieeffizienzklasse H
- A+
- A
- B
- C
- D
- E
- F
- G
- H
- 0
- 25
- 50
- 75
- 100
- 125
- 150
- 175
- 200
- 225
- >250
Beschreibung des Objekts
Ausstattung
EG • ca. 64 qm
• lichtdurchflutetes Wohnzimmer mit Kachelofen
• geräumiges Esszimmer
• Einbauküche mit Zugang zur Nord•Terrasse und dem pflegeleichten Garten und Nutzgarten
• Duschbad
• Flur
OG • ca. 49 qm
• großzügiges Schlafzimmer
• geräumiges Kinderzimmer
• helles Arbeitszimmer
• Duschbad
• Flur
DB • ca. 17 qm
• gedämmt und Holzvertäfelt
UG • ca. 68 qm
• Gäste•WC
• Hobbyraum
• Hauswirtschaftsraum
• Vorratsraum
• Werkstatt mit Ausgang zum Garten
• Doppelgarage • ca. 52 qm
• ein KFZ-Stellplatz
• 2017 • Gas betriebene Kachelofenheizung im ganzen Haus
• Steinboden
• Fliesen
• Teppichboden
Lage
Laubenheim ist ein Ortsbezirk der rheinland-pfälzischen Landeshauptstadt Mainz und seit 1969 im Rahmen der Gebietsreform eingemeindet und lässt seitdem die Einwohnerzahl auf ca. 10.000 Einwohner ansteigen.
Das Naturschutzgebiet 'Laubenheimer Ried', die vielen außerhalb gelegenen Reiterhöfe und die Laubenheimer Höhe sind für Reiter und Pferdeliebhaber ein echtes Highlight.
Die ansässigen Winzer in der Region, haben mit ihrem traditionellen Weinanbau den Ort Laubenheim zu den Great Wine Capitals überregional bekannt werden lassen.
Neben Einkaufsmärkten, attraktiven Geschäften, Ärzten, Apotheken, Bäckereien und einer Tankstelle zählen auch Kindergärten, Kita, Grundschule zum südlichsten Ortsteil von Mainz dazu. Verschiedene bekannte deutsche und internationale Gastronomien sowie eine Eisdiele machen diesen Ort einfach so lebenswert. Die alljährlich stattfindenden legendären Karnevalssitzungen zweier Vereine unterstreichen das Lebensgefühl voll und ganz und sind über die Grenzen hinaus bekannt.
An den Mainzer Ring (A60) ist die Anschlussstelle Mainz-Laubenheim angeschlossen. Mit mehreren Bus- und Bahnlinien der MVG und Bundesbahn ist Laubenheim in wenigen Minuten an die Innenstadt von Mainz und anderen Stadtteilen angebunden. Die benachbarte Landeshauptstadt Wiesbaden sowie Frankfurt sind ebenfalls in 15-30 Autominuten erreichbar.
Sonstige Angaben
Geldwäschegesetz:
Als Immobilienmaklerunternehmen ist das LANDHAUS13 nach § 2 Abs. 1 Nr. 14 und § 11 Abs. 1.2 Geldwäschegesetz (GwG) dazu verpflichtet, bei der Begründung einer Geschäftsbeziehung die Identität des Vertragspartners festzustellen und zu überprüfen, bzw. sobald ein ernsthaftes Interesse an der Durchführung des Immobilienkaufvertrages beseht. Hierzu ist es erforderlich, dass wir nach § 11 Abs. 4 GwG die relevanten Daten Ihres Personalausweises festhalten (wenn Sie als natürliche Person handeln) - beispielsweise mittels einer Kopie. Bei einer juristischen Person benötigen wir eine Kopie des Handelsregisterauszuges, aus welchem der wirtschaftlich Berechtigte hervorgeht. Das Geldwäschegesetz sieht vor, dass der Makler die Kopien bzw. Unterlagen fünf Jahre aufbewahren muss. Als unser Vertragspartner haben Sie auch ein Mitwirkungsrecht nach § 11. Abs. 6 GwG.
Haftung:
Wir weisen darauf hin, dass die von uns weitergegebenen Objektinformationen, Unterlagen, Pläne usw. vom Verkäufer/Vermieter stammen. Eine Haftung für die Richtigkeit oder Vollständigkeit der Angaben übernehmen wir daher nicht. Es obliegt daher unseren Kunden, die darin enthaltenen Objektinformationen und Angaben auf ihre Richtigkeit hin zu überprüfen. Alle Immobilienangebote sind freibleibend und vorbehaltlich Irrtümer, Zwischenverkauf- und Vermietung oder sonstiger Zwischenverwertung.
Verbraucherinformation:
Gemäß Verordnung (EU) Nr. 524/2013)
Im Rahmen der Verordnung über Online-Streitbeilegung zu Verbraucherangelegenheiten steht Ihnen unter http://ec.europa.eu/consumers/odr/
Eine Onlinestreitbeilegungsplattform der EU-Kommission zur Verfügung.
Wir nehmen nicht an einem Steitbeilegungsverfahren vor einer Verbraucherschlichterstelle teil.
Grundriss
EG
>
>
DG
>
>
DB
>
>
KG
>
>
Adresse
55130 Mainz
Interessante Orte
Preis- und Lageinformationen
Preistrend für Bestandsimmobilien in Laubenheim