Dieses moderne Einfamilienhaus aus dem Jahr 2009 bietet auf einer großzügigen Wohnfläche von 240 m² und einem Grundstück von 847 m² ein ideales Zuhause für Familien. Mit einer Energieeffizienzklasse B ist es sowohl umweltfreundlich als auch kostensparend.
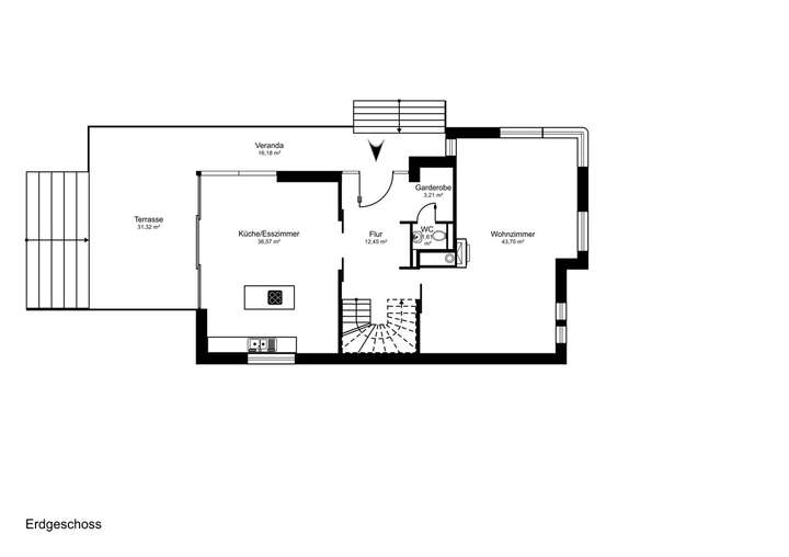
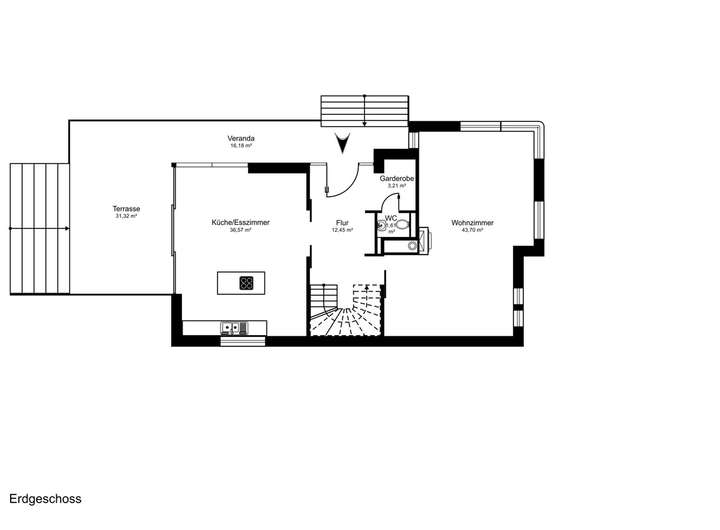
Im Eingangsbereich spüren Sie die einladende und moderne Atmosphäre dieser besonderen Immobilie: ein stilvolles Entree mit einer großzügigen Haustür und einem breiten Flur laden dazu ein, das Haus zu betreten. Der Flurbereich führt in die Wohnküche, das Wohnzimmer sowie zum Treppenhaus. Auch ein Gäste-WC ist im Erdgeschoss zu finden.
Das Wohnzimmer ist ca. 44 m² groß und mit einem stilvollen Kamin ausgestattet. Ein vorspringender Erkerbereich mit großflächiger Verglasung und bodentiefe Fenster geben diesem Raum einen ganz besonderen Eindruck. Die Wohnküche mit Kochinsel ist ca. 37 m² groß. Die Küchenfronten sind in glanzweiß gehalten und mit hochwertigen Elektrogeräten der Marke NEFF ausgestattet. Der Essbereich bietet 8-10 Gästen ausreichend Platz. Aus der Wohnküche haben Sie durch die bodentiefen Fenster und die Terrassentür Zugang und einen herrlichen Ausblick in Ihren sonnigen Garten. Die Außenterrasse bietet genug Platz für einen großen Tisch, die Grillstation und eine Hollywoodschaukel.
Im Obergeschoss befinden sich zwei großzügige Kinderzimmer, ein Elternschlafzimmer mit angrenzender Ankleide sowie ein modernes Badezimmer. Ein zusätzlicher Arbeitsraum bietet Platz für Homeoffice oder kreative Projekte.
Das Staffelgeschoss beherbergt ein weiteres Arbeitszimmer und ein Gästezimmer mit eigenem Bad. Von der Dachterrasse aus genießen Sie einen wunderbaren Ausblick in die grüne Umgebung.
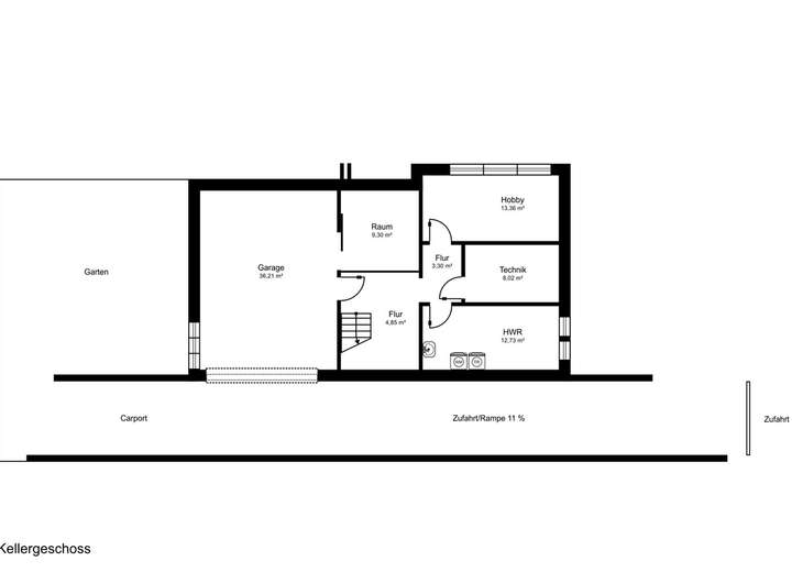
Ein besonderes Highlight ist der Fitnessraum, der zu einem aktiven Lebensstil einlädt. Der Keller bietet zusätzlichen Stauraum und vielfältige Nutzungsmöglichkeiten.
Dieses Haus verbindet Komfort mit Funktionalität und bietet viel Platz für die ganze Familie.
Kein 0815! Modern, individuell und energieeffizient in familiärer Umgebung.
22143 Hamburg
Die vollständige Adresse der Immobilie erhalten Sie vom Anbieter.
Auf Karte anzeigen
Die vollständige Adresse der Immobilie erhalten Sie vom Anbieter.
Finanzierungszertifikat
In nur zwei Minuten zu Ihrem persönlichen Finanzierungszertifkat.
Infos
| Haustyp | Einfamilienhaus |
|---|---|
| Etagenzahl | 3 |
| Wohnfläche ca. | 240 m2 |
| Grundstücksfläche | 847 m2 |
| Zimmer | 7 |
| Badezimmer | 2 |
Kosten
| Kaufpreis |
1.699.000 € |
|---|---|
| Provision |
3,57 |
Finanzierungsrechner:
Kaufpreis:
600.000 €
Eigenkapital:
600.000 €
Monatliche Rate
0 €
Effektiver Jahreszins
0 %
Sollzinsbindung
10 Jahre
Bausubstanz & Energieausweis
| Baujahr | 2009 |
|---|---|
| Qualität der Austattung | Gehoben |
| Heizungsart | Fußbodenheizung |
| Wesentliche Energieträger | Gas |
| Energieausweis | liegt vor |
| Energieausweistyp | Verbrauchsausweis |
| Energieverbrauchskennwert | 72,2 kWh/(m²*a) |
| Energieeffizienzklasse | B |
72,2
kWh/(m²*a)
Energieeffizienzklasse B
- A+
- A
- B
- C
- D
- E
- F
- G
- H
- 0
- 25
- 50
- 75
- 100
- 125
- 150
- 175
- 200
- 225
- >250
Beschreibung des Objekts
Lage
Diese Immobilie bietet eine ideale Lage für ein harmonisches Familienleben. In der unmittelbaren Umgebung befinden sich zahlreiche Annehmlichkeiten, die den Alltag erleichtern und bereichern.
Für die Kleinen gibt es in der Nähe mehrere Spielplätze, die in wenigen Gehminuten erreichbar sind. Diese bieten viel Raum für Abenteuer und Spielspaß im Freien. Auch die Bildungseinrichtungen sind gut erreichbar: Das Gymnasium Oldenfelde und die Stadtteilschule Oldenfelde sind nur einen kurzen Spaziergang entfernt, was den Schulweg angenehm kurz hält.
Einkaufsmöglichkeiten sind ebenfalls in der Nähe zahlreich vorhanden. Ein EDEKA-Center sowie mehrere ALDI-Filialen bieten eine große Auswahl an Lebensmitteln und Produkten des täglichen Bedarfs. So sind die wöchentlichen Einkäufe schnell erledigt.
Für die Kleinsten gibt es mehrere Kindergärten in der Umgebung, darunter der Ev. Kindergarten Jakob Delfs und die KiTa Sonnenblume. Diese Einrichtungen sind gut erreichbar und bieten eine hervorragende Betreuung für Kinder im Vorschulalter.
Die Anbindung an den öffentlichen Nahverkehr ist ausgezeichnet. Mehrere Bushaltestellen sind nur wenige Schritte entfernt, und der Bahnhof Hamburg-Rahlstedt ist ebenfalls gut erreichbar. Für längere Reisen ist der Flughafen Hamburg in ca. 30 Minuten mit dem Auto erreichbar. Die Nähe zur Autobahn sorgt zudem für eine gute individuelle Mobilität.
Diese Lage bietet alles, was für ein komfortables und abwechslungsreiches Familienleben notwendig ist.
Sonstige Angaben
IMMOBILIENVERKAUF: Möchten Sie auch eine Immobilie verkaufen oder vermieten, beraten wir Sie gerne diskret und unverbindlich über Ihre Möglichkeiten.
AUSGEZEICHNETER IMMOBILIENMAKLER: Makler Lambert zählt laut dem Magazin FOCUS auf Basis einer unabhängigen Datenerhebung zu Deutschlands empfohlenen Immobilienmaklern und erhielt die Auszeichnung TOP Immobilienmakler 2025. Profitieren Sie auch von unserer Tippgeberprovision!
Grundriss
Grundriss Erdgeschoss
>
>
Grundriss Obergeschoss
>
>
Grundriss Staffelgeschoss
>
>
Adresse
22143 Hamburg
Interessante Orte
Preis- und Lageinformationen
Preistrend für Bestandsimmobilien in Rahlstedt