Entdecken Sie dieses einzigartige Zweifamilienhaus in Ober-Ramstadt, eine Immobilie in Holzständerbauweise aus dem Jahr 1963, das mit seiner charmanten Atmosphäre und modernen Annehmlichkeiten begeistert. Mit einer Wohnfläche von insgesamt 277 m², verteilt auf zwei Wohnungen, bietet diese Immobilie viel Platz für komfortables Wohnen. Die untere Wohnung erstreckt sich über 117 m² und bietet ein großzügiges Zuhause mit einer Küche, einem Wohnzimmer, einem Schlafzimmer, einem Badezimmer und einem Gäste-WC. Ein besonderes Highlight ist der lichtdurchflutete Wintergarten, der einen herrlichen Blick ins Grüne bietet und ideal zum Entspannen einlädt. Von der angrenzenden Terrasse aus genießen Sie die Ruhe des liebevoll angelegten Gartens. Die obere Wohnung beeindruckt mit einer Wohnfläche von 160 m², einschließlich einer Galerie von 48 m². Diese Wohnung besticht durch ihren offenen, hellen Wohn- und Essbereich mit Kamin, der Gemütlichkeit und Stil vereint. Weitere Highlights sind ein Schlafzimmer mit Ankleidezimmer und eigenem Bad. Zudem gibt es ein zusätzliches Badezimmer, zwei Kinderzimmer und eine moderne Küche mit Kochinsel und Zugang zu einem Balkon, der einen wunderbaren Blick ins Grüne bietet. Ein besonderer Blickfang ist der offene Treppenaufgang zur Galerie, der mit viel Glas und Helligkeit punktet. Von der Galerie aus haben Sie einen beeindruckenden Blick auf den Wohn- und Essbereich. Die Galerie führt zudem zu einer Dachterrasse, die einen weiten Blick über Ober-Ramstadt eröffnet. Der liebevoll angelegte Garten mit Pool ist ein wahres Juwel dieser Immobilie. Hier können Sie inmitten von Blumen und Grünflächen entspannen und den Sommer genießen. Das Anwesen ist vollständig überwacht und mit einer Alarmanlage sowie Bewegungsmeldern ausgestattet, was Ihnen ein hohes Maß an Sicherheit bietet. Die Immobilie ist voll unterkellert inklusive einer Sauna, die für entspannende Stunden sorgt. Zwei Garagen mit elektrischen Toren, eine Grube für Autoschrauber und ein kleiner Werkbereich runden das Angebot ab. Die Ölheizung wurde 2019 erneuert und sorgt für eine effiziente Wärmeversorgung. Diese Immobilie ist ideal für Familien, sowie für alle, die die Vorzüge eines großzügigen Gartens und Pools schätzen. Wir freuen uns darauf, Ihnen Ihr zukünftiges Zuhause vorstellen zu dürfen!
Traumhaftes Zweifamilienhaus mit Pool und Gartenparadies in bester Lage!
64372 Ober-Ramstadt
Die vollständige Adresse der Immobilie erhalten Sie vom Anbieter.
Auf Karte anzeigen
Die vollständige Adresse der Immobilie erhalten Sie vom Anbieter.
Finanzierungszertifikat
In nur zwei Minuten zu Ihrem persönlichen Finanzierungszertifkat.
Infos
| Haustyp | Mehrfamilienhaus |
|---|---|
| Wohnfläche ca. | 277 m2 |
| Grundstücksfläche | 844 m2 |
| Zimmer | 9 |
| Schlafzimmer | 4 |
| Badezimmer | 3 |
| Anzahl Garage/Stellplatz | 6 |
Kosten
| Kaufpreis |
795.000 € |
|---|---|
| Provision |
3.57 % inkl. gesetzl. MwSt. |
Finanzierungsrechner:
Kaufpreis:
600.000 €
Eigenkapital:
600.000 €
Monatliche Rate
0 €
Effektiver Jahreszins
0 %
Sollzinsbindung
10 Jahre
Bausubstanz & Energieausweis
| Baujahr | 1963 |
|---|---|
| Heizungsart | Fußbodenheizung |
| Wesentliche Energieträger | Öl |
| Energieausweis | liegt vor |
| Energieausweistyp | Verbrauchsausweis |
| Energieverbrauchskennwert | 114,3 kWh/(m²*a) |
| Energieeffizienzklasse | D |
114,3
kWh/(m²*a)
Energieeffizienzklasse D
- A+
- A
- B
- C
- D
- E
- F
- G
- H
- 0
- 25
- 50
- 75
- 100
- 125
- 150
- 175
- 200
- 225
- >250
Beschreibung des Objekts
Ausstattung
Abstellkammer
Einbauschränke
Begehbarer Kleiderschrank
Einbauküche
Blick ins Grüne
Schwimmbad, außen
Vollunterkellert
Kamin
Lage
Die angebotene Immobilie befindet sich in einer der beliebtesten Wohnlagen von Ober-Ramstadt – ruhig gelegen in einem gewachsenen Wohngebiet mit angenehmer Nachbarschaft und gleichzeitig hervorragender Anbindung an das Stadtzentrum.
Ober-Ramstadt liegt am Rande des malerischen Odenwaldes und vereint die Vorzüge ländlicher Idylle mit urbaner Infrastruktur. Die umliegenden Wälder und Wiesen laden zu zahlreichen Freizeitaktivitäten ein – ob Joggen, Spazierengehen, Radfahren oder einfach zum Erholen im Grünen. Gleichzeitig profitieren Bewohner von einer sehr guten Nahversorgung mit Supermärkten, Bäckereien, Metzgereien, Apotheken und weiteren Einkaufsmöglichkeiten direkt im Ort.
Auch für Familien bietet Ober-Ramstadt ein attraktives Umfeld: Mehrere Kindertagesstätten, eine Grundschule sowie eine integrierte Gesamtschule sind schnell erreichbar. Weiterführende Schulen und Hochschulen befinden sich im nahegelegenen Darmstadt, das nur wenige Fahrminuten entfernt ist. Kulturelle Einrichtungen wie Musikschulen oder die Stadtbücherei sowie ein vielfältiges Vereinsleben tragen zur hohen Lebensqualität bei.
Die medizinische Versorgung ist ebenfalls umfassend: Neben mehreren Haus- und Facharztpraxen gibt es Zahnarztpraxen, Apotheken sowie das Klinikum Darmstadt in gut erreichbarer Entfernung.
Verkehrstechnisch ist die Lage bestens angebunden: Die Bundesstraße B426 bietet eine direkte Verbindung nach Darmstadt. Über die Autobahnen A5 und A67 ist das gesamte Rhein-Main-Gebiet schnell erreichbar – Frankfurt, Mannheim oder Heidelberg sind zügig erreichbar. Der Bahnhof Ober-Ramstadt bietet zudem regelmäßige Zugverbindungen in die Region und macht den Ort auch für Pendler attraktiv.
Sport- und Freizeitmöglichkeiten sind reichlich vorhanden – von Fußball- und Tennisplätzen über Reitmöglichkeiten bis hin zu einem Schwimmbad und weitläufigen Rad- und Wanderwegen im Odenwald. Insgesamt bietet diese Lage eine seltene Kombination aus Ruhe, Naturverbundenheit, bester Infrastruktur und Nähe zur Großstadt – ideal für Familien, Berufstätige und alle, die Wert auf ein ausgeglichenes Lebensumfeld legen.
Sonstige Angaben
Der Makler-Vertrag mit uns und/oder unserem Beauftragten kommt durch die Beauftragung der Maklertätigkeit in Textform (z.B. E-Mail mit Bestätigung der gewollten Inanspruchnahme) zustande. Die Höhe der Courtage richtet sich nach den ab dem 23.12.2020 in Kraft getretenen gesetzlichen Regelungen zur Teilung der Maklercourtage. Hiernach wird die Courtage regelmäßig für beide Parteien (Eigentümer und Käufer) jeweils in Höhe von 3 % zuzüglich Umsatzsteuer in jeweils geltender Höhe, derzeit also insgesamt 3,57 % des Kaufpreises einschließlich Umsatzsteuer bei notariellem Vertragsabschluss verdient und fällig. Die Höhe der Bruttocourtage unterliegt einer Anpassung bei Steuersatzänderung, Grunderwerbssteuer, Notar- und Gerichtskosten trägt der Käufer.
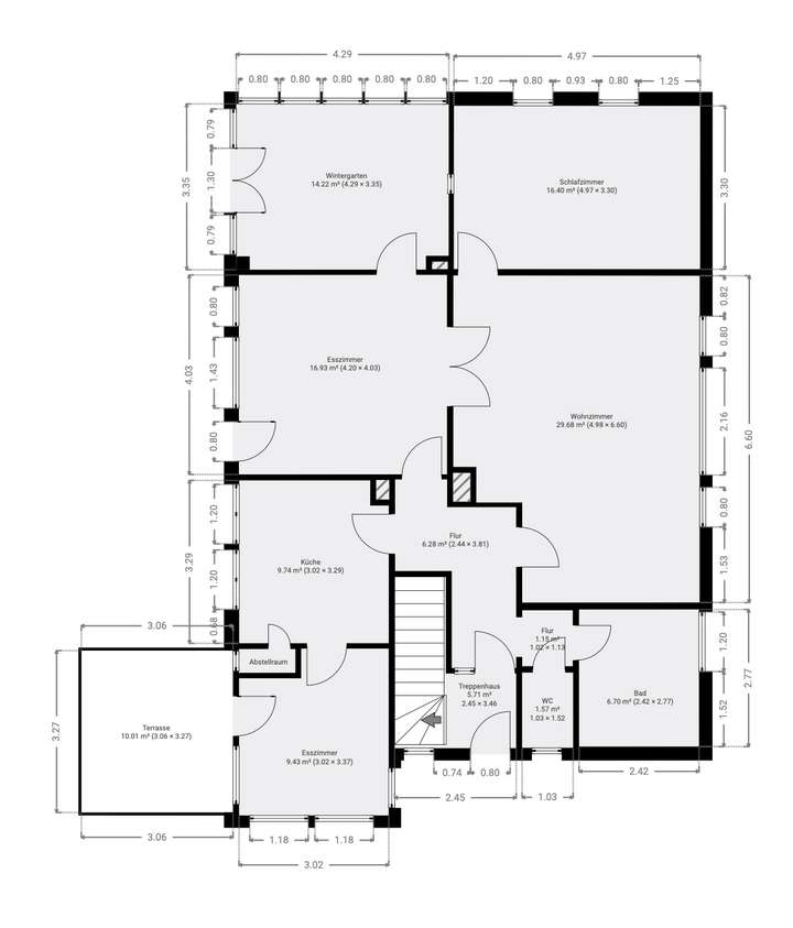
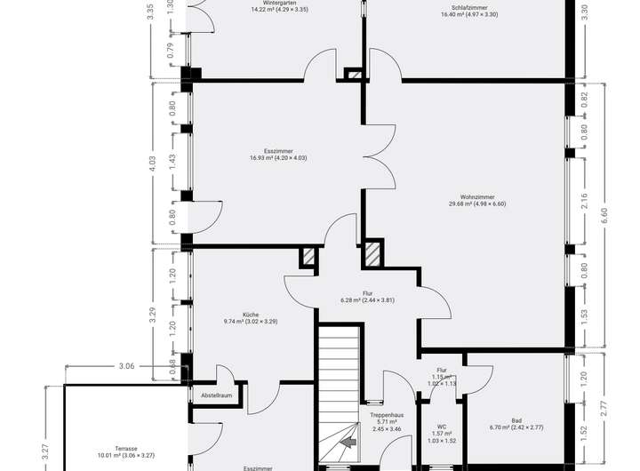
Grundriss
Kellergeschoss
>
>
Erdgeschoss
>
>
Obergeschoss
>
>
Dachgeschoss
>
>
Adresse
64372 Ober-Ramstadt
Interessante Orte
Preis- und Lageinformationen
Preistrend für Bestandsimmobilien in Ober-Ramstadt