Dieses charmante Einfamilienhaus in Massivbauweise bietet nicht nur viel Platz für Familien, sondern auch flexible Nutzungsmöglichkeiten – ob für Wohnen, Arbeiten oder als Mehrgenerationenlösung. Die Immobilie stammt aus dem Jahr 1960 und wurde durch zwei Anbauten (1973 & 1984) erweitert. Besonders hervorzuheben ist der separate Anbau mit eigenem WC – ideal als Büro, Hobbyraum oder Gästeunterkunft.
Der geschützte Innengarten sorgt für Privatsphäre und eine grüne Oase mitten im Ortskern.
Zentral in Biblis: Helles Einfamilienhaus mit Garten und Garage
68647 Biblis
Die vollständige Adresse der Immobilie erhalten Sie vom Anbieter.
Auf Karte anzeigen
Die vollständige Adresse der Immobilie erhalten Sie vom Anbieter.
Finanzierungszertifikat
In nur zwei Minuten zu Ihrem persönlichen Finanzierungszertifkat.
Infos
| Haustyp | Einfamilienhaus |
|---|---|
| Etagenzahl | 2 |
| Wohnfläche ca. | 157 m2 |
| Nutzfläche | 21,78 m2 |
| Grundstücksfläche | 314 m2 |
| Bezugsfrei ab | ab sofort |
| Zimmer | 7 |
| Schlafzimmer | 3 |
| Badezimmer | 2 |
| Garage/Stellplatz | Garage |
| Anzahl Garage/Stellplatz | 1 |
Kosten
| Kaufpreis |
309.000 € |
|---|---|
| Provision |
3,57% |
Finanzierungsrechner:
Kaufpreis:
600.000 €
Eigenkapital:
600.000 €
Monatliche Rate
0 €
Effektiver Jahreszins
0 %
Sollzinsbindung
10 Jahre
Bausubstanz & Energieausweis
| Baujahr | 1960 |
|---|---|
| Qualität der Austattung | Einfach |
| Heizungsart | Öl-Heizung |
| Wesentliche Energieträger | Öl |
| Energieausweis | liegt vor |
| Energieausweistyp | Bedarfsausweis |
| Energieverbrauchskennwert | 248,7 kWh/(m²*a) |
| Energieeffizienzklasse | G |
248,7
kWh/(m²*a)
Energieeffizienzklasse G
- A+
- A
- B
- C
- D
- E
- F
- G
- H
- 0
- 25
- 50
- 75
- 100
- 125
- 150
- 175
- 200
- 225
- >250
Beschreibung des Objekts
Ausstattung
Nutzfläche im Anbau: ca. 21 m²
2 Badezimmer + 1 Gäste-WC
Garage (Anbau 1984)
Massivbauweise
Ruhiger, grüner Innenhof
Lage
Die Immobilie befindet sich in zentraler Lage von Biblis, einer lebendigen Gemeinde im südhessischen Ried. Einkaufsmöglichkeiten, Schulen und der Bahnhof sind fußläufig erreichbar. Biblis bietet eine hervorragende Anbindung an die Metropolregion Rhein-Neckar sowie nach Worms, Mannheim und Darmstadt.
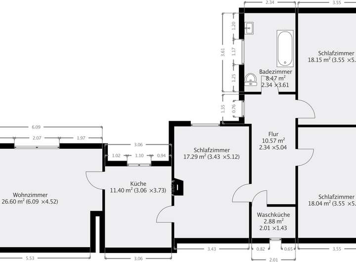
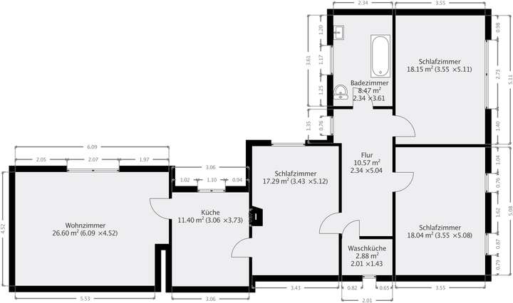
Grundriss
Grundriss EG
>
>
Grundriss OG
>
>
Grundriss Anbau
>
>
Adresse
68647 Biblis
Interessante Orte
Preis- und Lageinformationen
Preistrend für Bestandsimmobilien in Biblis