Willkommen zu einer seltenen Gelegenheit: Dieses charmante Zweifamilienhaus in massiver Bauweise befindet sich inmitten des beliebten Stadtteils Hamburg-Bergstedt. Auf einem großzügigen Grundstück von etwa 2.204 Quadratmetern eröffnet sich Ihnen hier die Möglichkeit, ein echtes Wohnidyll nach Ihren eigenen Vorstellungen zu schaffen.
Die im Jahr 1984 errichtete Immobilie erstreckt sich über eine Wohnfläche von rund 209 Quadratmetern und bietet durch zwei Wohneinheiten ein hohes Maß an Flexibilität – sei es für die Nutzung als Mehrgenerationenhaus, zur Teilvermietung oder für eine Umgestaltung zu einem großzügigen Einfamilienhaus. Beheizt wird die Immobilie durch eine Luft-Wärmepumpe – eine nachhaltige und zukunftsorientierte Lösung, die sowohl ökologisch als auch wirtschaftlich überzeugt. Der voll unterkellerte Bereich mit etwa 120 Quadratmetern Nutzfläche bietet Ihnen reichlich Stauraum sowie vielfältige Nutzungsmöglichkeiten. Eine repräsentative Toranlage, ein Doppel-Carport und ein großzügiges Gartenhaus komplettieren das Ensemble.
Großzügiges Wohnen mit Wasserzugang
22395 Hamburg
Die vollständige Adresse der Immobilie erhalten Sie vom Anbieter.
Auf Karte anzeigen
Die vollständige Adresse der Immobilie erhalten Sie vom Anbieter.
Finanzierungszertifikat
In nur zwei Minuten zu Ihrem persönlichen Finanzierungszertifkat.
Infos
| Haustyp | Mehrfamilienhaus |
|---|---|
| Wohnfläche ca. | 209 m2 |
| Nutzfläche | 120 m2 |
| Grundstücksfläche | 2.204 m2 |
| Bezugsfrei ab | Nach Vereinbarung |
| Zimmer | 6 |
| Schlafzimmer | 5 |
| Badezimmer | 2 |
| Garage/Stellplatz | Carport |
| Anzahl Garage/Stellplatz | 2 |
Kosten
| Kaufpreis |
975.000 € |
|---|---|
| Provision |
3,57 % inkl. MwSt. |
Finanzierungsrechner:
Kaufpreis:
600.000 €
Eigenkapital:
600.000 €
Monatliche Rate
0 €
Effektiver Jahreszins
0 %
Sollzinsbindung
10 Jahre
Bausubstanz & Energieausweis
| Baujahr | 1984 |
|---|---|
| Objektzustand | Renovierungsbedürftig |
| Heizungsart | Wärmepumpe |
| Energieausweis | liegt vor |
| Energieausweistyp | Bedarfsausweis |
| Energieverbrauchskennwert | 52,9 kWh/(m²*a) |
| Energieeffizienzklasse | B |
52,9
kWh/(m²*a)
Energieeffizienzklasse B
- A+
- A
- B
- C
- D
- E
- F
- G
- H
- 0
- 25
- 50
- 75
- 100
- 125
- 150
- 175
- 200
- 225
- >250
Beschreibung des Objekts
Ausstattung
Diese exklusive Immobilie in ruhiger Lage von Hamburg-Bergstedt besticht durch vielfältige Nutzungsmöglichkeiten und ihr großes Potenzial zur individuellen Gestaltung.
Beide Wohneinheiten verfügen über helle Wohnbereiche mit Zugang zu sonnigen Terrassen. Funktionale Einbauküchen und Tageslichtbäder mit Dusche, Wanne und WC bieten zeitgemäßen Komfort. Gäste-WCs sind ebenfalls vorhanden, eine Fußbodenheizung sorgt für angenehme Wärme.
Das Haus ist renovierungsbedürftig und bietet eine solide Basis zur Verwirklichung individueller Wohnideen – in einer der begehrtesten Lagen Hamburgs. Die Verbindung aus Substanz, Platzangebot und Lage macht dieses Angebot besonders attraktiv.
Lage
Das charmante Zweifamilienhaus liegt in Hamburg-Bergstedt, einem der grünsten und zugleich begehrtesten Stadtteile im Nordosten der Hansestadt. Die ruhige, familienfreundliche Umgebung besticht durch ihren dörflichen Charakter und eine hohe Lebensqualität.
Zahlreiche Einkaufsmöglichkeiten, Cafés, Restaurants sowie Kindergärten und Schulen befinden sich in der Nähe und decken den täglichen Bedarf ideal ab. Dank der guten Anbindung an den öffentlichen Nahverkehr ist das Hamburger Stadtzentrum schnell und bequem erreichbar.
Für Erholung sorgen weitläufige Grünflächen, der Alsterwanderweg und vielfältige Freizeitangebote direkt vor der Haustür. Bergstedt bietet eine gelungene Verbindung aus naturnahem Wohnen und urbaner Lebensqualität – ideal für alle, die ein ruhiges Zuhause mit guter Infrastruktur suchen.
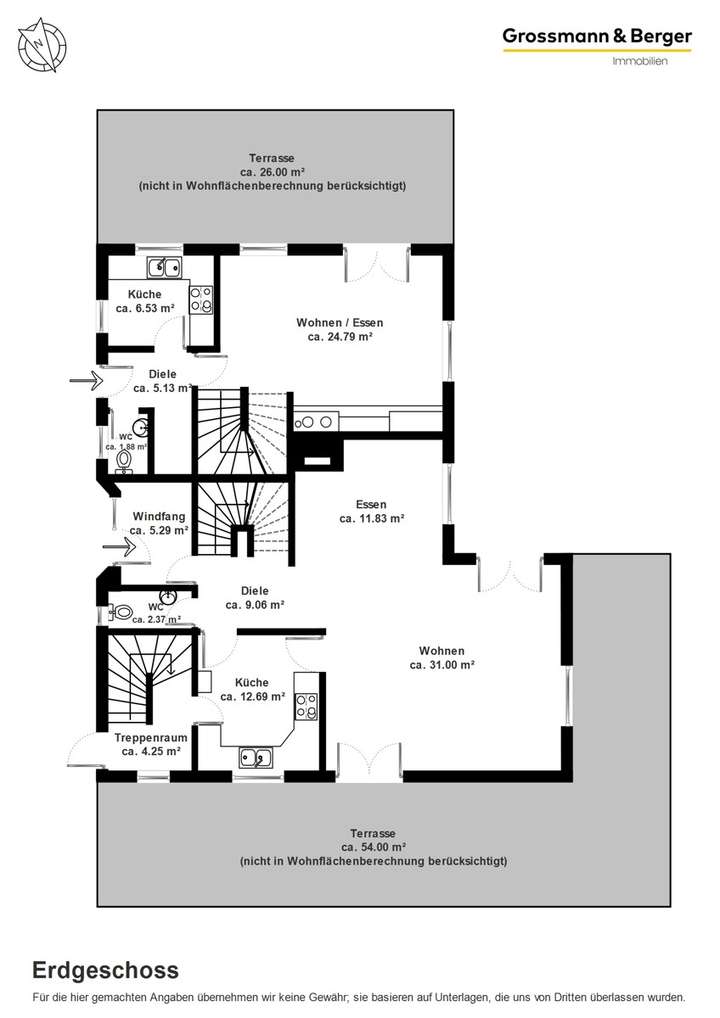
Grundriss
Erdgeschoss
>
>
Dachgeschoss
>
>
Kellergeschoss
>
>
Adresse
22395 Hamburg
Interessante Orte
Preis- und Lageinformationen
Preistrend für Bestandsimmobilien in Bergstedt