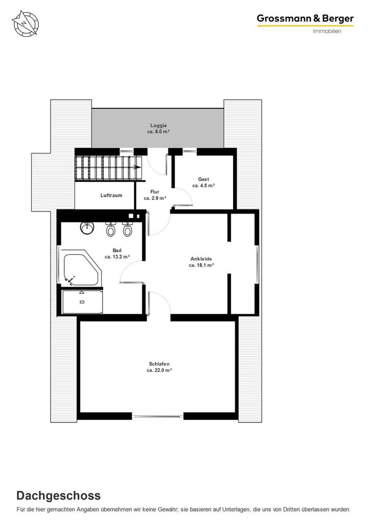
Dieses charmante Einfamilienhaus wurde ursprünglich im Jahr 1960 auf einem ca. 861 m² großen Grundstück gebaut. Von Ende 2011 bis Mitte 2012 wurde die Immobilie aufwendig kernsaniert und erweitert. Die Fassade erhielt ein Wärmedämmverbundsystem, das Dach wurde mit zwei großen Gauben erneuert und zeitgemäß gedämmt. Sämtliche Leitungen, Türen und Fenster wurden ausgetauscht. Zusätzlichen Komfort bietet der, im Rahmen der Kernsanierung ausgebaute, ca. 27 m² große Wintergarten. Mit einer Wohnfläche von ca. 173 m² bietet das Haus ausreichend Raum für alle, die viel Platz und ein modernes Zuhause suchen. Die durchdachte Raumaufteilung umfasst 5 Zimmer und ein halbes. Im Erdgeschoss stehen Ihnen, neben dem großzügigen Wohnzimmer mit einem Elektrokamin mit Wasserdampf, zwei weitere Zimmer sowie die moderne Küche mit Essplatz und ein Badezimmer zur Verfügung. Der Wintergarten ist sowohl vom Wohnzimmer als auch von der Küche zugänglich. Über eine geschlossene Holztreppe gelangen Sie in das Dachgeschoss. Hier bieten Ihnen zwei und ein halbes Zimmer sowie ein großzügiges Badezimmer viele Gestaltungsmöglichkeiten. Viel Stauraum und Lagerungsmöglichkeiten sind im Keller vorhanden.
Modern und großzügig für die Familie
22119 Hamburg
Die vollständige Adresse der Immobilie erhalten Sie vom Anbieter.
Auf Karte anzeigen
Die vollständige Adresse der Immobilie erhalten Sie vom Anbieter.
Finanzierungszertifikat
In nur zwei Minuten zu Ihrem persönlichen Finanzierungszertifkat.
Infos
| Haustyp | Einfamilienhaus |
|---|---|
| Wohnfläche ca. | 173 m2 |
| Grundstücksfläche | 861 m2 |
| Bezugsfrei ab | nach Absprache |
| Zimmer | 5,5 |
| Garage/Stellplatz | Carport |
| Anzahl Garage/Stellplatz | 2 |
Kosten
| Kaufpreis |
875.000 € |
|---|---|
| Provision |
3,57 % inkl. MwSt. |
Finanzierungsrechner:
Kaufpreis:
600.000 €
Eigenkapital:
600.000 €
Monatliche Rate
0 €
Effektiver Jahreszins
0 %
Sollzinsbindung
10 Jahre
Bausubstanz & Energieausweis
| Baujahr | 1960 |
|---|---|
| Objektzustand | Modernisiert |
| Heizungsart | Zentralheizung |
| Wesentliche Energieträger | Gas |
| Energieausweis | liegt vor |
| Energieausweistyp | Bedarfsausweis |
| Energieverbrauchskennwert | 126,9 kWh/(m²*a) |
| Energieeffizienzklasse | D |
126,9
kWh/(m²*a)
Energieeffizienzklasse D
- A+
- A
- B
- C
- D
- E
- F
- G
- H
- 0
- 25
- 50
- 75
- 100
- 125
- 150
- 175
- 200
- 225
- >250
Beschreibung des Objekts
Ausstattung
Die Immobilie präsentiert sich in einem modernen und familiengerechten Zustand. Bei der Ausstattung wurde großer Wert auf Qualität gelegt und hochwertige Materialien gewählt.
Im Rahmen der Kernsanierung (2011–2012) wurde das Haus umfassend modernisiert und erweitert. Im Wohnzimmer sowie im Wintergarten wurden geschmackvolle und großformatige Fliesen verlegt, die übrigen Räume wurden mit pflegeleichtem Laminat ausgestattet – für ein stimmiges Wohnambiente. Eine moderne und geschmackvolle Einbauküche mit allen erforderlichen Geräten und viel Stauraum bietet Entfaltungsmöglichkeiten für Kochliebhaber. Die Bäder wurden stilvoll neu gestaltet und lassen sich jeweils über ein Fenster gut be- und entlüften. Eine Fußbodenheizung sorgt für eine angenehme Wärme ohne störende Heizkörper. Die Fensterelemente sind isolierverglast, in Kunststoff gefasst und mit Außenrollläden ausgestattet. Große Fensterflächen sorgen für viel Tageslicht und verleihen dem Haus ein offenes, freundliches Ambiente. Die Raumgrößen sind gut proportioniert, was das Wohngefühl zusätzlich unterstreicht.
Für Ihre Fahrzeuge steht Ihnen ein Doppelcarport zur Verfügung.
Lassen Sie sich bei einer Besichtigung vor Ort überzeugen.
Lage
Der Stadtteil Billstedt zeigt sich vielschichtig, mit größeren Wohnanlagen, bürgerlichen Reihenhaussiedlungen und Gebieten mit überwiegender Einfamilienhausbebauung. Ihre Freizeit können Sie in der nahen Umgebung gestalten, so stehen Ihnen der Öjendorfer Park oder das Hallen- und Freibad Billstedt und zahlreiche Sportvereine zur Verfügung. Einkaufsmöglichkeiten des täglichen Bedarfs, Kindergärten und Schulen sind in großer Auswahl vorhanden. Über die A24 und die A1 ist eine sehr gute Verkehrsanbindung gegeben. Das Haus befindet sich in einem ruhigen und familienfreundlichen Wohngebiet im ehemals selbstständigen Dorf Schiffbek. Die nachbarschaftliche Bebauung ist geprägt von Einfamilienhäusern, Doppelhäusern und vereinzelten Reihenhäusern unterschiedlicher Baujahre. Der Öjendorfer Park ist zügig zu erreichen und lädt zu ausgiebigen Spaziergängen ein. Die Autobahnauffahrten Jenfeld (A24) und Öjendorf (A1) liegen nur wenige Fahrminuten entfernt und gewährleisten eine schnelle Verkehrsanbindung mit dem PKW. Die Anbindung an den öffentlichen Nahverkehr ist ausgezeichnet. Die Bushaltestelle ist nur 110 m entfernt und Anfang 2027 wird die Lage auch durch die U4 (Horner Geest) perfekt angebunden sein.
Grundriss
Grundriss KG
>
>
Grundriss EG
>
>
Grundriss DG
>
>
Adresse
22119 Hamburg
Interessante Orte
Preis- und Lageinformationen
Preistrend für Bestandsimmobilien in Billstedt