Leben in seiner schönsten Form — Einfamilienhaus mit Einliegerwohnung in der Heimstättensiedlung
In einer ruhigen Stichstraße im beliebten Darmstädter Viertel Heimstättensiedlung eröffnet sich dieses besondere Einfamilienhaus aus dem Jahr 2013 — das neue Zuhause für Ihre Familie oder für Generationswohnen.
Mit einer Wohnfläche von ca. 210 m², verteilt auf Haupthaus und Einliegerwohnung, vereint das Gebäude ebenso durchdachte Raumaufteilung wie modernen Komfort. Die Einliegerwohnung (ca. 50 m²) ist aktuell im Leerstand (vorherige Einnahmen: Nettokaltmiete 700 €, warm 850 €) — jedoch ebenso gut als separater Bereich für die Familie, das Homeoffice oder als Gästewohnung nutzbar. Falls gewünscht, besteht außerdem die Möglichkeit, die Einliegerwohnung durch einen Durchbruch mit dem Haupthaus zu verbinden.
Die Immobilie ist ebenso technisch ausgefeilter wie geschmackvoll ausgestattet: Die Beheizung erfolgt über eine energieeffiziente Luftwärmepumpe in Verbindung mit Fußbodenheizung im gesamten Gebäude. Alle Leitungen für den Anschluss eines Kamins im großen Wohn-/Esszimmer sind bereits ausgelegt — ebenso für den Anschluss einer zusätzlichen Küche im Studio im Obergeschoss. Dieses helle Studio, das ebenso als eigenes Reich für die heranwachsenden Kinder, das Homeoffice oder das Hobby geeignet ist, verfügt zudem über eine Klimaanlage. Mit dieser kühlen Sie im heißen Sommer auch das Schlafzimmer, das über einen großen begehbaren Kleiderschrank verfügt.
Die voll ausgelegte Einbauküche ist das Herz des Hauses: mit Markengeräten ausgestattet, inklusive Gasherd (auf Anschluss, daher keine Gasflasche notwendig). Zwei Terrassen im Erdgeschoss erweitern den Wohnraum ins Grüne — ideal für das Familienfrühstück, das Glas Wein am Abend oder das Beisammensein mit Freunden.
Weitere Highlights sind die 4 voll ausgestatteten Tageslichtbäder, die Dreifachverglasung, die Fliegengitter sowie die ebenso praktischen Rollläden für Sicherheit und Privatsphäre.
Das Souterrain hat ebenso einige Überraschungen parat: Es ist voll nutzbar (normale Raumhöhe) und beherbergt neben der Einliegerwohnung einen Raum für die Hausanschlüsse sowie einen großen Raum für Stauraum, Sport, Hobby oder anderes.
Lifestyle & Flexibilität: Modernes Haus mit Einliegerbereich
64295 Darmstadt
Die vollständige Adresse der Immobilie erhalten Sie vom Anbieter.
Auf Karte anzeigen
Die vollständige Adresse der Immobilie erhalten Sie vom Anbieter.
Finanzierungszertifikat
In nur zwei Minuten zu Ihrem persönlichen Finanzierungszertifkat.
Infos
| Haustyp | Einfamilienhaus |
|---|---|
| Etagenzahl | 2 |
| Wohnfläche ca. | 210 m2 |
| Grundstücksfläche | 420 m2 |
| Bezugsfrei ab | nach Vereinbarung |
| Zimmer | 6,5 |
| Schlafzimmer | 4 |
| Badezimmer | 4 |
| Garage/Stellplatz | Außenstellplatz |
| Anzahl Garage/Stellplatz | 2 |
Kosten
| Kaufpreis |
959.000 € |
|---|---|
| Provision |
3,57% inkl. der gesetzl. MwSt., bezogen auf den Kaufpreis |
Finanzierungsrechner:
Kaufpreis:
600.000 €
Eigenkapital:
600.000 €
Monatliche Rate
0 €
Effektiver Jahreszins
0 %
Sollzinsbindung
10 Jahre
Bausubstanz & Energieausweis
| Baujahr | 2013 |
|---|---|
| Objektzustand | Neuwertig |
| Heizungsart | Fußbodenheizung |
| Energieausweis | liegt vor |
| Energieausweistyp | Verbrauchsausweis |
| Energieverbrauchskennwert | 26,2 kWh/(m²*a) |
| Energieeffizienzklasse | A+ |
26,2
kWh/(m²*a)
Energieeffizienzklasse A+
- A+
- A
- B
- C
- D
- E
- F
- G
- H
- 0
- 25
- 50
- 75
- 100
- 125
- 150
- 175
- 200
- 225
- >250
Beschreibung des Objekts
Ausstattung
* Freistehendes Einfamilienhaus in ruhiger, familienfreundlicher Wohnlage
* Einliegerwohnung mit eigenem überdachten Eingang — ideal zur Vermietung, als Büro oder für das erwachsene Kind
* Top-moderne Einbauküche inklusive Marken-Elektrogeräten und mit Gasherd
* Offener Wohn- und Essbereich mit Anschluss für einen Kaminofen — für behagliches Wohngefühl
* Zwei Terrassen im Erdgeschoss für das Genießen im Freien - ausgerichtet nach Süden und Westen
* Vielseitig nutzbares Studio im Obergeschoss — inklusive Anschluss für weitere Küche
* Vier voll ausgestattete Tageslichtbäder — eines in der Einliegerwohnung
* Zwei Bäder mit Dusche, zwei Bäder mit Dusche und Wanne
* Große Bäder in geschmackvollen Braun- und Beigetönen im Erdgeschoss sowie in Dunkel-Anthrazit im Obergeschoss
* Duschbäder im Erdgeschoss und in der Einliegerwohnung in klassischen Weiß- und Grautönen
* Beheizung des Hauses über moderne Luftwärmepumpe in Verbindung mit Fußbodenheizung
* Dreifach verglaste Fenster — einige mit Fliegengittern — für Wärmeeffizienz und Insektenschutz
* Rollläden für zusätzlichen Komfort, Sicherheit und Verdunkelung
* Pflegeleichtes Interieur — das Haus ist mit Fliesen ausgestattet für ein stimmiges, modernes Bild
* Keller mit vollwertigen Räumen, Technikraum, großem Stauraum und Anschluss für Waschmaschine
* Pflegeleichtes Grundstück mit Garten — ideal für Erholung, Spiel und Grillen im Freien
Lage
Das Einfamilienhaus befindet sich in einer der beliebtesten Wohnlagen von Darmstadt, in der Heimstättensiedlung. Dieses ruhige und zugleich gut angebundene Viertel im Süden von Darmstadt ist für Familien ebenso geschätzt wie für Pendler, die das Leben im Grünen mit einer schnellen Erreichbarkeit des Zentrums und der Metropolregion Frankfurt/Rhein-Main kombinieren wollen.
Die Heimstättensiedlung besticht durch ihr ausgeprägtes Einfamilienhaus-Umfeld, zahlreiche Gärten und das viele Grün in der direkten Nachbarschaft — ebenso wie durch die hervorragende Nahversorgung und die ausgeprägte soziale Infrastruktur.
Öffentliche Verkehrsmittel:
Die Anbindung an den öffentlichen Nahverkehr ist ebenso praktisch wie vielfältig. Die Bushaltestelle liegt wenige Gehminuten entfernt und bringt Sie in einigen Minuten zum Hauptbahnhof Darmstadt oder in die Innenstadt. Auch die Anschlussstelle zur Straßenbahn ist gut erreichbar, ebenso wie die Anbindung an das S-Bahn-Netz in Richtung Frankfurt, Mainz oder Heidelberg.
Infrastruktur:
Die Heimstättensiedlung verfügt über sämtliche Einrichtungen des täglichen Bedarfs — Supermärkte, Bäckereien, Ärzte, Apotheken sowie zahlreiche Einkaufsmöglichkeiten sind ebenso in der Nähe wie Schulen, Kindergärten und Sportvereine. Auch das neue Einkaufszentrum im Süden von Darmstadt ist ebenso schnell erreicht.
Verkehrsanbindung:
Die Anschlussstelle zur A 5 sowie zur A 67 liegt nur wenige Autominuten entfernt und eröffnet schnelle Verbindungen in sämtliche Richtungen — Frankfurt, Mannheim, Heidelberg oder zum internationalen Flughafen Frankfurt (rund 20 Autominuten) — ideal für Pendler oder Vielflieger.
Freizeit und Erholung:
Die Heimstättensiedlung grenzt direkt an Naherholungsgebiete, Felder, Wiesen und Wälder, die zahlreiche Lauf-, Wander- oder Fahrradwege für Erholung im Grünen bieten. Auch Sportstätten, Vereine sowie das vielfältige kulturelle Angebot von Darmstadt sind ebenso leicht erreichbar.
Sonstige Angaben
7 Gründe für einen Immobilienverkauf mit DAHLER
01 SPEZIALISIERUNG
Wir sind "Zuhause in besten Lagen" und konzentrieren uns auf hochwertige Wohnimmobilien in bevorzugten Wohnvierteln.
02 MARKTNÄHE
Der Blick auf kleinste Gebiete ermöglicht unseren Beratern eine profunde Kenntnis ihres Teilmarktes.
03 RESEARCH
Laufende fundierte Marktanalysen bilden die Basis für standortgerechte Werteinschätzungen.
04 FACHEXPERTISE
Umfassende Schulungen aller Mitarbeiter sichern ein gleichbleibend hohes Qualitätsniveau in der Beratung.
05 ERFOLG
Dank eines ausgefeilten Marketingkonzepts erreichen wir eine durchschnittliche Vermarktungsdauer von nur zwei bis drei Monaten.
06 DISKRETION
Auf Wunsch unserer Auftraggeber vermarkten wir jede Immobilie unter Wahrung höchster Diskretion.
07 NETZWERK
Zuhause kann überall sein. Deshalb machen wir Ihr Angebot überregional bekannt und platzieren es in über 80 Standorten.
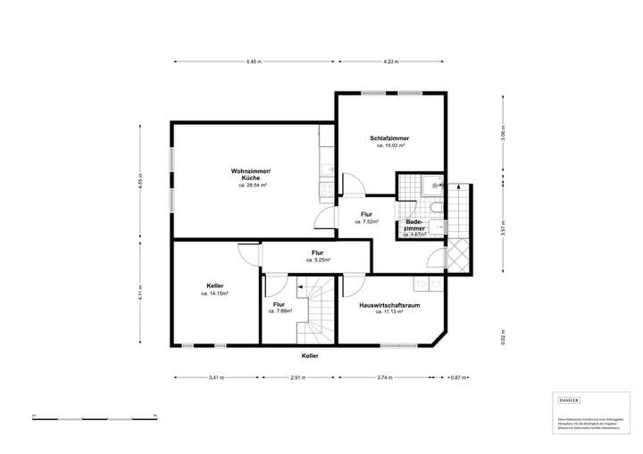
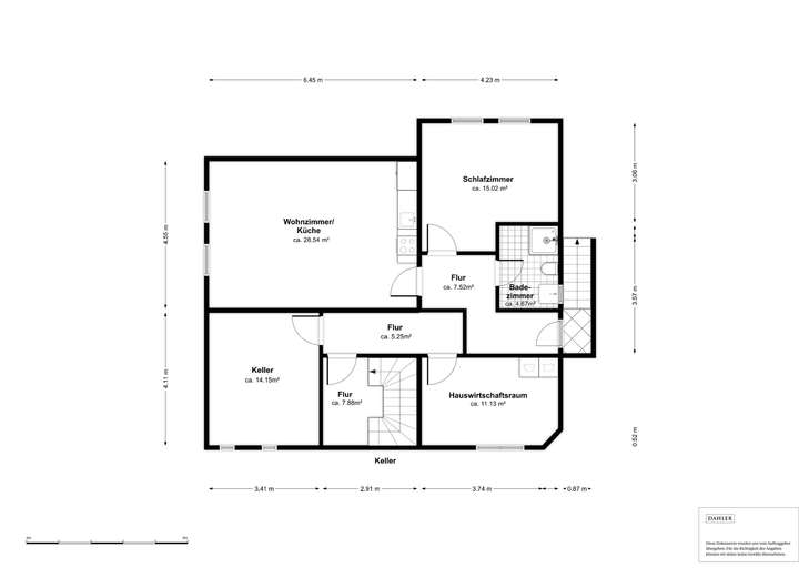
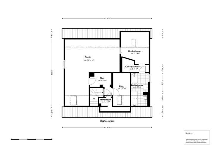
Grundriss
Erdgeschoss
>
>
Dachgeschoss
>
>
Untergeschoss
>
>
Adresse
64295 Darmstadt
Interessante Orte
Preis- und Lageinformationen
Preistrend für Bestandsimmobilien in Darmstadt-West