Dieses komplett vermietete Wohn- und Geschäftshaus in sehr guter Weilburger Innenstadtlage und nahe dem Schloss könnte schon bald Ihr Immobilienportfolio erweitern. Es vereint schlichten Wohnkomfort in den oberen Etagen und ein sehr erfolgreich betriebenes Restaurant im Erdgeschoss. Durch die längere Miet/Pachtzeit macht dieses Angebot zu einer attraktiven Investitionsmöglichkeit.
Mehrfamilienhaus mit Gewerbeeinheiten und guter Rendite
Neugasse 4,
35781 Weilburg
Auf Karte anzeigen
Finanzierungszertifikat
In nur zwei Minuten zu Ihrem persönlichen Finanzierungszertifkat.
Infos
| Haustyp | Mehrfamilienhaus |
|---|---|
| Etagenzahl | 4 |
| Wohnfläche ca. | 230 m2 |
| Nutzfläche | 180 m2 |
| Grundstücksfläche | 210 m2 |
| Zimmer | 16 |
| Schlafzimmer | 6 |
| Badezimmer | 5 |
Kosten
| Kaufpreis |
460.000 € |
|---|---|
| Provision |
5,95 % Die Maklerprovision beträgt 5,95 % inkl. gesetzlicher MwSt. des Kaufpreises samt den vom Käufer übernommenen sonstigen Leistungen, dem Verkäufer vorbehaltenen Nutzungen sowie dem Zubehör und einem etwa mitveräußerten Inventar. Die Provision ist fällig am Tag des rechtswirksamen Zustandekommens des beabsichtigten Kaufvertrags. Die Provision ist auch zu zahlen, wenn ein wirtschaftlich gleichartiges oder gleichwertiges Geschäft zustande kommt. |
| Mieteinnahmen | 2.700 € |
Finanzierungsrechner:
Kaufpreis:
600.000 €
Eigenkapital:
600.000 €
Monatliche Rate
0 €
Effektiver Jahreszins
0 %
Sollzinsbindung
10 Jahre
Bausubstanz & Energieausweis
| Baujahr | unbekannt |
|---|---|
| Letzte Sanierung | 2018 |
| Objektzustand | Vollständig Renoviert |
| Qualität der Austattung | Normal |
| Heizungsart | Gas-Heizung |
| Wesentliche Energieträger | Gas |
| Energieausweis | laut Gesetz nicht erforderlich |
Beschreibung des Objekts
Ausstattung
Aufgeteilt ist diese zentral liegende Immobilie in zwei Wohn- sowie eine Gewerbeeinheit.
Erdgeschoss:
- Gewerbefläche mit einer Größe von 150m²
- Eingangsbereich mit großen Schaufenstern
- neugestalteter sowie großzügiger Gastraum mit schönen Sitzgelegenheiten für die Gäste
- modernste Ausstattung mit Barbereich
- stilvolle Terrasse im innenliegenden Hofbereich sowie weitere Sitzmöglichkeiten vor der Immobilie
- neue Sanitärbereiche für die Gäste
- Separater Lagerraum mit weiterem WC
- Lagerraum im Keller mit ca. 35 m²
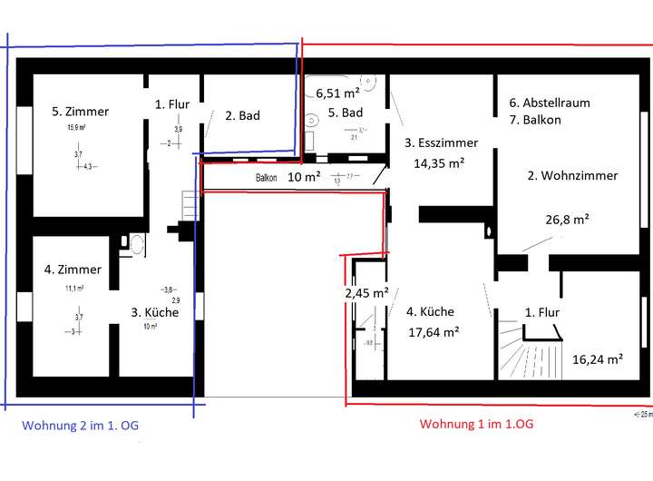
Wohnung 1 verteilt auf 2 Ebenen (ca. 130 m²):
- 4 Zimmer, Küche sowie Abstellraum
- 2 neuere Badezimmer auf jeder Ebene
- Balkon zum Innenhof
Wohnung 2 (ca. 100 m²):
- 5 Zimmer, Küche sowie 3 Bäder
- verteilt auf 2 Stockwerke
-separater Zugang über Hintere Straße (Hundtengäßchen)
- vor einigen Jahren renoviert
Weiterhin ist es möglich, den separaten Lagerraum (inkl. WC) im Erdgeschoss der Immobilie für eine weitere kleine Gewerbeeinheit (Büro/Kiosk) kostengünstig zu erschließen. Vorteilhaft ist der -schon jetzt- direkte Zugang der rückliegenden Straße (Hundtengäßchen).
Lage
Diese Immobilie findet sich in einer attraktiven Lage von Weilburg mit hervorragender Anbindung an die öffentlichen Verkehrsmittel. Einkaufsmöglichkeiten, Freizeitangebote und der Schlossgarten sind in unmittelbarer Nähe. Die Umgebung ist geprägt von einer freundlichen Nachbarschaft und einem hohen Fußgängeraufkommen, wovon das vermietete Restaurant direkt profitiert.
Weilburg ist eine Kleinstadt und ein staatlich anerkannter Luftkurort mit ca. 13.000 Einwohnern im hessischen Landkreis Limburg-Weilburg im Regierungsbezirk Gießen. Sie ist eine ehemalige Residenzstadt in Mittelhessen und gehört heute zum Rhein-Main-Gebiet.
Weilburg liegt geographisch zwischen den Mittelgebirgen Westerwald und Taunus und ist nach Limburg an der Lahn und Bad Camberg die drittbevölkerungsreichste Stadt des Landkreises.
Sämtliche Schulformen, von der Grundschule bis zum Gymnasium über weiterführende Schulen bis hin zu Berufsschulen und der Fachhochschule, gehören zu den Bildungsmöglichkeiten in Weilburg.
Das Angebot an Freizeiteinrichtungen und Veranstaltungen, darunter das Kino, Schwimmbäder, Museen, das Schloss mit dem Schlossgarten, der Tierpark, die Kubacher Kristallhöhle, die Schlosskonzerte, Rad- und Wanderwege, Stadtführungen, Sportanlagen und die Wassersportaktivitäten, bieten Abwechslung von der Hektik des Alltags.
Den täglichen Bedarf decken die großen Nahversorgerketten, kleinere Geschäfte, vielfältige Gastronomiebetriebe und Einzelhandelsläden ab. Verschiedene Fachärzte, Apotheken, Therapeuten sowie Banken sind in der Stadt zu finden. Weilburg verfügt zudem über ein Krankenhaus.
Mit den durch das Stadtgebiet verlaufenden Bundesstraßen B49 und B456, ist Weilburg gut an die nächsten Autobahnanschlüsse angebunden und demnach verkehrsgünstig zu den regionalen und überregionalen Zentren gelegen. Der Bahnhof ist an das öffentliche Bahnnetz angeschlossen.
Sonstige Angaben
Highlights:
*vollständig vermietete Immobilie mit einer jährlichen Rendite von 32.500 €
*komplett renoviertes Restaurant im EG
*2 große Wohnungen auf 2 Ebenen mit Balkon
*im Zentrum von Weilburg mit großer Werbewirksamkeit
Zögern Sie nicht und vereinbaren Sie mit uns einen Besichtigungstermin.
Wir freuen uns auf Sie!
Alle Angaben und Informationen beruhen auf Angaben des Eigentümers, Verwalters, Vermieters oder deren Bevollmächtigten. Eine Gewährleistung für Richtigkeit, Vollständigkeit oder Aktualität kann daher nicht übernommen werden. Irrtümer sind vorbehalten. Der Empfänger dieses Exposés gestattet die telefonische sowie schriftliche Kontaktaufnahme seitens IKM. Die Weitergabe des Exposés an unberechtigte Dritte ist untersagt.
Hinweis zum Provisionsanspruch: Die Maklerprovision bezieht sich auf die Kaufvertragssumme und wird bei Kaufvertragsabschluss fällig.
Grundriss
1. OG
>
>
2.OG
>
>
Adresse
Neugasse 4, 35781 Weilburg
Interessante Orte
Preis- und Lageinformationen
Preistrend für Bestandsimmobilien in Weilburg