Dieses freistehende Architektenhaus, erbaut in den Jahren 1965 und 1966, liegt auf einem großzügigen, etwa 890 m² großen Grundstück, das in idealer Südausrichtung sonnendurchflutet zur Gartenseite hin geöffnet ist. Es präsentiert sich in einem äußerst gepflegten Zustand, der nicht nur von beständiger Instandhaltung, sondern auch von spürbarer Wertschätzung für Qualität und Architektur zeugt. Mit einer Wohnfläche von rund 222 m², ergänzt durch weitere etwa 126 Quadratmeter Nutzfläche, im teilweise ausgebauten Souterrain, bietet dieses Haus ein beeindruckendes Raumangebot für all jene, die ein stilvolles und zugleich funktionales Zuhause suchen. Ob für das Leben mit einer großen Familie, das Arbeiten in inspirierender Umgebung oder als Rückzugsort mit viel Raum für individuelle Gestaltung – hier eröffnen sich zahlreiche Möglichkeiten.
Im Laufe der Jahrzehnte wurde das Haus mit viel Sorgfalt weiterentwickelt. Zwei durchdachte Erweiterungen ergänzen das ursprüngliche Konzept auf harmonische Weise: Der erste Anbau entstand in den Jahren 1983 und 1984 im rückwärtigen Bereich und fügt sich ebenso wie der zweite Anbau von 1993, der den Wohnbereich vergrößert, nahtlos in das architektonische Gesamtbild ein. Der Charakter des Hauses bleibt dabei stets gewahrt – geradlinig, großzügig, lichtoffen.
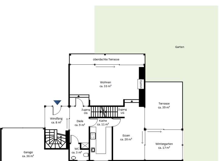
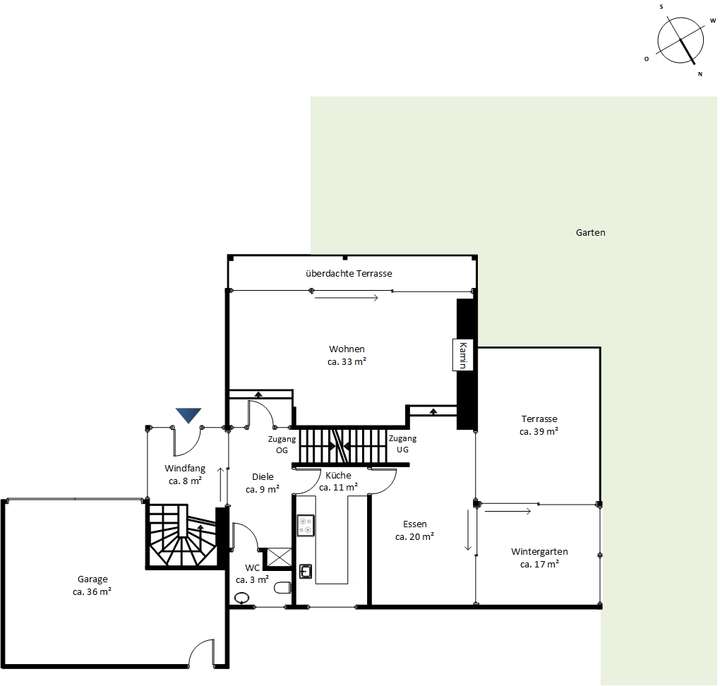
Schon beim Betreten des Hauses fällt das durchdachte Lichtkonzept auf. Großzügige, bodentiefe Fenster lassen das Tageslicht in die Räume strömen und schaffen eine Atmosphäre, die durch Offenheit und Wärme geprägt ist. Das Wohnzimmer und die oberen Schlafräume sind mit edlem Parkett ausgestattet, das den Wohnräumen eine einladende, wohnliche Eleganz verleiht. In Diele, Küche sowie im Ess- und Arbeitsbereich wurden hochwertige italienische Fliesen gewählt, die Funktionalität mit klarer, zeitloser Ästhetik verbinden. Im Eingangsbereich und im Flur des Obergeschosses sorgen geschickt platzierte Deckenfenster zusätzlich für ein angenehmes, natürliches Licht, das zu jeder Tageszeit eine besondere Stimmung schafft. Ein Kamin im Wohnzimmer lädt in den kühleren Monaten zum Verweilen ein und unterstreicht das wohnliche Ambiente.
Die Raumaufteilung ist großzügig und wohlproportioniert. Vier der sieben Zimmer eignen sich ideal als Schlafzimmer. Drei von ihnen bieten einen direkten Zugang zu privaten Außenbereichen: Ein Schlafzimmer verfügt über einen weitläufigen Balkon, der nach Osten ausgerichtet ist und die ersten Sonnenstrahlen des Tages einfängt. Zwei weitere Zimmer öffnen sich zu charmanten Loggien mit Südausrichtung, die zum Entspannen im Grünen einladen.
Die im Jahr 2015 neu eingebaute Küche der renommierten Marke Schüller fügt sich modern und hochwertig in das Gesamtbild ein. Zwei Badezimmer im Haupthaus sowie ein weiteres im Souterrain garantieren auch bei größerem Platzbedarf höchsten Komfort. Eine integrierte Alarmanlage sorgt für ein zusätzliches Maß an Sicherheit. Technisch ist das Haus in einem guten Zustand. Die Ölheizung wurde zuletzt 2003 erneuert und seither regelmäßig gewartet. Das markante Schieferdach ist nicht nur ein stilistisches Highlight, sondern unterstreicht den langlebigen und qualitätsvollen Anspruch, der sich durch das gesamte Gebäude zieht.
Im Außenbereich bietet das Haus weitläufige Terrassenflächen, die teilweise überdacht sind und somit bei jedem Wetter nutzbar bleiben.
Eine großzügige Garage für zwei Autos ergänzt das Ensemble und bietet praktischen Komfort im Alltag.
Insgesamt bietet dieses außergewöhnliche Architektenhaus nicht nur ein hohes Maß an Raum, Licht und Behaglichkeit, sondern auch eine hohe Lebensqualität. Ein Haus mit Charakter, Substanz und Seele, eine seltene Gelegenheit für Familien, die stilvolles Wohnen mit Großzügigkeit, Qualität und einer der schönsten Lagen der Stadt verbinden möchten.
Großzügiges Architektenhaus auf sonnigem Grundstück im Herzen von Nienstedten
22609 Hamburg
Die vollständige Adresse der Immobilie erhalten Sie vom Anbieter.
Auf Karte anzeigen
Die vollständige Adresse der Immobilie erhalten Sie vom Anbieter.
Finanzierungszertifikat
In nur zwei Minuten zu Ihrem persönlichen Finanzierungszertifkat.
Infos
| Haustyp | Einfamilienhaus |
|---|---|
| Wohnfläche ca. | 222 m2 |
| Nutzfläche | 126 m2 |
| Grundstücksfläche | 890 m2 |
| Zimmer | 7 |
| Schlafzimmer | 4 |
| Badezimmer | 2 |
| Anzahl Garage/Stellplatz | 2 |
Kosten
| Kaufpreis |
1.950.000 € |
|---|---|
| Provision |
3,57 % inkl. 19 % MwSt. Bei wirksamem Abschluss eines notariellen Kaufvertrages ist eine Maklercourtage in Höhe von 3,57 % inkl. 19 % ges. MwSt., bezogen auf den vereinbarten Kaufpreis, verdient und fällig und vom Käufer an die Firma MEISSLER & CO zu zahlen, die hierdurch einen unmittelbaren Zahlungsanspruch gegenüber dem Käufer erhält. Die Grunderwerbsteuer sowie die Notar- und Gerichtskosten sind vom Käufer zu tragen. Alle Angaben über diese Immobilie beruhen auf Informationen, die uns der Auftraggeber zur Verfügung gestellt hat. Für die Richtigkeit, Aktualität und Vollständigkeit dieser Angaben übernehmen wir keine Gewähr. Irrtum und Zwischenverkauf vorbehalten. |
Finanzierungsrechner:
Kaufpreis:
600.000 €
Eigenkapital:
600.000 €
Monatliche Rate
0 €
Effektiver Jahreszins
0 %
Sollzinsbindung
10 Jahre
Bausubstanz & Energieausweis
| Baujahr | 1965 |
|---|---|
| Objektzustand | Gepflegt |
| Wesentliche Energieträger | Öl |
| Energieausweis | liegt vor |
| Energieausweistyp | Bedarfsausweis |
| Energieverbrauchskennwert | 322,7 kWh/(m²*a) |
| Energieeffizienzklasse | H |
322,7
kWh/(m²*a)
Energieeffizienzklasse H
- A+
- A
- B
- C
- D
- E
- F
- G
- H
- 0
- 25
- 50
- 75
- 100
- 125
- 150
- 175
- 200
- 225
- >250
Beschreibung des Objekts
Lage
In einer der begehrtesten Wohnlagen Hamburgs, im charmanten Elbvorort Nienstedten, befindet sich dieses freistehende Architektenhaus auf einem großzügigen, sonnigen Grundstück. Die Umgebung besticht durch ihre ruhige, grüne Atmosphäre, die unmittelbare Nähe zur Elbe sowie eine exzellente Infrastruktur und hohe Familienfreundlichkeit. Der historische Ortskern von Nienstedten ist bequem zu Fuß erreichbar und bietet sämtliche Geschäfte des täglichen Bedarfs, darunter Bäckereien, einen Supermarkt, eine Drogerie, Apotheken, mehrere Blumengeschäfte, eine Postfiliale sowie diverse Arztpraxen. Kleine Restaurants, eine Eisdiele und eine stilvolle Weinbar runden das Angebot ab und verleihen dem Viertel seinen besonderen Charme.
Auch für Familien mit Kindern ist die Lage ideal. Die Grundschule Schulkamp, mehrere Kindergärten, sowie alle Formen der weiterführenden Schulen, befinden sich in unmittelbarer Nähe und sind ebenfalls gut zu Fuß erreichbar. Die Naherholung beginnt direkt vor der Tür. Mit dem Fahrrad ist man in wenigen Minuten an der Elbe, im Jenischpark oder im Westerpark, ideal für Spaziergänge, sportliche Aktivitäten oder entspannte Nachmittage im Grünen. Die Anbindung an den öffentlichen Nahverkehr ist hervorragend, die S-Bahnstation Klein Flottbek ist gut erreichbar und bietet eine direkte Verbindung in die Hamburger Innenstadt. Über die Elbchaussee gelangt man mit dem Auto schnell ins Zentrum, über die nahegelegene Autobahn auch zügig zum Flughafen.
Sonstige Angaben
MEISSLER & CO gehört zu den größten, inhabergeführten Immobilienunternehmen Hamburgs für die Vermittlung hochwertiger Wohnimmobilien in den Elbvororten, an der Alster sowie in der HafenCity.
In den vier Hamburger Standorten:
Büro Blankenese | Blankeneser Bahnhofstr. 8 | 22587 Hamburg
Büro Nienstedten | Nienstedtener Markplatz 29 | 22609 Hamburg
Büro Othmarschen | Waitzstr. 5 | 22607 Hamburg
Büro Ottensen – Alster| Klopstockstr. 31 | 22765 Hamburg
bietet MEISSLER & CO hohe Kompetenz in der Bewertung und der Vermarktung erstklassiger Wohnimmobilien.
Wir freuen uns auf Ihre Kontaktaufnahme für die Abstimmung eines Beratungstermins:
Tel.: 040 86 44 44 | E-Mail: info@meissler-co.de
Adresse
22609 Hamburg
Interessante Orte
Preis- und Lageinformationen
Preistrend für Bestandsimmobilien in Nienstedten