Leben zwischen Freiheit und Komfort – Ihr Zuhause mit Pferdehaltung und Perspektive
Manche Orte sind mehr als nur ein Zuhause – sie verkörpern ein Lebensgefühl.
Dieses außergewöhnliche Anwesen in absoluter Alleinlage bei Aurich vereint genau das: Freiheit, Naturverbundenheit und stilvollen Wohnkomfort. Eingebettet in die Weite Ostfrieslands ist es wie geschaffen für Menschen, die ihren eigenen Raum gestalten und genießen möchten.
Das großzügig geschnittene Einfamilienhaus bietet mit ca. 183 m² Wohnfläche viel Platz zum Leben, Arbeiten und Entspannen. Zusätzlich stehen rund 63 m² Ausbaureserve bereit – ideal, um individuelle Wohnträume wahr werden zu lassen.
Helle, lichtdurchflutete Räume, zwei Badezimmer, eine moderne Küche und eine sonnige Terrasse verbinden funktionales Wohnen mit einer behaglichen, naturnahen Atmosphäre. Ein besonderes Highlight: der charmante Ofen im Wohn- und Essbereich – spendet nicht nur Wärme, sondern ermöglicht auch das Kochen direkt am Feuer.
Doch dieses Anwesen ist weit mehr als ein gemütliches Zuhause.
Für Pferdeliebhaber bietet es nahezu perfekte Bedingungen: Ein großzügiger Offenstall, zehn komfortable Boxen, ein Reitplatz sowie ein Roundpen lassen keine Wünsche offen. Die weitläufigen Weiden, die stille Umgebung und herrliche Ausreitmöglichkeiten direkt ab Hof machen jeden Tag zu einem Erlebnis. Dies ist für Reitbeteiligungen und Einstellerpferde sehr beliebt – ein echtes Plus für Pferdefreunde.
Wer weiter träumen möchte, findet dafür Raum und Möglichkeiten:
Ein liebevoll Blockhaus, weitläufige Gartenflächen, Obstbäume und Platz für Selbstversorgung eröffnen Raum für neue Lebenskonzepte – ob kreative Auszeit, naturnahes Familienleben oder kleines Hofprojekt.
Hier finden nicht nur Tiere ihre Freiheit – sondern auch Sie.
Ein Ort für Menschen, die Natur lieben, Tiere schätzen und ein Zuhause suchen, das weit mehr ist als nur ein Gebäude.
Wir begleiten Sie auf dem Weg zu Ihrem neuen Lebensort.
Als erfahrene Immobilienprofis stehen wir Ihnen von der ersten Besichtigung bis zur Schlüsselübergabe zuverlässig zur Seite.
Zögern Sie nicht, vereinbaren Sie noch heute einen Besichtigungstermin.
Pferdeliebhaber aufgepasst - wunderschöner Pferdehof in Alleinlage
26607 Aurich
Die vollständige Adresse der Immobilie erhalten Sie vom Anbieter.
Auf Karte anzeigen
Die vollständige Adresse der Immobilie erhalten Sie vom Anbieter.
Finanzierungszertifikat
In nur zwei Minuten zu Ihrem persönlichen Finanzierungszertifkat.
Infos
| Haustyp | Einfamilienhaus |
|---|---|
| Etagenzahl | 2 |
| Wohnfläche ca. | 183 m2 |
| Nutzfläche | 63,52 m2 |
| Grundstücksfläche | 15.000 m2 |
| Zimmer | 6 |
| Schlafzimmer | 3 |
| Badezimmer | 2 |
| Garage/Stellplatz | Garage |
| Anzahl Garage/Stellplatz | 2 |
Kosten
| Kaufpreis |
499.000 € |
|---|---|
| Provision |
3.57 % inkl. MwSt. Bei Abschluss eines notariellen Kaufvertrages ist eine Käuferprovision vom Käufer in Höhe von 3.57 % inkl. MwSt. aus dem Kaufpreis fällig. |
Finanzierungsrechner:
Kaufpreis:
600.000 €
Eigenkapital:
600.000 €
Monatliche Rate
0 €
Effektiver Jahreszins
0 %
Sollzinsbindung
10 Jahre
Bausubstanz & Energieausweis
| Baujahr | 1958 |
|---|---|
| Letzte Sanierung | 2024 |
| Objektzustand | Gepflegt |
| Qualität der Austattung | Normal |
| Heizungsart | Öl-Heizung |
| Wesentliche Energieträger | Öl, Holz |
| Energieausweis | liegt vor |
| Energieausweistyp | Bedarfsausweis |
| Energieverbrauchskennwert | 297,5 kWh/(m²*a) |
| Energieeffizienzklasse | H |
297,5
kWh/(m²*a)
Energieeffizienzklasse H
- A+
- A
- B
- C
- D
- E
- F
- G
- H
- 0
- 25
- 50
- 75
- 100
- 125
- 150
- 175
- 200
- 225
- >250
Beschreibung des Objekts
Ausstattung
Das Anwesen umfasst:
- Das Einfamilienhaus bietet ca. 183 m² + 63 m²
- 6 Zimmer,
- 2 Badezimmer,
- ein Gäste-WC
- eine offene Küche,
- einen gemütlicher Kamin und
- eine Terrasse
- ein Offenstall,
- 10 großzügige Pferdeboxen
- ein Reitplatz,
- ein Roundpen
- eine Sattelkammer,
- ein Blockhaus,
- ein großzügiger Gartenbereich zur Selbstversorgung
Lage
Ruhige Lage mit Weitblick – Wohnen in Aurich Dietrichsfeld
Diese charmante Immobilie befindet sich in einer besonders ruhigen und naturnahen Wohnlage im beliebten Auricher Ortsteil Dietrichsfeld. Umgeben von weitläufigen Feldern, Wiesen und altem Baumbestand genießen Sie hier einen herrlichen Weitblick und eine entspannte Wohnatmosphäre – ideal für alle, die Ruhe und Erholung schätzen, ohne auf eine gute Anbindung verzichten zu wollen.
Trotz der ländlich geprägten Lage sind sämtliche Einrichtungen des täglichen Bedarfs schnell erreichbar: Supermärkte, Bäcker, Friseure, Apotheken sowie Arztpraxen befinden sich nur wenige Autominuten entfernt. Auch Familien mit Kindern finden in unmittelbarer Umgebung eine gute Infrastruktur – vom nahegelegenen Spielplatz über Kindergarten und Grundschule bis hin zu weiterführenden Schulen.
Auch überregionale Ziele sind gut angebunden: Die Städte Emden (ca. 30 Min.), Leer (ca. 35 Min.) und Oldenburg (ca. 60 Min.) sind mit dem Auto bequem zu erreichen. Die Autobahn A31, die eine direkte Verbindung in Richtung Ruhrgebiet bietet, liegt rund 35 Kilometer entfernt.
Diese Lage vereint das Beste aus zwei Welten: ländliche Idylle und stadtnahen Komfort – ideal für Familien, Paare oder Ruhesuchende.
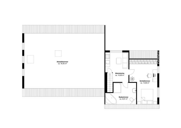
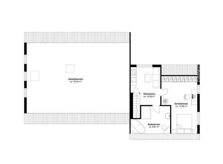
Grundriss
Erdgeschoss
>
>
1.Obergeschoss
>
>
Adresse
26607 Aurich
Interessante Orte
Preis- und Lageinformationen
Preistrend für Bestandsimmobilien in Aurich