Zum Hauptinhalt springen

Wunderschönes Einfamilienhaus in Vechelde

38259 Vechelde
Die vollständige Adresse der Immobilie erhalten Sie vom Anbieter.
Auf Karte anzeigen
Logo ImmoScout24 Logo ImmoScout24
PDF Finanzierungszertifikat

Finanzierungszertifikat

In nur zwei Minuten zu Ihrem persönlichen Finanzierungszertifkat.

  • Zur Vorlage beim Makler oder Verkäufer
  • Vorteile gegenüber anderen Kaufinteressenten
  • Kostenlos und unverbindlich
Finanzierungszertifikat anfragen

Infos

Haustyp Einfamilienhaus
Etagenzahl 1
Wohnfläche ca. 130 m2
Grundstücksfläche 569 m2
Zimmer 3
Schlafzimmer 3
Badezimmer 2

Kosten

Kaufpreis 319.499 €
Provision Nein

Finanzierungsrechner:

Kaufpreis: 600.000 €

Eigenkapital: 600.000 €
Monatliche Rate 0 €
Effektiver Jahreszins 0 %
Sollzinsbindung 10 Jahre

Bausubstanz & Energieausweis

Baujahr 2025
Bauphase Haus in Planung (projektiert)

Beschreibung des Objekts

                Kein Haus von der Stange !!!
Wir bieten Ihnen hier ein individuell für zu planendes Einfamilienhaus an.
Gemeinsam mit Ihnen planen wir Ihren Wohntraum.
Das Grundstück ist nicht im Preis enthalten.
            

Ausstattung

                Das Objekt bekommt eine hochwertige Austattung die nach Wunsch auch geändert werden kann.
               

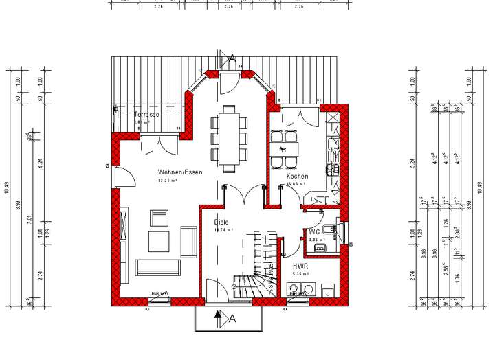
Grundriss

MHPL_SATTEL_03_1000_ARC_EG MHPL_SATTEL_03_1000_ARC_EG >
MHPL_SATTEL_03_1000_ARC_DG MHPL_SATTEL_03_1000_ARC_DG >

Adresse

38259 Vechelde

Interessante Orte

Bäckereien
Schulen
Ärzte

Preis- und Lageinformationen

Preistrend für Bestandsimmobilien in Vechelde
März 2023 März 2024 März 2025 März 2026 3.056,27 €/m² 2.872,22 €/m² -6,02 % -1,09 %

Dieser Zeitraum ist nur für eingeloggte User sichtbar.

Jetzt einloggen

Ansprechpartner