In einer ruhigen Anliegerstraße wurde das Einfamilienhaus in konventioneller Bauweise im Jahr 1974 gebaut.
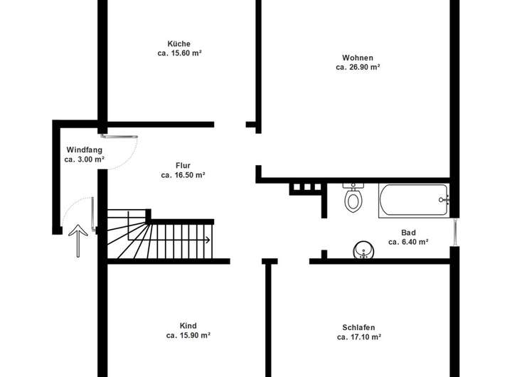
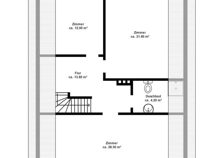
Mit einer Wohnfläche von ca. 180 m² bietet das Haus ausreichend Raum für alle, die viel Platz und ein großzügiges Zuhause suchen. Die durchdachte Raumaufteilung umfasst sechs Zimmer. Über einen Windfang gelangen Sie in die Immobilie. Im Erdgeschoss stehen Ihnen, neben dem großzügigen Wohnzimmer, zwei weitere Zimmer sowie die Küche mit Essplatz und ein Badezimmer zur Verfügung. Die Terrasse ist sowohl vom Wohnzimmer als auch von der Küche begehbar. Über eine offene Holztreppe gelangen Sie in das Dachgeschoss. Hier bieten Ihnen drei weitere Zimmer sowie ein Duschbad viele Gestaltungsmöglichkeiten. In einem Zimmer befinden sich bereits Anschlüsse für eine zweite Küche.
Große Fensterflächen sorgen für viel Tageslicht und verleihen dem Haus ein offenes, freundliches Ambiente. Die Raumgrößen sind gut proportioniert, was das Wohngefühl zusätzlich unterstreicht.
In ruhiger und zentraler Lage
22119 Hamburg
Die vollständige Adresse der Immobilie erhalten Sie vom Anbieter.
Auf Karte anzeigen
Die vollständige Adresse der Immobilie erhalten Sie vom Anbieter.
Finanzierungszertifikat
In nur zwei Minuten zu Ihrem persönlichen Finanzierungszertifkat.
Infos
| Haustyp | Einfamilienhaus |
|---|---|
| Wohnfläche ca. | 180 m2 |
| Grundstücksfläche | 1.040 m2 |
| Bezugsfrei ab | nach Vereinbarung |
| Zimmer | 6 |
| Badezimmer | 2 |
| Garage/Stellplatz | Garage |
| Anzahl Garage/Stellplatz | 1 |
Kosten
| Kaufpreis |
675.000 € |
|---|---|
| Provision |
3,57 % inkl. MwSt. |
Finanzierungsrechner:
Kaufpreis:
600.000 €
Eigenkapital:
600.000 €
Monatliche Rate
0 €
Effektiver Jahreszins
0 %
Sollzinsbindung
10 Jahre
Bausubstanz & Energieausweis
| Baujahr | 1974 |
|---|---|
| Heizungsart | Zentralheizung |
| Wesentliche Energieträger | Öl |
| Energieausweis | liegt vor |
| Energieausweistyp | Bedarfsausweis |
| Energieverbrauchskennwert | 237,6 kWh/(m²*a) |
| Energieeffizienzklasse | G |
237,6
kWh/(m²*a)
Energieeffizienzklasse G
- A+
- A
- B
- C
- D
- E
- F
- G
- H
- 0
- 25
- 50
- 75
- 100
- 125
- 150
- 175
- 200
- 225
- >250
Beschreibung des Objekts
Ausstattung
Die Ausstattung der Immobilie befindet sich weitestgehend in einem modernisierungs- und teilweise in einem sanierungsbedürftigen Zustand.
In den Zimmern im Erdgeschoss ist Parkettboden verlegt, im Dachgeschoss ist Auslegware vorhanden. Der Windfang, der Flur und die Küche sind gefliest.
Das großzügige Badezimmer im Erdgeschoss sowie das Duschbad im Dachgeschoss stammen noch aus dem Baujahr des Hauses. In beiden Bädern sorgen jeweils ein Fenster für eine gute Be- und Entlüftung.
In der großzügigen Küche befindet sich eine ältere Einbauzeile mit allen erforderlichen Gerätschaften. Die Fenster sind in Kunststoff gefasst und isolierverglast. Die Beheizung erfolgt über eine ältere Ölzentralheizung.
Die Immobilie ist unterkellert, mit Außenzugang. Hier befinden sich die Waschküche, der Heizungsraum sowie diverse Abstell- und Lagerungsmöglichkeiten.
Des Weiteren stehen Ihnen eine Garage mit einem angrenzendem Schuppen und ein Gartenpavillon zur Verfügung.
Lage
Der Stadtteil Billstedt zeigt sich vielschichtig, mit größeren Wohnanlagen, bürgerlichen Reihenhaussiedlungen und Gebieten mit überwiegender Einfamilienhausbebauung. Ihre Freizeit können Sie in der nahen Umgebung gestalten, so stehen Ihnen der Öjendorfer Park oder das Hallen- und Freibad Billstedt und zahlreiche Sportvereine zur Verfügung. Einkaufsmöglichkeiten des täglichen Bedarfs, Kindergärten und Schulen sind in großer Auswahl vorhanden. Über die A24 und die A1 ist eine sehr gute Verkehrsanbindung gegeben. Das Haus befindet sich in einem ruhigen und familienfreundlichen Wohngebiet im ehemals selbstständigen Dorf Schiffbek. Die nachbarschaftliche Bebauung ist geprägt von Einfamilienhäusern, Doppelhäusern und vereinzelten Reihenhäusern unterschiedlicher Baujahre. Der Öjendorfer Park ist zügig zu erreichen und lädt zu ausgiebigen Spaziergängen ein. Die Autobahnauffahrten Jenfeld (A24) und Öjendorf (A1) liegen nur wenige Fahrminuten entfernt und gewährleisten eine schnelle Verkehrsanbindung mit dem PKW. Die Anbindung an den öffentlichen Nahverkehr ist ausgezeichnet. Eine Bushaltestelle ist fußläufig erreichbar und Anfang 2027 wird die Lage auch durch die U4 (Horner Geest) perfekt angebunden sein.
Grundriss
Kellergeschoss
>
>
Erdgeschoss
>
>
Dachgeschoss
>
>
Adresse
22119 Hamburg
Interessante Orte
Preis- und Lageinformationen
Preistrend für Bestandsimmobilien in Billstedt