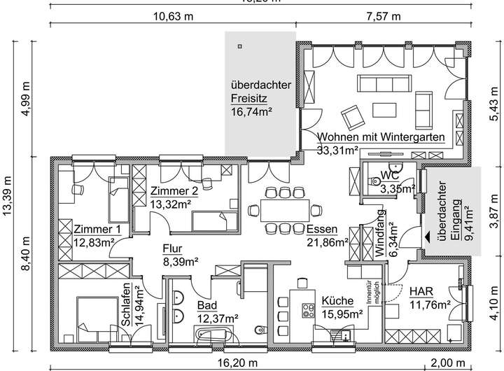
Ihr Bungalow der Extraklasse. Es beginnt schon mit dem überdachtem Hauseingang von dem aus Sie in den Windfang mit Garderobe gelangen. Von hier aus in den HWR sowie auf das Gäste-WC und den Hauptlebensbereich mit einer halboffenen Küche mit angrenzendem Essbereich und zur 16 qm großen überdachten Terrasse. Auf diese gelangen Sie auch von Ihrem 33 qm großen Wohnzimmer. – Ein Schlafzimmer + 2 weitere Zimmer sowie ein vollausgestattetes Bad mit bodengleicher Dusche runden das ganze ab.
ERST BAUEN - DANN ZAHLEN!!!! – Also KEIN Risiko für Sie!!!
Im schönen Westerwald mit Anschluss an die A 3 und zum ICE was will man mehr??
65582 Aull
Die vollständige Adresse der Immobilie erhalten Sie vom Anbieter.
Auf Karte anzeigen
Die vollständige Adresse der Immobilie erhalten Sie vom Anbieter.
Finanzierungszertifikat
In nur zwei Minuten zu Ihrem persönlichen Finanzierungszertifkat.
Infos
| Haustyp | Bungalow |
|---|---|
| Etagenzahl | 1 |
| Wohnfläche ca. | 176 m2 |
| Nutzfläche | 180 m2 |
| Grundstücksfläche | 750 m2 |
| Zimmer | 4 |
| Schlafzimmer | 3 |
| Badezimmer | 1 |
| Anzahl Garage/Stellplatz | 1 |
Kosten
| Kaufpreis |
615.000 € |
|---|---|
| Provision | Nein |
Finanzierungsrechner:
Kaufpreis:
600.000 €
Eigenkapital:
600.000 €
Monatliche Rate
0 €
Effektiver Jahreszins
0 %
Sollzinsbindung
10 Jahre
Bausubstanz & Energieausweis
| Baujahr | 2026 |
|---|---|
| Bauphase | Haus in Planung (projektiert) |
| Objektzustand | Erstbezug |
| Qualität der Austattung | Gehoben |
| Heizungsart | Wärmepumpe |
| Wesentliche Energieträger | Strom |
Beschreibung des Objekts
Ausstattung
Der Angebotspreis beinhaltet das schlüsselfertige Wohnhaus INKLUSIVE Grundstück in energiesparender Bauweise:
Dazu zählt auch:
- Architektenleistung
- KFW 40
- PV-Anlage – neuste Generation
- SCHLÜSSELFERTIGES BAUEN
- ERDARBEITEN für die Bodenplatte
- Bodenplatte
- Luftwasserwärmepumpe mit Fußbodenheizung
- Elektroinstallation
- Be- und Entlüftung (gesund – KEINE trockene Raumluft - und staubfrei!!)
- 3-fach Verglasung
- Innentüren lackiert
- Hochwertige Sanitärobjekte
- 18 Monate Festpreisgarantie
- „Made in Germany“
- ERST BAUEN - DANN ZAHLEN (ohne inkludiertem Grundstückspreis)
Bodenbeläge und Wandbeläge sind zu Ihrem Schutz nicht im Lieferumfang enthalten. - Warum? - Das erkläre ich Ihnen gerne in unserem persönlichen Erstgespräch bei mir im Musterhaus.
Lage
Das Grundstück mit einem sehr großen Gartenbereich befindet sich in ruhiger Lage von Aull Der Grundstückspreis ist im Angebotspreis enthalten!! - Die genaue Lage erfahren Sie gerne bei einem ersten persönlichem Gespräch mit mir. Rufen Sie mich einfach an und vereinbaren einen Termin: 0160 94 55 12 53 oder kontaktieren Sie mich per Email: roidl@scanhaus.de
Sonstige Angaben
Wir bauen seit fast 30 Jahren energiesparende Häuser. Warum nicht auch Ihres? - Unsere einzigartigen Zahlungsbedingungen werden auch sicherlich Sie überzeugen "Erst BAUEN, dann zahlen" (Nicht nach Baufortschritt, sondern erst bei Hausübergabe!!!!) - Also KEIN Risiko für Sie. Gerade in der heutigen Zeit ein sehr wichtiger Aspekt!!! - Das kann Ihnen sonst keiner bieten!!!
Bei SCAN-Haus ist die CO² Diskussion kein Thema, denn wir bauen CO² neutral. Scan-Häuser verursachen keine Treibhausemissionen, da im Holz mehr Energie gespeichert ist, als für die Herstellung und Verarbeitung benötigt wird.
Sie sind auf der Suche nach Ihrem persönlichen Traumhaus. Gerne plane ich mit Ihnen gemeinsam das zu Ihnen passende Objekt. Nehmen Sie einfach mit mir Kontakt auf und profitieren Sie von meiner langjährigen Erfahrung.
Adresse
65582 Aull
Interessante Orte
Preis- und Lageinformationen
Preistrend für Bestandsimmobilien in Aull