Herrliches Grundstück zur Größe von ca. 1,5569 ha idyllischer Außenbereichslage (nahezu Alleinlage) zwischen Bad Zwischenahn und Ocholt mit kleinem Wäldchen bewachsen (Gehölz)!
Das Grundstück ist mit einem Bestandsgebäude aus den 1930er Jahren bebaut, welches in den letzten Jahren im Erdgeschossbereich teilmodernisiert wurde. Das Dachgeschoss befindet sich noch auf dem Stand der 1970er Jahre.
Für den geschickten Handwerker ist dies wohl eine modernisierungswürdige Rohbausubstanz, die als gute Grundlage für eine durchzuführende Kernsanierung dienen kann.
Im Falle einer Neubauplanung ist Folgendes zu beachten:
Das Grundstück befindet sich baurechtlich im so genannten Außenbereich, der nach § 35 BauGB (Bauen im Außenbereich) beurteilt wird. Im Sinne des § 35 Absatz 4 Nummer 2 Baugesetzbuch ist eine Wohnnutzung eines Grundstücks durch einen Ersatzbau planungsrechtlich grundsätzlich zulässig, wenn es sich um ein Wohngebäude handelt, welches seit längerer Zeit (herrschende Meinung mindestens 2 Jahre) vom Eigentümer selbst genutzt wird.
Weiter befindet sich auf dem Grundstück ein großzügiges Nebengebäude mit drei Garagen sowie zwei weiteren Geräteräumen, ideal als Werkstatt, Lagerfläche oder Hobbyraum.
Die Übergabe erfolgt nach Vereinbarung.
Der Energieausweis ist in Vorbereitung.
+++ Nahezu Alleinlage - Altbau mit ca. 1,55 ha gr. Gundstück zw. Bad Zwischenahn und Ocholt! +++
26160 Bad Zwischenahn
Die vollständige Adresse der Immobilie erhalten Sie vom Anbieter.
Auf Karte anzeigen
Die vollständige Adresse der Immobilie erhalten Sie vom Anbieter.
Finanzierungszertifikat
In nur zwei Minuten zu Ihrem persönlichen Finanzierungszertifkat.
Infos
| Haustyp | Einfamilienhaus |
|---|---|
| Wohnfläche ca. | 153 m2 |
| Grundstücksfläche | 15.569 m2 |
| Bezugsfrei ab | nach Vereinbarung |
| Zimmer | 5 |
| Schlafzimmer | 4 |
| Badezimmer | 2 |
| Garage/Stellplatz | Garage |
| Anzahl Garage/Stellplatz | 3 |
Kosten
| Kaufpreis |
240.000 € |
|---|---|
| Provision |
Die Käuferprovision beträgt 3,57 % inkl. 19 % MwSt. vom beurkundeten Kaufpreis. |
Finanzierungsrechner:
Kaufpreis:
600.000 €
Eigenkapital:
600.000 €
Monatliche Rate
0 €
Effektiver Jahreszins
0 %
Sollzinsbindung
10 Jahre
Bausubstanz & Energieausweis
| Baujahr | 1930 |
|---|---|
| Heizungsart | Zentralheizung |
| Wesentliche Energieträger | Gas |
| Energieausweis | liegt vor |
| Energieausweistyp | Bedarfsausweis |
| Energieverbrauchskennwert | 282,9 kWh/(m²*a) |
| Energieeffizienzklasse | H |
282,9
kWh/(m²*a)
Energieeffizienzklasse H
- A+
- A
- B
- C
- D
- E
- F
- G
- H
- 0
- 25
- 50
- 75
- 100
- 125
- 150
- 175
- 200
- 225
- >250
Beschreibung des Objekts
Lage
Sämtliche Einkaufsmöglichkeiten und Versorgungseinrichtungen befinden sich, wie auch die medizinische Grundversorgung (Allgemeinmediziner, Zahnärzte, Apotheken) in Ocholt, nur ca. 4,5 km entfernt oder in Bad Zwischenahn, nur ca. 5 km entfernt. Der Kindergarten, die Grundschule sowie die weiterführenden Schulen befinden sich ebenfalls im beliebten Kurort Bad Zwischenahn. Die Kreisstadt Westerstede ist ca. 10 km entfernt. Hier befinden sich u.a. die Ammerland-Klinik, Fachärzte und sämtliche Kreisbehörden.
Die Gemeinde Bad Zwischenahn verfügt über gute Verkehrsanbindungen an die BAB 28 und verfügt, wie auch Ocholt, über einen Bahnhof an der Bahnstrecke Oldenburg - Leer. Von hier fahren Züge zweimal stündlich in beide Richtungen.
Sonstige Angaben
Zu diesem Objekt liegt ein ausführliches Exposé mit weiteren Detailinformationen vor, das Sie gerne bei uns anfordern können.
Telefonische Erreichbarkeit:
Montag - Freitag: 8.00 Uhr - 12.30 Uhr und 14.00 Uhr bis 17.30 Uhr
Samstag: 9.00 Uhr -12.00 Uhr
Sie möchten Ihre Immobilie verkaufen.....
..... und suchen den passenden Käufer?
Unabhängig davon, ob Sie aktuell oder erst in unbestimmter Zeit Ihre Immobilie verkaufen möchten, ist eine fundierte Beratung bares Geld wert. Wir wissen, worauf es beim professionellen Verkauf Ihrer Immobilie ankommt.
Über 60 Jahre Marktpräsenz und tausende Vermittlungen sprechen für sich.
Für ein kostenfreies und informatives Beratungsgespräch stehen wir Ihnen jederzeit gerne zur Verfügung.
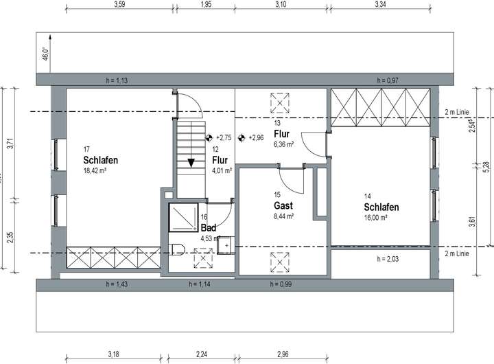
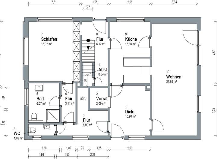
Grundriss
Erdgeschoss
>
>
Dachgeschoss
>
>
Adresse
26160 Bad Zwischenahn
Interessante Orte
Preis- und Lageinformationen
Preistrend für Bestandsimmobilien in Bad Zwischenahn