Ein Rückzugsort mit Charakter – ebenerdiges Wohnen in ruhiger Lage!
Dieser Bungalow aus dem Jahr 1970 befindet sich auf einem ca. 915 m² großen Grundstück in ruhiger Lage und bietet vielseitige Möglichkeiten zur individuellen Gestaltung. Die rund 80 m² Wohnfläche werden durch ca. 39,5 m² Nutzfläche ergänzt, darunter eine Garage, ein Technikraum und ein separater Geräteschuppen.
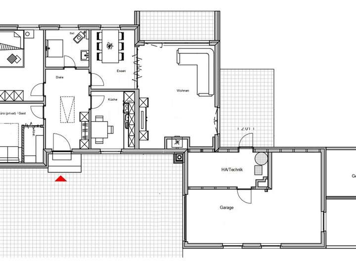
Beim Betreten des Hauses gelangt man in einen zentral gelegenen Flur, von dem aus nahezu alle Räume erschlossen werden. Zwei gemütliche Schlafzimmer, ein Tageslichtbad sowie eine funktionale Küche mit Einbauküche bilden das Herz des Wohnbereichs. Die Küche grenzt an den Essbereich, der offen in das helle und großzügige Wohnzimmer übergeht. Große Fensterflächen und ein Kamin bieten einen schönen Ausblick ins Grüne und schaffen eine freundliche Wohnatmosphäre. Zwei Terrassen mit Gartenblick laden zum Entspannen im Freien ein und erweitern den Wohnraum in die Natur hinein.
Die direkt ans Haus angeschlossene Garage sorgt für kurze Wege im Alltag, der zusätzliche Geräteschuppen bietet praktischen Stauraum für Garten, Hobby oder Fahrräder.
Der Bungalow befindet sich in einem sanierungsbedürftigen Zustand und zeigt vielerorts den Charme vergangener Jahrzehnte. Wer handwerkliches Geschick mitbringt oder ein Projekt mit Entwicklungsperspektive sucht, findet hier eine Immobilie mit Potenzial und Substanz für individuelle Wohnträume.
Wichtig zu wissen: Bei der Heizung handelt es sich um eine Contracting-Heizung.
Für die hier angebotene Immobilie wurde ein individuell auf das Wohnhaus zugeschnittener Sanierungsfahrplan erstellt. Dieser kann Ihnen im Zuge weiterer möglicher Sanierungsmaßnahmen im energetischen Bereich Entscheidungshilfen geben, welche förderungsfähig sind.
Haben wir Ihr Interesse geweckt? Gerne stellen wir Ihnen diese besondere Immobilie bei einer persönlichen Besichtigung vor und vermitteln auch auf Wunsch den Kontakt zu erfahrenen Finanzierungsspezialisten.
6591 - RESERVIERT - Ihr neues Zuhause im Grünen – gemütlicher Bungalow mit viel Raum zur Entfaltung!
26188 Edewecht
Die vollständige Adresse der Immobilie erhalten Sie vom Anbieter.
Auf Karte anzeigen
Die vollständige Adresse der Immobilie erhalten Sie vom Anbieter.
Finanzierungszertifikat
In nur zwei Minuten zu Ihrem persönlichen Finanzierungszertifkat.
Infos
| Haustyp | Bungalow |
|---|---|
| Wohnfläche ca. | 80 m2 |
| Nutzfläche | 39,56 m2 |
| Grundstücksfläche | 915 m2 |
| Bezugsfrei ab | nach Vereinbarung |
| Zimmer | 3 |
| Schlafzimmer | 2 |
| Badezimmer | 1 |
Kosten
| Kaufpreis |
219.000 € |
|---|---|
| Provision |
3,57 % vom Kaufpreis inkl. MwSt |
Finanzierungsrechner:
Kaufpreis:
600.000 €
Eigenkapital:
600.000 €
Monatliche Rate
0 €
Effektiver Jahreszins
0 %
Sollzinsbindung
10 Jahre
Bausubstanz & Energieausweis
| Baujahr | 1969 |
|---|---|
| Wesentliche Energieträger | Gas |
| Energieausweis | liegt vor |
| Energieausweistyp | Bedarfsausweis |
| Energieverbrauchskennwert | 419,2 kWh/(m²*a) |
| Energieeffizienzklasse | H |
419,2
kWh/(m²*a)
Energieeffizienzklasse H
- A+
- A
- B
- C
- D
- E
- F
- G
- H
- 0
- 25
- 50
- 75
- 100
- 125
- 150
- 175
- 200
- 225
- >250
Beschreibung des Objekts
Ausstattung
Ausstattungsmerkmale dieses attraktiven Bungalows sind u.a.:
- ruhige Wohnlage
- durchdachter Grundriss
- ebenerdiges Wohnen
- Wohnzimmer mit Gartenblick
- großzügiger Garten mit Terrassen
- Kamin
- Garage & Geräteschuppen
- und, und, und.
Eine detaillierte Beschreibung würde den Rahmen sprengen, daher empfehlen wir Ihnen eine Besichtigung, sodass Sie sich selbst ein Bild von der attraktiven Immobilie machen können.
Lage
Ländliches Wohnen mit Anschluss – naturnahe Lage in Osterscheps
Diese Wohnlage im beliebten Ortsteil Osterscheps überzeugt durch ihre ausgewogene Mischung aus ländlicher Ruhe und guter Erreichbarkeit. Eingebettet in eine grüne Umgebung mit gewachsenen Strukturen und gepflegten Einfamilienhäusern, bietet sie ein angenehmes Wohnumfeld für Menschen, die Naturverbundenheit und Gemeinschaft schätzen.
Die Umgebung lädt zu vielfältigen Freizeitaktivitäten ein – ob entspannte Spaziergänge entlang kleiner Waldstücke, Radtouren durch offene Felder oder eine Auszeit am nahen Küstenkanal. Wer Erholung im Alltag sucht, wird hier schnell fündig.
Der tägliche Bedarf ist im nahegelegenen Zentrum von Edewecht problemlos gedeckt. Dort befinden sich zahlreiche Einkaufsmöglichkeiten, Arztpraxen, Apotheken sowie Bildungseinrichtungen vom Kindergarten bis zur weiterführenden Schule. Besonders Familien profitieren von der kinderfreundlichen Umgebung und den kurzen Wegen.
Das soziale Leben im Ort ist durch ein starkes Vereinswesen geprägt. Sport- und Schützenvereine sowie regelmäßige Feste und Veranstaltungen tragen zu einem lebendigen Miteinander bei und fördern die Nachbarschaft.
Auch in Sachen Mobilität ist der Standort gut aufgestellt. Der öffentliche Nahverkehr ist fußläufig erreichbar und bietet Verbindungen in Richtung Edewecht, Bad Zwischenahn und Oldenburg. Mit dem Auto gelangt man innerhalb von rund 20 Minuten in die Oldenburger Innenstadt. Die Nähe zur Bundesstraße 401 sowie zur A28 sorgt für schnelle Wege in alle Himmelsrichtungen – ideal für Berufspendler.
Diese Lage vereint die Vorteile eines ruhigen, naturnahen Lebens mit einer funktionalen Infrastruktur und einer starken Gemeinschaft – perfekt für alle, die das Leben auf dem Land mit den Vorzügen der Stadt verbinden möchten.
Sonstige Angaben
Wichtige Hinweise:
Alle Angaben zum Objekt beruhen auf den Angaben des Eigentümers. Für die Vollständigkeit und Richtigkeit dieser Daten übernehmen wir daher grundsätzlich keine Gewähr. Irrtümer sowie Zwischenvermietung bleiben vorbehalten.
Wir bitten um Verständnis dafür, dass wir Informationen zu unseren Objekten nur erteilen, wenn Sie bei ihren Anfragen ihre vollständige Postanschrift, E-Mail und Telefonnummer angeben.
Es ist möglich, dass Sie dieses Objekt auch von anderen Maklern aus der Immobilienbörse Weser-Ems angeboten bekommen. In dem Fall wenden Sie sich an den Makler Ihres Vertrauens.
Nach GEG § 80 Abs. 4 muss im Falle des Verkaufs von Ein- und Zweifamilienhäusern ein kostenfreies, informatorisches Beratungsgespräch mit einer nach § 88 GEG ausstellungsberechtigten Person zum Energieausweis geführt werden.
Adresse
26188 Edewecht
Interessante Orte
Preis- und Lageinformationen
Preistrend für Bestandsimmobilien in Edewecht