Dieses Einfamilienhaus liegt in einer der begehrtesten Wohngegenden Hamburgs, in bevorzugter und ruhiger Wohnlage von Hamburg-Hochkamp. Die grüne Umgebung kombiniert mit einer hervorragenden Anbindung an die Innenstadt und die Nähe zur Elbe bieten eine ideale Mischung aus Erholung und urbanem Komfort.
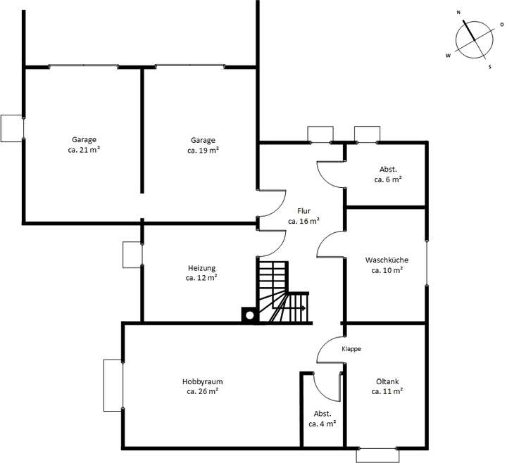
Auf einem Grundstück mit einer Fläche von 1.501 m² wurde im Jahr 1960 das Einfamilienhaus errichtet. Es besticht durch zeitlose Architektur und individuelle Entwicklungsmöglichkeiten. Der Grundriss zeigt eine funktionale und familienfreundliche Aufteilung. Das Haus ist voll unterkellert und hat zwei Tiefgaragenplätze.
Der großzügige Wohnbereich, dem eine besonders große Terrasse vorgelagert ist, bildet das Herzstück des Hauses. Große Fenster, die den Blick in den wunderschönen Garten ermöglichen, sorgen für eine helle und einladende Atmosphäre.
Der gepflegte Garten ist zum Südwesten ausgerichtet und durch den umliegenden Baumbestand kaum einsehbar.
Dieses Haus bietet ein attraktives Zuhause für eine Familie, ermöglicht aber auch ein sehr bequemes Wohnen für nur zwei Personen. Es befindet sich seit dem Bau im gleichen Familienbesitz. Eine Renovierung in den zeitgemäßen Zustand ist zu empfehlen.
Für die Errichtung eines Neubaus, ist der Bebauungsplan Nienstedten 11 in Verbindung mit der Hochkamp Klausel maßgebend. Die baurechtlichen Rahmenbedingungen ermöglichen die Errichtung eines großzügigen Einfamilienhauses, welches sich in das hochwertige Wohnumfeld einfügt.
Uns liegt eine Bebauungsanalyse eines Architektenbüros vor, die wir Ihnen bei näherem Interesse gerne zur Verfügung stellen.
Wir laden Sie sehr herzlich zu einer Besichtigung ein.
Einfamilienhaus auf sonnigem Grundstück
22609 Hamburg
Die vollständige Adresse der Immobilie erhalten Sie vom Anbieter.
Auf Karte anzeigen
Die vollständige Adresse der Immobilie erhalten Sie vom Anbieter.
Finanzierungszertifikat
In nur zwei Minuten zu Ihrem persönlichen Finanzierungszertifkat.
Infos
| Haustyp | Einfamilienhaus |
|---|---|
| Wohnfläche ca. | 189 m2 |
| Nutzfläche | 139 m2 |
| Grundstücksfläche | 1.501 m2 |
| Zimmer | 5,5 |
| Schlafzimmer | 3 |
| Badezimmer | 2 |
| Anzahl Garage/Stellplatz | 2 |
Kosten
| Kaufpreis |
2.600.000 € |
|---|---|
| Provision |
3,57 % inkl. 19 % MwSt. Bei wirksamem Abschluss eines notariellen Kaufvertrages ist eine Maklercourtage in Höhe von 3,57 % inkl. 19 % ges. MwSt., bezogen auf den vereinbarten Kaufpreis, verdient und fällig und vom Käufer an die Firma MEISSLER & CO zu zahlen, die hierdurch einen unmittelbaren Zahlungsanspruch gegenüber dem Käufer erhält. Die Grunderwerbsteuer sowie die Notar- und Gerichtskosten sind vom Käufer zu tragen. Alle Angaben über diese Immobilie beruhen auf Informationen, die uns der Auftraggeber zur Verfügung gestellt hat. Für die Richtigkeit, Aktualität und Vollständigkeit dieser Angaben übernehmen wir keine Gewähr. Irrtum und Zwischenverkauf vorbehalten. |
Finanzierungsrechner:
Kaufpreis:
600.000 €
Eigenkapital:
600.000 €
Monatliche Rate
0 €
Effektiver Jahreszins
0 %
Sollzinsbindung
10 Jahre
Bausubstanz & Energieausweis
| Baujahr | 1960 |
|---|---|
| Objektzustand | Renovierungsbedürftig |
| Wesentliche Energieträger | Öl |
| Energieausweis | liegt vor |
| Energieausweistyp | Bedarfsausweis |
| Energieverbrauchskennwert | 356,1 kWh/(m²*a) |
| Energieeffizienzklasse | H |
356,1
kWh/(m²*a)
Energieeffizienzklasse H
- A+
- A
- B
- C
- D
- E
- F
- G
- H
- 0
- 25
- 50
- 75
- 100
- 125
- 150
- 175
- 200
- 225
- >250
Beschreibung des Objekts
Lage
Die Immobilie liegt im Hamburger Villenviertel Hochkamp, einem in seiner Art einzigartigen und herausragenden Bereich in den Hamburger Elbvororten. Dieses Villenviertel besteht seit den 1890er-Jahren und wurde von Friedrich Leopold Loessner und Ferdinand Ancker gegründet. Aufgrund der sogenannten Hochkampklausel unterliegen alle Grundstücke in diesem Stadtteil verschiedenen Auflagen. Mindestens 1.500 m² Grundstücksgröße und entsprechend großzügige Grenzabstände der Grundstücke zueinander sowie eine nicht gewerbliche Nutzung und eine ausschließliche Bebauung im Villenstil sind beispielsweise wichtige Kriterien. Alle diese Vorschriften sorgen für ein großzügiges, parkähnliches Erscheinungbild der Grundstücke mit repräsentativen Villen und altem Baumbestand. Der idyllische Ortskern von Nienstedten mit seiner traditionellen Bebauung sowie den unterschiedlichen Geschäften des täglichen Bedarfs und den verschiedenen Restaurants ist zu Fuß erreichbar. Eine Vielzahl an Einkaufsmöglichkeiten bietet das nahe gelegene Elbe-Einkaufszentrum. Eine optimale Anbindung an die öffentlichen Verkehrsmittel ist durch die S-Bahnstation Hochkamp sowie durch verschiedene Buslinien gewährleistet. Kindergärten, Grund- und weiterführende Schulen sowie die Internationale Schule befinden sich in unmittelbarer Erreichbarkeit. Das nahe gelegene Elbufer, zahlreiche Grünanlagen, Naturschutzgebiete und diverse Sportvereine wie z. B. der Poloclub bieten einen hohen Freitzeitwert.
Sonstige Angaben
MEISSLER & CO gehört zu den größten, inhabergeführten Immobilienunternehmen Hamburgs für die Vermittlung hochwertiger Wohnimmobilien in den Elbvororten, an der Alster sowie in der HafenCity.
In den vier Hamburger Standorten:
Büro Blankenese | Blankeneser Bahnhofstr. 8 | 22587 Hamburg
Büro Nienstedten | Nienstedtener Markplatz 29 | 22609 Hamburg
Büro Othmarschen | Waitzstr. 5 | 22607 Hamburg
Büro Ottensen – Alster| Klopstockstr. 31 | 22765 Hamburg
bietet MEISSLER & CO hohe Kompetenz in der Bewertung und der Vermarktung erstklassiger Wohnimmobilien.
Wir freuen uns auf Ihre Kontaktaufnahme für die Abstimmung eines Beratungstermins:
Tel.: 040 86 44 44 | E-Mail: info@meissler-co.de
Adresse
22609 Hamburg
Interessante Orte
Preis- und Lageinformationen
Preistrend für Bestandsimmobilien in Osdorf