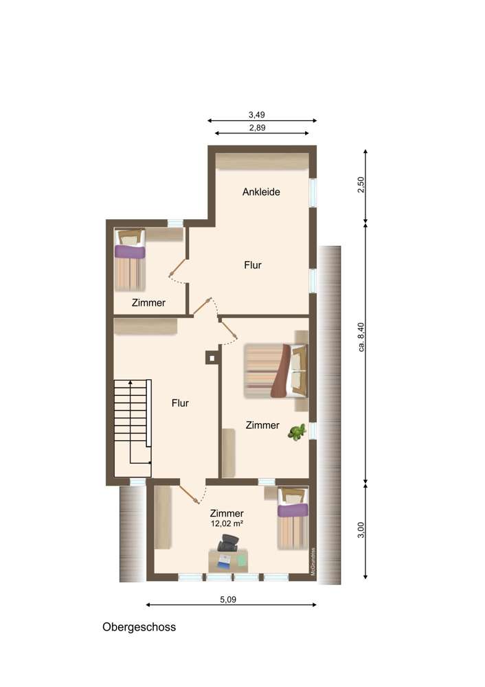
Dieses charmante Fachwerkhaus erzählt seine eigene Geschichte. Ursprünglich als Fachwerkhaus erbaut, wurde es mit den Jahren, letztmals Mitte der 1990er Jahre, mehrfach an- und umgebaut. Umgeben von mehreren Nebengebäuden entfaltet sich hier ein ländliches Idyll mit viel Raum für Ideen: eine große Scheune mit Garagenplätzen und vom Garten aus erreichbarem Lager- oder Hobbyraum sowie ein kleines "Hobbywerkstatt-Gebäude". Das Grundstück ist ein verwunschener Rückzugsort – liebevoll eingewachsen, mit lauschigen Ecken, einem kleinen Pool für warme Tage und einem überdachten Sitzplatz, der zu langen Abenden im Freien einlädt. Das Hausgrundstück ist 651 m² groß. Ein zusätzliches Gartengrundstück mit 394 m², im Ortskern gelegen, wird mitverkauft und ist im Preis enthalten. Im Inneren setzt sich der besondere Charakter fort. Das Erdgeschoss öffnet sich in einen großzügigen, Küchen- und Essbereich mit offenem Ambiente und einem lichtdurchfluteten Wohnbereich – ein Ort, an dem sich Familienleben und Kommunikation ganz natürlich entfalten. Im Obergeschoss bieten drei Zimmer sowie ein großer zentraler Raum vielseitige Nutzungsmöglichkeiten – vom Kinder- oder Gästezimmer bis hin zum ruhigen Arbeitsbereich. Und wenn man noch eine Etage weiter nach oben steigt, gelangt man in das ausgebaute Dachgeschoss – ein Rückzugsort mit ganz eigenem Flair. Ob als Bibliothek, Hobbyraum oder Fitnessbereich: Hier oben genießt man nicht nur Ruhe, sondern auch einen herrlichen Ausblick über die Umgebung. Hier bekommen Sie ein Zuhause, das mehr ist als nur vier Wände – ein Ort mit Charakter, der darauf wartet, mit neuem Leben gefüllt zu werden.
***Ein Zuhause mit Geschichte und Charakter***
56357 Niederbachheim
Die vollständige Adresse der Immobilie erhalten Sie vom Anbieter.
Auf Karte anzeigen
Die vollständige Adresse der Immobilie erhalten Sie vom Anbieter.

Finanzierungszertifikat
In nur zwei Minuten zu Ihrem persönlichen Finanzierungszertifkat.
Infos
Haustyp | Einfamilienhaus |
---|---|
Wohnfläche ca. | 145 m2 |
Grundstücksfläche | 651 m2 |
Zimmer | 5 |
Badezimmer | 1 |
Kosten
Kaufpreis |
195.000 € |
---|---|
Provision |
7.140,00 Euro inkl. MwSt. Käuferprovision |
Finanzierungsrechner:
Kaufpreis:
600.000 €
Eigenkapital:
600.000 €
Monatliche Rate
0 €
Effektiver Jahreszins
0 %
Sollzinsbindung
10 Jahre
Bausubstanz & Energieausweis
Baujahr | 1905 |
---|---|
Heizungsart | Zentralheizung |
Wesentliche Energieträger | Gas |
Energieausweis | liegt vor |
Energieausweistyp | Bedarfsausweis |
Energieverbrauchskennwert | 164,2 kWh/(m²*a) |
Energieeffizienzklasse | F |
164,2
kWh/(m²*a)
Energieeffizienzklasse F
- A+
- A
- B
- C
- D
- E
- F
- G
- H
- 0
- 25
- 50
- 75
- 100
- 125
- 150
- 175
- 200
- 225
- >250
Beschreibung des Objekts
Ausstattung
-Fachwerkhaus mit Charakter -Scheune und weitere Nebengebäude -Idyllischer Außenbereich mit Garten und kleinem Pool -Überdachter Sitzplatz -Kunststofffenster 2-fach verglast -Gasheizung Firma Viessmann aus 2015
Lage
Das Anwesen befindet sich in Ortslage von Niederbachheim, idyllisch gelegen, in der Verbandsgemeinde Nastätten. Vielfältige Versorgungsmöglichkeiten wie Verbrauchermärkte, Einzelhandel, Lebensmittel sowie Fachärzte, Apotheken, Krankenhaus sind im ca. 10 km entfernten Nastätten angesiedelt. Grundschule und Kindertagesstätte sind in den Nachbargemeinden Dachsenhausen und Gemmerich. Weiterführende Schulen befinden sich in St. Goarshausen und Nastätten. Koblenz erreichen Sie in ca. 25 Minuten mit dem PKW.
Sonstige Angaben
Gefällt Ihnen unser Angebot? Dann zögern Sie nicht und melden sich bei uns. Wir zeigen Ihnen das Anwesen in einem gemeinsamen Termin vor Ort und begleiten Sie bei den folgenden Schritten zum Kauf Ihres eigenen Zuhauses. Sie haben Fragen zur Finanzierung oder suchen einen Finanzierungspartner? Auch hier stehen wir Ihnen gerne zur Seite. Oder haben Sie gleichzeitig eine Immobilie zum Verkauf? Wir kümmern uns darum! Wir haben dieses Exposé mit Sorgfalt und nach bestem Wissen erstellt. Das Angebot erfolgt freibleibend, alle Angaben beruhen auf uns erteilten Informationen von Dritten. Zwischenverkauf und Irrtum bleiben vorbehalten. Wir weisen darauf hin, dass vorhandene Grundrisse nicht maßstabsgetreu sind, Maße, Angaben und Details abweichen können. Für die Richtigkeit, Vollständigkeit und Aktualität der Angaben können wir keine Gewähr übernehmen, auch nicht für mögliche Folgenutzungen der Immobilie. Die Funktionsfähigkeit der technischen Anlagen haben wir bestmöglich erfragt, können jedoch im Einzelfall hierfür keine Gewähr übernehmen. Selbstverständlich erhalten Sie bei näherem Interesse die Möglichkeit, das Haus durch Experten Ihrer Wahl ausführlich prüfen und begutachten zu lassen. Für die Klärung Ihrer offenen Fragen stehen wir Ihnen gerne zur Verfügung. Doch nicht die richtige Immobilie? Dann schauen Sie sich unser weiteres Angebot an: www.zimmermann-immobilien.eu
Grundriss
45105_726810_1926630_93-1143_S
>

45105_726810_1926631_93-1143_S
>

45105_726810_1926632_93-1143_S
>

Adresse
56357 Niederbachheim
Interessante Orte
Preis- und Lageinformationen
Preistrend für Bestandsimmobilien in Niederbachheim