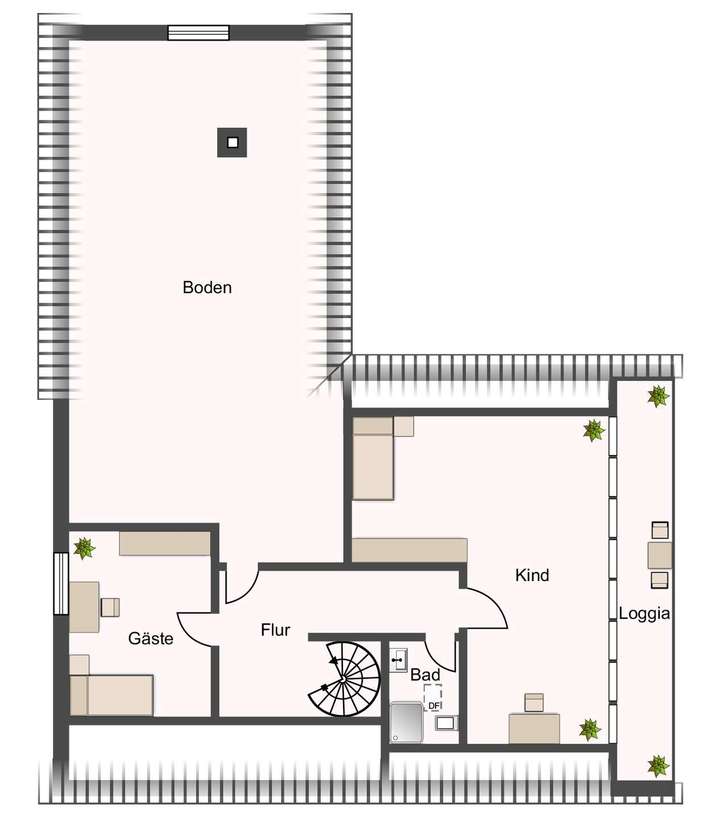
Dieses gepflegte Einfamilienhaus in Garbsen bietet ca. 295 m² Wohnfläche auf zwei Etagen und steht auf einem ca. 877 m² großen Grundstück in idyllischer Feldrandlage. Der weitläufige Garten mit Teich, die sonnige Terrasse und der Blick auf Pferdeweiden schaffen eine besondere Wohnatmosphäre. Im Erdgeschoss befinden sich ein großzügiger Wohn- und Essbereich mit Kamin, eine separate Küche mit hochwertigen Geräten (u.a. Gaggenau-Backofen), ein Schlafzimmer mit Ankleide, ein Büro, ein Tageslichtbad, Gäste-WC sowie ein Hauswirtschafts- und Abstellraum. Ein angebauter Geräteschuppen ist von außen zugänglich. Im Dachgeschoss gibt es zwei weitere Zimmer (eines mit Loggia), ein Bad sowie einen ausgebauten Bodenraum mit integrierter Bar – ideal als Party- oder Hobbyraum. Die separate Doppelgarage bietet zusätzlichen Stauraum durch einen begehbaren Spitzboden. Ein ideales Zuhause für Familien, Naturliebhaber und alle, die das Besondere suchen. Ein ausführliches Exposé mit weiteren Informationen und zahlreichen Fotos erhalten Sie gern auf Anfrage.
Einfamilienhaus mit Kamin, Bar und Doppelgarage in traumhafter Feldrandlage von Garbsen
30827 Garbsen
Die vollständige Adresse der Immobilie erhalten Sie vom Anbieter.
Auf Karte anzeigen
Die vollständige Adresse der Immobilie erhalten Sie vom Anbieter.

Finanzierungszertifikat
In nur zwei Minuten zu Ihrem persönlichen Finanzierungszertifkat.
Infos
Haustyp | Sonstige |
---|---|
Etagenzahl | 2 |
Wohnfläche ca. | 295 m2 |
Grundstücksfläche | 877 m2 |
Zimmer | 6 |
Schlafzimmer | 3 |
Badezimmer | 2 |
Anzahl Garage/Stellplatz | 2 |
Kosten
Kaufpreis |
590.000 € |
---|---|
Provision |
3,57% inkl. ges. MwSt. Die Provision ist verdient und fällig nach notarieller Beurkundung des Kaufvertrages. |
Finanzierungsrechner:
Kaufpreis:
600.000 €
Eigenkapital:
600.000 €
Monatliche Rate
0 €
Effektiver Jahreszins
0 %
Sollzinsbindung
10 Jahre
Bausubstanz & Energieausweis
Baujahr | 1973 |
---|---|
Bauphase | Haus fertig gestellt |
Objektzustand | Gepflegt |
Qualität der Austattung | Normal |
Heizungsart | Gas-Heizung |
Wesentliche Energieträger | Gas |
Energieausweis | liegt vor |
Energieausweistyp | Verbrauchsausweis |
Energieverbrauchskennwert | 133,8 kWh/(m²*a) |
Energieeffizienzklasse | E |
133,8
kWh/(m²*a)
Energieeffizienzklasse E
- A+
- A
- B
- C
- D
- E
- F
- G
- H
- 0
- 25
- 50
- 75
- 100
- 125
- 150
- 175
- 200
- 225
- >250
Beschreibung des Objekts
Grundriss
Grundriss Erdgeschoss
>

Grundriss Dachgeschoss
>

B&S Immobilien Service GmbH
>

Adresse
30827 Garbsen
Interessante Orte
Preis- und Lageinformationen
Preistrend für Bestandsimmobilien in Garbsen