Sie suchen ein gepflegtes Zuhause und möchten gleichzeitig in eine zukunftssichere Immobilie investieren?
Dieses attraktive Doppelhaus aus dem Jahr 2015 vereint beides: zwei vollwertige Wohneinheiten in moderner Bungalow-Bauweise, wovon eine Hälfte aktuell vermietet ist und Ihnen sofortige Mieteinnahmen sichert. Die andere Hälfte steht zur Eigennutzung oder weiteren Vermietung bereit – maximale Flexibilität für Eigennutzer und Kapitalanleger.
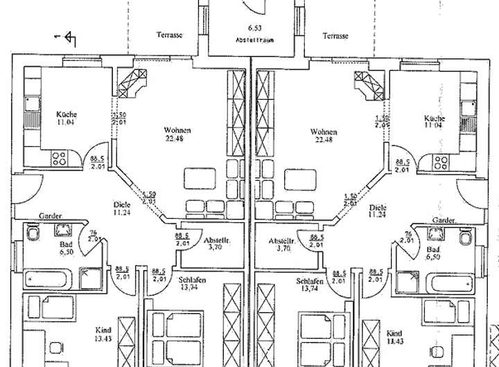
Insgesamt stehen Ihnen ca. 168 m² Wohnfläche zur Verfügung – aufgeteilt in zwei Einheiten à ca. 84 m². Jede Hälfte bietet drei gut geschnittene Zimmer, die sich ideal als Wohn-/Essbereich, Schlafzimmer und Arbeits- oder Gästezimmer nutzen lassen. Große Fensterflächen sorgen für viel Tageslicht, während die offene Raumgestaltung und die moderne Ausstattung für hohen Wohnkomfort sorgen.
Für wohlige Wärme sorgt eine effiziente Gas-Zentralheizung in Kombination mit Fußbodenheizung – perfekt für ein angenehmes Raumklima zu jeder Jahreszeit.
Das großzügige Grundstück von ca. 640 m² bietet viel Platz zur Erholung und individuellen Gestaltung – ob sonnige Terrasse, blühender Garten oder eigener Gemüseanbau.
Highlights im Überblick:
-Doppelhaus in moderner Bungalow-Bauweise (Baujahr 2015)
-Gesamtwohnfläche ca. 168 m², aufgeteilt in 2 Einheiten à ca. 84 m²
-Je 3 helle und gut nutzbare Zimmer pro Einheit
-Fußbodenheizung für optimalen Wohnkomfort
-Effiziente Gas-Zentralheizung
-Grundstück gesamt ca. 640 m² mit gepflegtem Garten
-Eine Haushälfte aktuell vermietet – sofortige Mieteinnahmen
-Flexible Nutzung: Eigennutzung, Komplettvermietung oder Kombination
-Top Lage, ideal für Paare, kleine Familien oder Kapitalanleger
Wohnen, vermieten oder beides – dieses Doppelhaus bietet die perfekte Verbindung aus stilvollem Wohnen und attraktiver Kapitalanlage.
Doppelhaus Bungalow (Bj. 2015) in Grußendorf
38524 Sassenburg
Die vollständige Adresse der Immobilie erhalten Sie vom Anbieter.
Auf Karte anzeigen
Die vollständige Adresse der Immobilie erhalten Sie vom Anbieter.
Finanzierungszertifikat
In nur zwei Minuten zu Ihrem persönlichen Finanzierungszertifkat.
Infos
| Haustyp | Bungalow |
|---|---|
| Wohnfläche ca. | 168 m2 |
| Grundstücksfläche | 640 m2 |
| Bezugsfrei ab | sofort |
| Zimmer | 6 |
| Schlafzimmer | 4 |
| Badezimmer | 2 |
| Garage/Stellplatz | Außenstellplatz |
| Anzahl Garage/Stellplatz | 4 |
Kosten
| Kaufpreis |
540.000 € |
|---|---|
| Provision |
2,975% inkl. MwSt. Der Käufer zahlt an die Spies Immobilien 2 GmbH eine mit Abschluss des Kaufvertrages fällige Provision in Höhe von 2,975% des Kaufpreises inkl. der gesetzlichen Mehrwertsteuer (zurzeit 19 %). |
Finanzierungsrechner:
Kaufpreis:
600.000 €
Eigenkapital:
600.000 €
Monatliche Rate
0 €
Effektiver Jahreszins
0 %
Sollzinsbindung
10 Jahre
Bausubstanz & Energieausweis
| Baujahr | 2015 |
|---|---|
| Qualität der Austattung | Normal |
| Heizungsart | Fußbodenheizung |
| Wesentliche Energieträger | Gas |
| Energieausweis | liegt vor |
| Energieausweistyp | Bedarfsausweis |
| Energieverbrauchskennwert | 71,5 kWh/(m²*a) |
| Energieeffizienzklasse | B |
71,5
kWh/(m²*a)
Energieeffizienzklasse B
- A+
- A
- B
- C
- D
- E
- F
- G
- H
- 0
- 25
- 50
- 75
- 100
- 125
- 150
- 175
- 200
- 225
- >250
Beschreibung des Objekts
Lage
Der Bungalow befindet sich in Grußendorf, einem ruhigen Ortsteil der Gemeinde Sassenburg im Landkreis Gifhorn, Niedersachsen. Grußendorf zeichnet sich durch seine naturnahe und familienfreundliche Umgebung aus und bietet gleichzeitig eine gute Anbindung an die umliegenden Städte.
Einkaufsmöglichkeiten, Kindergärten, Schulen und Ärzte befinden sich im nahegelegenen Westerbeck oder Gifhorn – bequem mit dem Auto oder Fahrrad erreichbar. Die Nähe zur Südheide und mehreren Wald- und Naherholungsgebieten macht den Ort besonders attraktiv für Naturfreunde und Ruhesuchende.
Die Verkehrsanbindung ist ebenfalls gut: Über die B188 sowie die nahegelegene B4 erreicht man Wolfsburg und Gifhorn in kurzer Zeit – ideal für Berufspendler.
Highlights der Lage:
Ruhige und grüne Wohngegend in Grußendorf
Natur- und Waldnähe mit hohem Freizeitwert
Gute Erreichbarkeit von Gifhorn und Wolfsburg
Kindergärten, Schulen und Einkaufsmöglichkeiten im nahen Umfeld
Familienfreundliche Nachbarschaft
Ein idealer Ort für alle, die naturnah wohnen möchten und dennoch die Vorzüge der Stadt nicht missen wollen.
Grundriss
Grundriss
>
>
Adresse
38524 Sassenburg
Interessante Orte
Preis- und Lageinformationen
Preistrend für Bestandsimmobilien in Sassenburg