Dieses gepflegte Mehrfamilienhaus aus dem Jahr 1948 befindet sich in einer ruhigen Seitenstraße von Rodgau-Weiskirchen. Das Haus überzeugt durch seinen sehr guten Pflegezustand, umfangreiche Modernisierungen sowie eine attraktive Grundstücksgröße von ca. 593 m².
• Baujahr: 1948
• Wohnfläche gesamt: ca. 182,5 m²
• Grundstücksfläche: ca. 593 m²
• Wohnungen: 3 Einheiten (EG, OG, DG)
• Garagen/Stellplätze: 3 Garagen, 1 Stellplatz
• Energieverbrauch: 132 kWh/(m²·a)
• Heizung: Gas-Zentralheizung, Baujahr 2015
• Fenster: 3-fach Verglasung
• Wärmedämmung vorhanden
Sanierungen & Modernisierungen
• 2013: Hofsanierung, Treppenhaus renoviert, sämtliche Bäder modernisiert
• 2013: Wärmedämmung angebracht, Fenster erneuert (3-fach Verglasung)
• 2020: Erneuerung der Garagendächer
• Heizungsanlage (Gas) Baujahr 2015
Außenbereich
Der großzügige, gepflegte Garten ist attraktiv angelegt und wird durch die Mieter gepflegt. Erdgeschoss und Obergeschoss teilen sich den Garten jeweils zur Hälfte. Der Hof ist großzügig gepflastert und bietet zusätzlichen Nutzwert.
Charmantes 3-Familienhaus in ruhiger Lage von Rodgau-Weiskirchen – top gepflegt, ohne Sanierungsstau
Falltorstraße 22,
63110 Rodgau
Auf Karte anzeigen
Finanzierungszertifikat
In nur zwei Minuten zu Ihrem persönlichen Finanzierungszertifkat.
Infos
| Haustyp | Mehrfamilienhaus |
|---|---|
| Etagenzahl | 2 |
| Wohnfläche ca. | 182 m2 |
| Nutzfläche | 65 m2 |
| Grundstücksfläche | 593 m2 |
| Zimmer | 8 |
| Garage/Stellplatz | Garage |
| Anzahl Garage/Stellplatz | 3 |
Kosten
| Kaufpreis |
545.000 € |
|---|---|
| Provision |
3,57% Provision für Käufer Inkl. gesetzl. in Höhe von3,57% inkl. 19% MwSt. Die Höhe der Courtage wird seit dem 23.12.2020 in Kraft getretenen gesetzlichen Regelungen zwischen dem Käufer und Verkäufer hälftig geteilt. Die Maklercourtage beträgt für beide Parteien (Verkäufer und Käufer) jeweils 3,57% auf den Kaufpreis einschließlich gesetzlicher Mehrwertsteuer über 19% Diese ist bei notariellem Vertragsabschluss verdient und fällig. |
Finanzierungsrechner:
Kaufpreis:
600.000 €
Eigenkapital:
600.000 €
Monatliche Rate
0 €
Effektiver Jahreszins
0 %
Sollzinsbindung
10 Jahre
Bausubstanz & Energieausweis
| Letzte Sanierung | 2013 |
|---|---|
| Objektzustand | Modernisiert |
| Qualität der Austattung | Normal |
| Energieausweis | liegt zur Besichtigung vor |
Beschreibung des Objekts
Ausstattung
Aufteilung
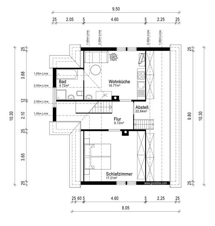
• Erdgeschoss (67,5 m²): 3 Zimmer, Küche, Bad – Miete: 530 € + 30 € Stellplatz
• Obergeschoss (67,5 m²): 3 Zimmer, Küche, Bad – Miete: 420 € + 35 € Garage
• Dachgeschoss (47,5 m²): 2 Zimmer, Küche, Bad – Miete: 450 € + 30 € Küchenmiete
Gesamtmieteinnahmen aktuell: 1.495 € / Monat – mit Potenzial zur Mietsteigerung.
Lage
Falltorstraße 22, 63110 Rodgau-Weiskirchen
Sonstige Angaben
Alle Angaben in diesem Exposé wurden sorgfältig und so vollständig wie möglich gemacht. Alle objektbezogenen Angaben stammen vom Eigentümer oder vom Auskunftsbefugten. Eine Haftung für deren Richtigkeit im Hinblick auf Größe, Güte und Beschaffenheit wird nicht übernommen. Maßgeblich sind die im Mietvertrag geschlossenen Vereinbarungen.
Nun haben Sie einen ersten Eindruck von dieser Immobilie. Für alle weiteren Fragen und einen Besichtigungstermin stehe ich Ihnen gerne jederzeit zur Verfügung. Ich freue mich über Ihren Anruf oder Ihre E-Mail.
Grundriss
EG
>
>
OG
>
>
DG
>
>
KG
>
>
Adresse
Falltorstraße 22, 63110 Rodgau
Interessante Orte
Preis- und Lageinformationen
Preistrend für Bestandsimmobilien in Rodgau