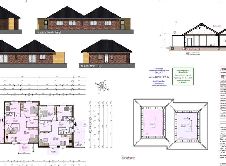
Beschreibung: 6 Doppel-Bungalows-Hälften in Herbrum - Schlüsselfertige Massivhäuser mit hohem Energiestandard – Von Privat zu verkaufen Wir bieten 6 Doppel-Bungalows-Hälften in Herbrum an, die in Massivbauweise errichtet werden. Die Fertigstellung ist für den 01.03.2026 geplant. Highlights: - Schlüsselfertige Doppel-Bungalows-Hälften in Massivbauweise - Hoher Energiestandard durch Luft-/Wärmepumpe und moderne Bauweise - Geringe Nebenkosten dank effizienter Heiztechnik - Moderne Raumaufteilung: - Erdgeschoss: Flur/Diele, offener Wohn-/Koch-/Essbereich, 2 Schlafzimmer, Bad, Gäste-WC und Hauswirtschaftsraum - Dachgeschoss: Stauraum - Infrastrukturen und Einrichtungen in Aschendorf oder Papenburg in wenigen Autominuten erreichbar Ideal für: Menschen, die ihren Traum von zukunftsorientiertem Wohnen verwirklichen möchten, ohne auf einen hohen Energiestandard zu verzichten. Kontakt: Wenn Sie interessiert sind, kontaktieren Sie uns bitte. Wir freuen uns darauf, von Ihnen zu hören!
Besonderheiten der Immobilie: Ausstattung: - Energieeffizienz: Endenergiebedarf Klasse A+ - Heizung: - Fußbodenheizung für optimale Wärmeverteilung - Buderus Luft- und Wärmepumpe für effiziente Heizung - Fenster und Verschattung: - 3-fach verglaste Fenster für beste Isolierung - Elektrische Rolläden für flexible Licht- und Temperaturregelung - Energieerzeugung: - Photovoltaik-Anlage mit 6,075 kWp Leistung und 5 kW Speicher für maximale Energieautarkie - Lüftung: - Dezentrale Lüftungsanlage für optimale Luftqualität - Außenbereich: - Carport mit Abstellraum für sicheres Parken und zusätzlichen Stauraum - Gästebereich: - Separate Gästetoilette für mehr Komfort und Privatsphäre
Lage der Immobilie: Neubau in Papenburg OT Herbrum - Schlüsselfertige Doppel-Bungalows-Hälften in hochwertiger Bauausführung Standort: 26871 Papenburg OT Herbrum (Landkreis Emsland) Lage: - Nahe zu infrastrukturellen Einrichtungen wie Aldi, Combi und Rossmann (ca. 5 Autominuten) - Gute Verkehrsanbindung an die B70 - Schnell erreichbar nach Aschendorf und Papenburg
Sonstiges: Aufgepasst, Neubau!!! Wir bieten schlüsselfertige Doppel-Bungalows-Hälften in hochwertiger Bauausführung an. Perfekt für alle, die Wert auf Qualität und Komfort legen.
Von Privat. Neubau Bungalow mit KfW-40 Standard inkl. Carport und PV- Anlage mitten in Herbrum
26871 Papenburg
Die vollständige Adresse der Immobilie erhalten Sie vom Anbieter.
Auf Karte anzeigen
Die vollständige Adresse der Immobilie erhalten Sie vom Anbieter.
Finanzierungszertifikat
In nur zwei Minuten zu Ihrem persönlichen Finanzierungszertifkat.
Infos
| Haustyp | Doppelhaushaelfte |
|---|---|
| Etagenzahl | 1 |
| Wohnfläche ca. | 80 m2 |
| Nutzfläche | 0 m2 |
| Grundstücksfläche | 600 m2 |
| Zimmer | 3 |
| Schlafzimmer | 1 |
| Badezimmer | 1 |
| Garage/Stellplatz | Carport |
| Anzahl Garage/Stellplatz | 2 |
Kosten
| Kaufpreis |
295.000 € |
|---|---|
| Provision | Nein |
Finanzierungsrechner:
Kaufpreis:
600.000 €
Eigenkapital:
600.000 €
Monatliche Rate
0 €
Effektiver Jahreszins
0 %
Sollzinsbindung
10 Jahre
Bausubstanz & Energieausweis
| Baujahr | 2026 |
|---|---|
| Bauphase | Haus im Bau |
| Energieausweis | liegt zur Besichtigung vor |
Beschreibung des Objekts
Sonstige Angaben
Energieausweis liegt zur Besichtigung vor.
Adresse
26871 Papenburg
Interessante Orte
Preis- und Lageinformationen
Preistrend für Bestandsimmobilien in Papenburg