Zum Verkauf steht ein einladendes Einfamilienhaus mit einer großzügigen Wohnfläche von 120 m², ideal für Familien oder Paare, die Wert auf Raum und Individualität legen. Das Haus verfügt über insgesamt 4 Zimmer, darunter 3 Schlafzimmer, die Ihnen ausreichend Platz für Ihre persönlichen Rückzugsorte bieten.
Die Immobilie erstreckt sich über ein Grundstück von 652 m² und bietet Ihnen die Möglichkeit, Ihren eigenen Garten nach Ihren Vorstellungen zu gestalten. Genießen Sie entspannte Stunden im Freien oder laden Sie Freunde und Familie zu geselligen Grillabenden ein.
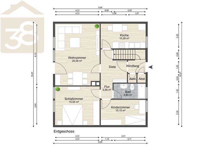
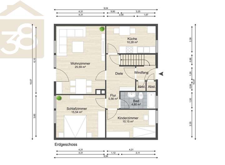
Über den Windfang betreten Sie den zentralen Flur im Erdgeschoss. Es erwarten Sie das Wohnzimmer, ein Schlafzimmer, ein Kinderzimmer sowie Küche und Bad auf dieser Etage. Das gemütliche Wohnzimmer ist mit einem Kaminanschluss ausgestattet und bietet Zugang zur überdachten Terrasse für erholsame Stunden. Das modernisierte Badezimmer verfügt über eine Dusche mit barrierefreiem Zugang. Die Küche ist mit einer Einbauküche älteren Baujahrs ausgestattet.
Das Dachgeschoss wurde nachträglich ausgebaut und bietet ein Studio als Homeoffice, Gäste- oder Spielzimmer. Oder aber Ihr Teenager findet hier sein eigenes Reich. Praktischerweise verfügt auch diese Etage über ein Duschbad.
Im Kellergeschoss finden sich vier Räume, davon der Heizungsraum für die Ölheizung sowie ein Hauswirtschaftsraum, Vorrats- und ein Hobbykeller.
Die letzte Modernisierung fand im Jahr 2021 statt, jedoch ist das Haus renovierungsbedürftig und bietet Ihnen die Chance, es nach Ihren Wünschen und Vorstellungen zu gestalten.
Zusätzlich verfügt die Immobilie über eine Garage sowie einen Außenstellplatz, die Ihnen ausreichend Parkmöglichkeiten bieten. Der Keller und zwei Abstellräume im Erdgeschoss sorgen für praktischen Stauraum.
Die Beheizung erfolgt über eine Öl-Heizung, die für wohlige Wärme sorgt.
Lassen Sie sich von diesem charmanten Einfamilienhaus begeistern und vereinbaren Sie noch heute einen Besichtigungstermin! Hier wartet Ihr neues Zuhause auf Sie!
Einfamilienhaus in Osloß! Mein Haus = Mein Partner!
38557 Osloß
Die vollständige Adresse der Immobilie erhalten Sie vom Anbieter.
Auf Karte anzeigen
Die vollständige Adresse der Immobilie erhalten Sie vom Anbieter.
Finanzierungszertifikat
In nur zwei Minuten zu Ihrem persönlichen Finanzierungszertifkat.
Infos
| Haustyp | Einfamilienhaus |
|---|---|
| Etagenzahl | 1 |
| Wohnfläche ca. | 120 m2 |
| Grundstücksfläche | 652 m2 |
| Bezugsfrei ab | sofort |
| Zimmer | 4 |
| Schlafzimmer | 3 |
| Badezimmer | 2 |
| Garage/Stellplatz | Garage |
| Anzahl Garage/Stellplatz | 2 |
Kosten
| Kaufpreis |
180.000 € |
|---|---|
| Provision |
2,58 % Käuferprovision inklusive Umsatzsteuer. Die Käufer-Provision beträgt 2,58 % vom Kaufpreis inkl. MwSt. Die Käufer-Provision ist verdient und fällig mit notarieller Beurkundung. Die Maklerhaus 38 GmbH hat einen provisionspflichtigen Maklervertrag in gleicher Höhe mit dem Verkäufer abgeschlossen. |
Finanzierungsrechner:
Kaufpreis:
600.000 €
Eigenkapital:
600.000 €
Monatliche Rate
0 €
Effektiver Jahreszins
0 %
Sollzinsbindung
10 Jahre
Bausubstanz & Energieausweis
| Baujahr | 1972 |
|---|---|
| Letzte Sanierung | 2021 |
| Bauphase | Haus fertig gestellt |
| Objektzustand | Renovierungsbedürftig |
| Qualität der Austattung | Normal |
| Heizungsart | Öl-Heizung |
| Wesentliche Energieträger | Öl |
| Energieausweis | liegt zur Besichtigung vor |
Beschreibung des Objekts
Ausstattung
+ 120 m² Wohnfläche
+ 652 m² Grundstücksfläche
+ Garage
+ Kaminanschluss
+ 2 Badezimmer
+ überdachte Terrasse 26 m²
+ Fenster 2021 erneuert
+ Öl-Heizung von 2015
Lage
Die angebotene Immobilie befindet sich in der malerischen Gemeinde Osloß, die für ihre ruhige und familiäre Atmosphäre bekannt ist. Die Umgebung bietet eine hervorragende Lebensqualität, ideal für Paare und Familien, die die Natur und eine entspannte Lebensweise schätzen.
In unmittelbarer Nähe finden Sie zahlreiche Freizeitmöglichkeiten, darunter Wander- und Radwege, die zu erholsamen Ausflügen einladen. Die Gemeinde ist von einer idyllischen Landschaft umgeben, die zu jeder Jahreszeit ihre Schönheit entfaltet.
Die Infrastruktur ist optimal: Einkaufsmöglichkeiten, Schulen und Kindergärten sind in nur wenigen Minuten erreichbar. Öffentliche Verkehrsanbindungen sorgen für eine bequeme Erreichbarkeit der umliegenden Städte und Regionen.
Zusätzlich ist die Lage durch eine gute Anbindung an die Autobahn geprägt, was Pendlern eine schnelle Verbindung zu den umliegenden Wirtschaftsstandorten ermöglicht.
Erleben Sie die Vorzüge des Lebens in Osloß – ein Ort, an dem sich Wohnen und Natur harmonisch verbinden.
Sonstige Angaben
Gerne laden wir Sie zu einer Besichtigung ein, um Ihnen vielleicht Ihr neues Zuhause bekannt zu machen.
Bei Interesse und zur Vereinbarung von Besichtigungsterminen setzen Sie sich bitte mit uns über das Kontaktformular in Verbindung. Bitte geben Sie hierbei Ihre vollständige Kontaktadresse an. Unvollständige Anfragen werden nicht bearbeitet.
Unser Angebot ist nur für den Empfänger bestimmt. Da die in diesem Exposé enthaltenen Angaben auf Informationen des Eigentümers beruhen, können wir für die Richtigkeit trotz aller Sorgfalt keine Gewähr übernehmen. Hierfür bitten wir höflich um Ihr Verständnis.
Die Datenverarbeitung erfolgt auf Grundlage von Art. 6 Abs. 1 lit. b) DSGVO. Sie müssen dabei diejenigen personenbezogenen Daten angeben, die für die Bearbeitung Ihres jeweiligen Anliegens bzw. die Vorbereitung oder Durchführung der Geschäftsbeziehung mit Ihnen erforderlich sind. Ohne diese Daten werden wir nicht in der Lage sein, Ihre Anfrage zu bearbeiten bzw. den Vertrag mit Ihnen zu erfüllen. Ich stimme daher zu, das OM Immobilienmanagement meine personenbezogenen Daten im Einzelfall z.B. bei Kauf- oder Mietvertragsabschlüssen abspeichert und an Dritte (Eigentümer/Notar/Behörden) übermitteln darf.
Grundriss
Grundriss EG
>
>
Grundriss KG
>
>
Adresse
38557 Osloß
Interessante Orte
Preis- und Lageinformationen
Preistrend für Bestandsimmobilien in Osloß