Dieses vielseitige Wohnensemble besteht aus zwei separaten Wohnhäusern auf einem gut nutzbaren, kompakt geschnittenen Grundstück. Für Eigennutzer wie auch für Kapitalanleger, bestehen hier interessante Möglichkeiten! Das Vorderhaus, ein Zweifamilienhaus aus dem Jahr 1943, verfügt über eine Wohnfläche von ca. 140,48 qm, verteilt auf fünf großzügige Zimmer. Die Raumaufteilung ist funktional und familiengerecht. Besonders hervorzuheben ist die großzügige, nicht einsehbare Terrasse, die sich geschützt im hinteren Bereich des Hauses befindet und somit ein hohes Maß an Privatsphäre und Ruhe bietet. Das Vorderhaus ist nicht vermietet. Das Hinterhaus, erbaut im Jahr 1997, umfasst ca. 100 qm Wohnfläche und ist in vier Zimmer unterteilt. Die Einheit ist derzeit vermietet. Nähere Informationen erhalten Sie gerne auf Anfrage. Die Liegenschaft verfügt außerdem über zwei praktische PKW-Außenstellplätze, die sich direkt neben dem Gebäude befinden. Insgesamt bietet dieses Wohnensemble ein interessantes Gesamtpaket für Familien mit Platzbedarf, Generationenwohnen oder als Kombination aus Eigennutzung und Vermietung.
Profi Concept: Zwei Häuser - eine Chance: Zweifamilienhaus mit vermietetem Einfamilienhaus
Friedberger Str. 48,
61191 Rosbach vor der Höhe
Auf Karte anzeigen

Finanzierungszertifikat
In nur zwei Minuten zu Ihrem persönlichen Finanzierungszertifkat.
Infos
Haustyp | Mehrfamilienhaus |
---|---|
Etagenzahl | 2 |
Wohnfläche ca. | 237 m2 |
Nutzfläche | 26,95 m2 |
Grundstücksfläche | 281 m2 |
Bezugsfrei ab | nach Vereinbarung |
Zimmer | 9 |
Schlafzimmer | 7 |
Badezimmer | 3 |
Garage/Stellplatz | Außenstellplatz |
Anzahl Garage/Stellplatz | 2 |
Kosten
Kaufpreis |
498.000 € |
---|---|
Provision |
5,95 % inkl. MwSt. In unserer Courtage ist die gesetzliche MwSt. enthalten. Für die Besichtigung und Beratung entstehen Ihnen keinerlei Kosten und Gebühren. Unsere Courtage ist erst bei Abschluss des Kaufvertrages fällig. |
Finanzierungsrechner:
Kaufpreis:
600.000 €
Eigenkapital:
600.000 €
Monatliche Rate
0 €
Effektiver Jahreszins
0 %
Sollzinsbindung
10 Jahre
Bausubstanz & Energieausweis
Baujahr | 1943 |
---|---|
Bauphase | Haus fertig gestellt |
Objektzustand | Renovierungsbedürftig |
Qualität der Austattung | Normal |
Heizungsart | Zentralheizung |
Wesentliche Energieträger | Gas |
Energieausweis | liegt vor |
Energieausweistyp | Verbrauchsausweis |
Energieverbrauchskennwert | 278,5 kWh/(m²*a) |
Energieeffizienzklasse | H |
278,5
kWh/(m²*a)
Energieeffizienzklasse H
- A+
- A
- B
- C
- D
- E
- F
- G
- H
- 0
- 25
- 50
- 75
- 100
- 125
- 150
- 175
- 200
- 225
- >250
Beschreibung des Objekts
Ausstattung
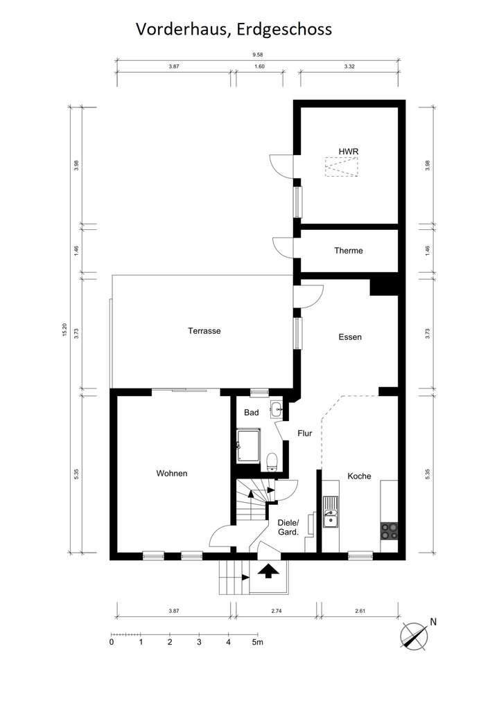
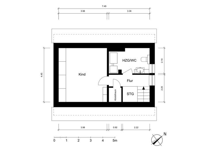
Das Zweifamilienhaus bietet Ihnen mit einer Gesamtwohnfläche von ca. 140,48 qm viel Raum zur Entfaltung. Die Aufteilung der Räume ist wie folgt: EG mit ca. 59,28 qm: - Wohnzimmer mit ca. 20,29 qm - Küche mit ca. 13,70 qm - Esszimmer mit ca. 12,95 qm - Badezimmer mit ca. 3,90 qm - Flur mit ca. 3,16 qm - Diele mit ca. 5,28 qm 1. OG mit ca. 59,73 qm,: - Schlafen 1 mit ca. 14,92 qm + Ankleidezimmer mit ca. 6,50 qm - Schlafen 2 mit ca. 15,66 qm + Ankleidezimmer mit ca. 11,34 qm - Badezimmer mit ca. 6,28 qm - Flur mit ca. 5,03 qm DG mit ca. 21,47 qm: - Schlafzimmer 3 mit ca. 9,90 qm - Schlafzimmer 4 mit ca. 6,99 qm - Flur mit ca. 4,58 qm Zusätzlich gibt es einen Anbau mit einem Hauswirtschaftsraum mit ca. 12,72 qm und eine Hobbywerkstatt mit ca. 12,52 qm, welchen Sie direkt von der Terrasse aus betreten können. Das Einfamilienhaus bietet Ihnen ca. 100 qm Wohnfläche und ist aktuell vermietet. Die Raumaufteilung ist wie folgt: EG mit ca. 38,87 qm: - Wohn- / Essbereich mit ca. 22,76 qm - Küche mit ca. 4,44 qm - Flur mit ca. 11,67 qm 1. OG mit ca. 37,34 qm: - Kinderzimmer 1 mit ca. 13,43 qm - Kinderzimmer 2 mit ca. 8,85 qm - Badezimmer mit ca. 8,97 qm - Gäste - WC mit ca. 2,01 qm - Flur mit ca. 4,08 qm DG mit ca. 19,03 qm: - Kinderzimmer 3 mit ca. 11,38 qm - Badezimmer mit ca. 4,53 qm - Flur mit ca. 3,12 qm Sonstiges Ausstattungsmerkmale: Zweifamilienhaus: - Alle Fenster verfügen über Rollläden - Großer, offener Wohn- / Essbereich - Badezimmer im EG und im 1. OG - Große Terrasse, nicht einsehbar von außen - Hauswirtschaftsraum - Teilunterkellerung - Werkstatt/ Hobbyraum - Gaszentralheizung Bj. 1987 Einfamilienhaus: - geräumiger Freisitz vor dem Haus - 2 PKW-Außenstellplätze - Alle Fenster mit Rollläden - 2014 Gaszentralheizung erneuert
Lage
Verkehrsanbindung: Der Bahnhof Rosbach v. d. Höhe (RB16) ist ca. 1,6 km entfernt und in etwa 4 Fahrminuten mit dem Auto oder in ca. 20 Minuten zu Fuß zu erreichen. Von hier aus besteht die Regionalbahnanbindung nach Friedberg und Friedrichsdorf, mit Anschluss an die S‑Bahn in Friedrichsdorf oder Bad Homburg Richtung Frankfurt am Main. Die nächste Bushaltestelle mit den Linien FB‑33, FB‑36, FB‑73 ist fußläufig in ca. 500 m zu erreichen. Die Autobahn A5 zur Anschlussstelle Friedberg ist ca. 5 km / 7 Fahrminuten entfernt. Hier gibt es eine direkte Anbindung nach Frankfurt am Main und Kassel. Das Zentrum von Frankfurt am Main ist ca. 25 km entfernt und lässt sich in ca. 25-30 Fahrminuten mit dem Auto über die A5 oder mit der Regionalbahn + S‑Bahn gut erreichen. Der Flughafen Frankfurt (FRA) ist ca. 30 km entfernt und in etwa 30 Fahrminuten zu erreichen.
Sonstige Angaben
Alle Informationen beruhen auf den Angaben des Eigentümers. Für die Richtigkeit und Vollständigkeit wird keine Haftung übernommen. Änderungen bleiben vorbehalten. Sollten mehrere Kaufinteressenten vorhanden sein, so behält sich der Eigentümer das Recht vor, die Immobilie im Bieterverfahren zu verkaufen. Internetgeschwindigkeit: Verfügbarkeit laut Telekom.de mit bis zu 250 Mbit/s. Es handelt sich um eine unverbindliche Prüfung des Anschlusses. Hinweis zum Geldwäschegesetz, nach § 2 Abs. 1 Nr. 10 GwG sind wir verpflichtet, Kaufinteressenten zu identifizieren. Hierzu müssen wir von jedem Interessenten die pers. Daten (BPA) aufnehmen. Hinweis zum gesetzlichen Widerrufsrecht bei Fernabsatzverträgen: Nach den EU-Verbraucherschutzrichtlinien sind Makler seit dem 13.06.2014 dazu verpflichtet, den Kunden über sein Widerrufsrecht zu informieren. Ein Fernabsatzvertrag ist schon zustande gekommen, wenn Sie uns telefonisch, per Fax oder per Mail kontaktieren. Wir bitten daher um Ihr Verständnis, wenn wir Ihnen vor Vereinbarung eines Besichtigungstermins oder Überlassung von Unterlagen erst die detaillierten Informationen zu Ihrem Widerrufsrecht zukommen lassen müssen. Erst danach können wir im vollen Umfang für Sie tätig werden. Mit Ihrer Kontaktaufnahme willigen Sie bis auf Widerruf ein, dass wir Ihre Daten speichern dürfen und uns sowohl telefonisch als auch via SSL / TLS verschlüsseltem E-Mailverkehr mit Ihnen in Verbindung setzen dürfen. Unser Service für Sie: - Wir unterstützen Sie bei der Organisation Ihres Umzuges. - Wir übernehmen gerne den Verkauf oder die Vermietung Ihrer Altimmobilie und sorgen so für einen reibungslosen Übergang. - Wertermittlung Ihrer Immobilie über einen Gutachter - Geprüfter Energieausweis - Experte - Finanzierungsservice mit Top- Konditionen - Aktuell ca. 300 Finanzierungspartner. - Weitere Objekte finden Sie unter www.proficoncept-gmbh.de Übrigens: Sie wissen wer eine Immobilie oder ein Grundstück verkaufen oder vermieten möchte? Wir honorieren jede erfolgreiche Vermittlung !!!
Grundriss
Grundriss VH, Keller
>

Grundriss VH, EG
>

Grundriss VH, OG
>

Grundriss VH, DG
>

Grundriss HH, EG
>

Grundriss HH, OG
>

Grundriss HH, DG
>

Adresse
Friedberger Str. 48, 61191 Rosbach vor der Höhe
Interessante Orte
Preis- und Lageinformationen
Preistrend für Bestandsimmobilien in Rosbach vor der Höhe