Stadthaus Magdeburg
Lebensqualität für Jung und Alt
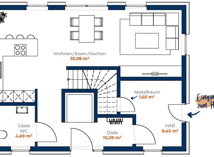
„„ Wohnfläche: 162m²
„„ Klassische Holztreppe vom EG ins DG
„„ 3-fach verglaste Brömse Reference Fenster
„„ Außenmaße: 12,10 m x 8,60 m
„„ Luft-Wasser-Wärme-Pumpe und Fußbodenheizung
„„ 2 Kinderzimmer
„„ Schlafen mit integrierter Ankleide
Der Grundriss ist veränderbar!
Abb. zeigt Variante
Großes Haus auf kleinem Grundstück in Brackstedt!
38448 Wolfsburg
Die vollständige Adresse der Immobilie erhalten Sie vom Anbieter.
Auf Karte anzeigen
Die vollständige Adresse der Immobilie erhalten Sie vom Anbieter.
Finanzierungszertifikat
In nur zwei Minuten zu Ihrem persönlichen Finanzierungszertifkat.
Infos
| Haustyp | Einfamilienhaus |
|---|---|
| Etagenzahl | 1 |
| Wohnfläche ca. | 162 m2 |
| Grundstücksfläche | 456 m2 |
| Zimmer | 5 |
| Schlafzimmer | 3 |
| Badezimmer | 1 |
Kosten
| Kaufpreis |
465.204 € |
|---|---|
| Provision | Nein |
Finanzierungsrechner:
Kaufpreis:
600.000 €
Eigenkapital:
600.000 €
Monatliche Rate
0 €
Effektiver Jahreszins
0 %
Sollzinsbindung
10 Jahre
Bausubstanz & Energieausweis
| Baujahr | 2025 |
|---|---|
| Bauphase | Haus in Planung (projektiert) |
| Objektzustand | Erstbezug |
| Qualität der Austattung | Gehoben |
| Heizungsart | Wärmepumpe |
| Wesentliche Energieträger | Strom |
| Energieausweis | liegt zur Besichtigung vor |
Beschreibung des Objekts
Ausstattung
Auszug aus unserer Bau und Leistungsbeschreibung:
- Massives Haus auf Bodenplatte, schlüsselfertig!
- 3 Fach verglaste Fenster BRÖMSE Reference Pro
- 2 farbiger Außenputz
- Vorbereitung Photovoltaikanlage
- Vorbereitung E-Mobilität:
- moderne Schaltserie der Firma ELSO
- Haussteuerung Premium Somfy
- Fußbodenheizung
- LWWP
- Wangentreppe aus Massivholz
- Innentüren
-. Sanitärobjekte
- Elektrik
- Rolläden
Das kleine Baugrundstück ist in der Kalkulation enthalten!
Lage
Das schöne kleine Eckgrundstück befindet sich idyllisch im neuen Baugebiet in Brackstedt "Bäckerring"
Außenmaße Haus: 12,10 m x 8,60 m
Maße Grundstück: 22,45 x 22,66m
Die erschlossenen Baugrundstücke sind nach B-Plan Bebaubar und Maklerfrei!.
Nähere Informationen zu den Baugrundstücken erhalten Sie in einem Planungstermin.
Sonstige Angaben
Termine für eine Haus und Grundstücksberatung jederzeit nach Absprache möglich.
Freie Vertriebspartnerin FIBAV GmbH
Kathrin Kass
Handy: 0152 52 58 69 48
Immobilien.Kass@web.de
Büro Königslutter
Rottorfer Str 1
38154 Königslutter
Büro Magdeburg
Bettina von Arnim Str. 7
39114 Magdeburg
Weitere baureife Baugrundstücke in Königslutter, Oslos, Brackstedt, Bardorf, Vorsfelde, Wolfsburg!
Zum aktuellen Stand der noch verfügbaren Grundstücke rufen Sie mich gern an!
Gern stellen wir Ihnen auf Wunsch einen unserer Finanzierer zur Verfügung. Dieser kann Ihnen schnell und kostenfrei nicht nur eine Beratung für Ihr Gesamtbudget anbieten, sondern auch aktuelle Produkte zur KFW.
Weitere Dokumente
FIBAV Katalog-2023Adresse
38448 Wolfsburg
Interessante Orte
Preis- und Lageinformationen
Preistrend für Bestandsimmobilien in Brackstedt