Dieses massiv gebaute Einfamilienhaus aus dem Jahr 1999 überzeugt durch seine großzügige Wohnfläche von ca. 178,43 m², ein 615 m² großes Grundstück sowie ein flexibles Raumkonzept, das vielfältige Wohnideen ermöglicht. Ob als Zuhause für eine große Familie, als Mehrgenerationenhaus oder mit der Option zur Aufteilung in zwei Wohneinheiten – hier eröffnen sich Ihnen zahlreiche Möglichkeiten.
Das Haus liegt in einer ruhigen Anwohnerstraße ohne Durchgangsverkehr. Gegenüber befindet sich der Öjendorfer Friedhof, wodurch keine direkte Bebauung auf der gegenüberliegenden Straßenseite gegeben ist.
Das Anwesen verfügt über eine großzügige Doppelgarage mit ca. 45 m², die nicht nur Platz für zwei Fahrzeuge bietet, sondern sich auch ideal als Hobby- oder Werkstattbereich eignet. Zusätzlich befindet sich vor der Garage weitere Stellfläche für zusätzliche Fahrzeuge. Der gepflegte Vorgarten und der weitläufige Hintergarten schaffen eine angenehme Wohnatmosphäre.
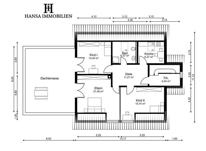
Ein ca. 6,5 m² großer Eingangsbereich verbindet Erd- und Obergeschoss und erlaubt bei Bedarf eine klare Trennung beider Ebenen.
Im Erdgeschoss erwarten Sie ein großzügiges Wohnzimmer mit Zugang zur Außenterrasse, mehrere Schlafzimmer, eine Küche sowie Sanitärräume. Für Wärme sorgt hier eine Fußbodenheizung, unterstützt durch einen Kamin. Das Erdgeschoss ist renovierungsbedürftig und bietet Ihnen die Möglichkeit, Ihre individuellen Wohnwünsche umzusetzen.
Das Dachgeschoss befindet sich in einem besseren Erhaltungszustand und ist mit weiteren Zimmern, einer Küche und einem Badezimmer ausgestattet. Hier erfolgt die Beheizung über Heizkörper. Ein Spitzboden schafft zusätzlichen Stauraum.
Beheizt wird das gesamte Haus über eine Gaszentralheizung. Dank seiner soliden Bauweise, der ruhigen Lage und der flexiblen Grundrissgestaltung ist diese Immobilie eine attraktive Gelegenheit für Käufer, die Platz, Gestaltungsspielraum und eine vielseitige Nutzung zu schätzen wissen.
*Reserviert* Großzügiges Einfamilienhaus | Garten & Doppelgarage | Zwei Einheiten möglich
22119 Hamburg
Die vollständige Adresse der Immobilie erhalten Sie vom Anbieter.
Auf Karte anzeigen
Die vollständige Adresse der Immobilie erhalten Sie vom Anbieter.
Finanzierungszertifikat
In nur zwei Minuten zu Ihrem persönlichen Finanzierungszertifkat.
Infos
| Haustyp | Einfamilienhaus |
|---|---|
| Wohnfläche ca. | 178 m2 |
| Nutzfläche | 45 m2 |
| Grundstücksfläche | 615 m2 |
| Bezugsfrei ab | ab Sofort |
| Zimmer | 6 |
| Schlafzimmer | 5 |
| Badezimmer | 2 |
| Garage/Stellplatz | Garage |
| Anzahl Garage/Stellplatz | 1 |
Kosten
| Kaufpreis |
614.000 € |
|---|---|
| Provision |
3,57 % inkl. MwSt. |
Finanzierungsrechner:
Kaufpreis:
600.000 €
Eigenkapital:
600.000 €
Monatliche Rate
0 €
Effektiver Jahreszins
0 %
Sollzinsbindung
10 Jahre
Bausubstanz & Energieausweis
| Baujahr | 1999 |
|---|---|
| Qualität der Austattung | Einfach |
| Heizungsart | Fußbodenheizung |
| Wesentliche Energieträger | Gas |
| Energieausweis | liegt vor |
| Energieausweistyp | Bedarfsausweis |
| Energieverbrauchskennwert | 138,5 kWh/(m²*a) |
| Energieeffizienzklasse | E |
138,5
kWh/(m²*a)
Energieeffizienzklasse E
- A+
- A
- B
- C
- D
- E
- F
- G
- H
- 0
- 25
- 50
- 75
- 100
- 125
- 150
- 175
- 200
- 225
- >250
Beschreibung des Objekts
Ausstattung
- Baujahr: 1999
- Wohnfläche ca. 178,43 m²
- Grundstücksgröße: ca. 615 m²
- Doppelgarage mit direktem Zugang zum Haus (ca. 45 m²)
- Vorgarten und großzügiger Hintergarten
- Erdgeschoss mit Fußbodenheizung und Kamin
- Obergeschoss mit klassischer Heizkörperbeheizung
- Gaszentralheizung
- Insgesamt 5 Schlafzimmer
- Großzügiges Wohnzimmer mit Zugang zur Außenterrasse
- Zwei mögliche Wohneinheiten durch separate Erschließung
- Küche und Sanitärräume auf beiden Ebenen
- Spitzboden als zusätzlicher Stauraum
- Ruhige Anwohnerstraße ohne Durchgangsverkehr
- Gegenüberliegend: Öjendorfer Friedhof
Lage
Die Immobilie befindet sich in einer ruhigen Anwohnerstraße im Hamburger Ortsteil Öjendorf, der zum Stadtteil Billstedt gehört. Die Wohngegend ist geprägt von Einfamilien- und Doppelhäusern mit gepflegten Gärten und bietet eine angenehme, familienfreundliche Atmosphäre ohne Durchgangsverkehr.
Direkt gegenüber liegt der Öjendorfer Friedhof, wodurch auf der gegenüberliegenden Straßenseite keine Bebauung vorhanden ist. Einkaufsmöglichkeiten für den täglichen Bedarf, Supermärkte, Bäckereien und weitere Dienstleister befinden sich in unmittelbarer Nähe. Schulen, Kindergärten und medizinische Versorgungseinrichtungen sind ebenfalls gut erreichbar.
Die Anbindung an den öffentlichen Nahverkehr ist sehr gut. Bushaltestellen befinden sich in fußläufiger Entfernung und verbinden Sie schnell mit den U-Bahn-Stationen der Linie U2 oder U4. Über die nahegelegene A1 und A24 erreichen Sie sowohl die Hamburger Innenstadt als auch das Umland in kurzer Zeit.
Für Erholung und Freizeitgestaltung bietet der nur wenige Minuten entfernte Öjendorfer Park mit seinen weitläufigen Grünflächen, Spazier- und Radwegen sowie dem Öjendorfer See ideale Bedingungen.
Sonstige Angaben
Alle Angaben sind ohne Gewähr und basieren ausschließlich auf Informationen, die uns von unserem Auftraggeber übermittelt wurden. Wir übernehmen keine Gewähr für die Vollständigkeit, Richtigkeit und Aktualität dieser Angaben. Zwischenverkauf vorbehalten.
Die Käuferprovision in Höhe von 3,57 % inkl. MwSt. auf den Kaufpreis ist mit dem Zustandekommen des notarieller Kaufvertrages verdient und fällig und an die Hansa Immobilien GmbH zu zahlen. Der Verkäufer schuldet die Courtage in gleicher Höhe.
Weitere Informationen erhalten Sie gerne auf Anfrage.
Grundriss
Erdgeschoss
>
>
Dachgeschoss
>
>
Adresse
22119 Hamburg
Interessante Orte
Preis- und Lageinformationen
Preistrend für Bestandsimmobilien in Billstedt