Lassen Sie sich von diesem Wohntraum überzeugen. Diese Neubau Bungalow wird Ende 2024/25 von einem renommierten Bauunternehmen aus der Region auf einem zentral gelegenen Grundstück in Conrebbersweg schlüsselfertig errichtet. Die äußerst ansprechende Raumaufteilung sowie die bodentiefen Fenster, lassen die ca. 87qm große Wohnfläche lichtdurchflutet und weitläufig erscheinen. Das pflegeleicht angelegte Grundstück bemisst ca. 300qm. Jede Bungalowhaushälfte verfügt über einen eigenen Carport und eine nach Westen ausgerichtete Terrasse. Die Küche ist als offene Wohnküche geplant und lädt zum gemeinschaftlichen Kochen und Verweilen ein. Der über die Bodentreppe erreichbare Dachboden ist ebenfalls sehr großflächig und bietet Ihnen ausreichend Abstellmöglichkeiten. Die Immobilie wird nach den aktuellen, energetischen Richtlinien erstellt. Standardmäßig verfügt der Bungalow über folgende Ausstattung: Elektrische Jalousien, Dreifachverglaste Fenster, Fußbodenheizung, Raufaser tapeziert, hochwertige Fliesen etc. Eine ausführliche Baubeschreibung erhalten Sie gerne auf Nachfrage. Sonderwünsche können gern gegen Aufpreis und sofern dies aufgrund des Baufortschrittes noch möglich ist, umgesetzt werden. Aufgrund der barrierefreien Anordnung der Räumlichkeiten eignet sich dieser Bungalow ideal als Altersruhesitz. Beheizt wird das Objekt durch eine Luft-Wärme-Pumpe. Die installierte PV-Anlage wird mit 8.500,00€ zusätzlich berechnet. Ein Objekt für Menschen die das "ebenerdige Wohnen" bevorzugen. Zögern Sie nicht uns zu kontaktieren und vereinbaren Sie gerne einen Besichtigungstermin für das baugleiche Musterhaus.
Conrebbersweg-Idealer Altersruhesitz! Schlüsselfertiger Neubau-Bungalow mit Garten!
26721 Emden
Die vollständige Adresse der Immobilie erhalten Sie vom Anbieter.
Auf Karte anzeigen
Die vollständige Adresse der Immobilie erhalten Sie vom Anbieter.
Finanzierungszertifikat
In nur zwei Minuten zu Ihrem persönlichen Finanzierungszertifkat.
Infos
| Haustyp | Einfamilienhaus |
|---|---|
| Wohnfläche ca. | 90 m2 |
| Grundstücksfläche | 300 m2 |
| Bezugsfrei ab | Nach Absprache |
| Zimmer | 3 |
| Schlafzimmer | 2 |
| Badezimmer | 1 |
Kosten
| Kaufpreis |
320.000 € |
|---|---|
| Provision |
Die Maklerprovision beträgt für den Käufer 3,57% vom Kaufpreis inkl. ges. MwSt.. |
Finanzierungsrechner:
Kaufpreis:
600.000 €
Eigenkapital:
600.000 €
Monatliche Rate
0 €
Effektiver Jahreszins
0 %
Sollzinsbindung
10 Jahre
Bausubstanz & Energieausweis
| Baujahr | 2024 |
|---|---|
| Objektzustand | Erstbezug |
| Heizungsart | Fußbodenheizung |
| Energieausweis | liegt vor |
| Energieausweistyp | Bedarfsausweis |
| Energieverbrauchskennwert | 36,4 kWh/(m²*a) |
| Energieeffizienzklasse | A |
36,4
kWh/(m²*a)
Energieeffizienzklasse A
- A+
- A
- B
- C
- D
- E
- F
- G
- H
- 0
- 25
- 50
- 75
- 100
- 125
- 150
- 175
- 200
- 225
- >250
Beschreibung des Objekts
Ausstattung
Aufstellung der Besonderheiten:
-Schlüsselfertige Herstellung 2024/25
-Dreifachverglaste Fenster mit elektrischen Jalousien
-Fußbodenheizung komplett
-Hochwertige Fliesen
-Malerarbeiten (Raufaser)
-Terrasse und Einfahrt gepflastert
-Luft/ Wasser Wärmepumpe - keine Gaskosten
-Carport-Einstellplatz
- PV-Anlage, Aufpreis ca. 8.500,00€
Lage
26721 Emden OT. Conrebbersweg (Ruhige, zentrale Wohnlage, gute Verkehrsanbindung zur A-31, zahlreiche Einkaufsmöglichkeiten, Edeka, Aldi, Bäcker, Banken, Apotheken etc. in der Nähe, DOC-Einkaufscenter nur wenige PKW-Min. entfernt)
Sonstige Angaben
Grundstück: ca. 300qm (Gepflasterte Auffahrt und Terrasse, PKW-Einstellplatz)
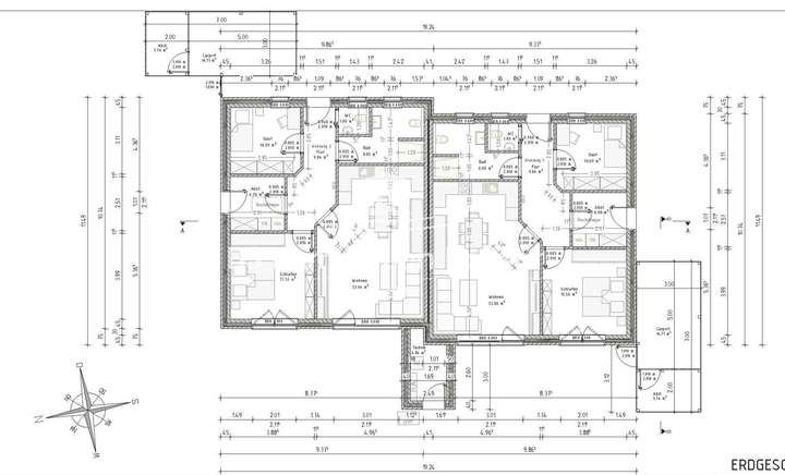
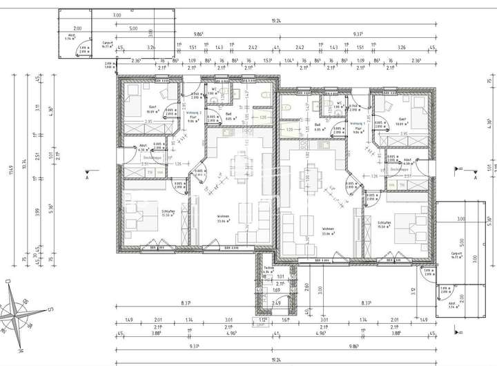
EG: Flur/Diele, Gäste WC, Duschbad mit WC, Gästezimmer, HWR, offener Wohn-/Essbereich mit Küchenanschlüssen und Zugang zur Terrasse, Abstellraum, Schlafzimmer
DG: Stauraum
Gesamt: Wohnfläche ca. 87qm
Grundriss
EG
>
>
OG
>
>
Adresse
26721 Emden
Interessante Orte
Preis- und Lageinformationen
Preistrend für Bestandsimmobilien in Conrebbersweg