Dieses einzigartige Stadthaus WE02 befindet sich im Herzen der malerischen Altstadt von Trebur, in einer ruhig gelegenen Seitenstraße am Naturschutzgebiet. Das Gebäude, eine ehemalige Werkstatt, wird komplett umgebaut und nach modernen Standards in ein stilvolles Stadthaus umgewandelt. Hier vereinen sich historische Architektur und modernes Design zu einer außergewöhnlichen Wohnatmosphäre.
Die moderne Gestaltung lassen die 84,66 m² Wohnfläche beeindruckender wirken. Die großen Fenster sorgen für eine helle und freundliche Wohnatmosphäre, während die hochwertige Ausstattung ein gehobenes Wohngefühl vermittelt.
Der Baubeginn ist erfolgt.
Nutzen Sie niedrige Zinsen durch Förderungen!!!
KfW-Förderung ist möglich (KfW 70ee).
Lassen Sie sich über die Möglichkeiten beraten. Herr May von der Firma Haus und Wohnen steht Ihnen unter 0611-8909030 oder alexander.may@haus-wohnen.de zur Verfügung.
Das Projekt besteht aus vier Loftwohnungen und vier Stadthäusern und wird in Kürze begonnen.
Sprechen Sie uns an.
Stadthaus am Naturschutzgebiet: Neugestaltung im Industriegebäude
65468 Trebur
Die vollständige Adresse der Immobilie erhalten Sie vom Anbieter.
Auf Karte anzeigen
Die vollständige Adresse der Immobilie erhalten Sie vom Anbieter.
Finanzierungszertifikat
In nur zwei Minuten zu Ihrem persönlichen Finanzierungszertifkat.
Infos
| Wohnfläche ca. | 84 m2 |
|---|---|
| Nutzfläche | 3 m2 |
| Grundstücksfläche | 40 m2 |
| Zimmer | 4 |
| Schlafzimmer | 2 |
| Badezimmer | 2 |
| Garage/Stellplatz | Außenstellplatz |
| Anzahl Garage/Stellplatz | 1 |
Kosten
| Kaufpreis |
366.450 € |
|---|---|
| Provision |
2,38 % vom Kaufpreis inkl. 19% MwSt 2,38 % Käuferprovision inkl. MwSt., verdient und fällig mit Beurkundung des notariellen Kaufvertrages. Wir haben einen provisionspflichtigen Maklervertrag mit dem Verkäufer in gleicher Höhe abgeschlossen. |
Finanzierungsrechner:
Kaufpreis:
600.000 €
Eigenkapital:
600.000 €
Monatliche Rate
0 €
Effektiver Jahreszins
0 %
Sollzinsbindung
10 Jahre
Bausubstanz & Energieausweis
| Baujahr | 2025 |
|---|---|
| Objektzustand | Erstbezug |
| Qualität der Austattung | Gehoben |
| Heizungsart | Wärmepumpe |
| Wesentliche Energieträger | Strom |
| Energieausweis | liegt vor |
| Energieausweistyp | Bedarfsausweis |
| Energieverbrauchskennwert | 20,2 kWh/(m²*a) |
| Energieeffizienzklasse | A+ |
20,2
kWh/(m²*a)
Energieeffizienzklasse A+
- A+
- A
- B
- C
- D
- E
- F
- G
- H
- 0
- 25
- 50
- 75
- 100
- 125
- 150
- 175
- 200
- 225
- >250
Beschreibung des Objekts
Ausstattung
Das Wichtigste in Kürze:
- Neubaustandard
- Schlüsselfertig
- Balkon
- Fertigstellung April 2026
- Innenwände werden mit tapezierfähigen Gipsglattputz und Malervlies versehen.
- Fußbodenheizung.
- Bad mit Wanne
- Gäste-WC mit Dusche
- Armaturen und Badaccessoires (nach Kundenwunsch).
- Dreischeiben-Wärmeschutz-Fenster
- Zimmertüren in Weißlack.
- Außenklingelstation mit Kamera.
- Wohn/Essen, Schlafen und Kinderzimmer mit Parkettböden.
- Bad und WC mit Fliesen nach Kundenwunsch.
- Elektische Rollläden in Aluminium
- Komfortables Smart Home Basic Paket zur Elektro-Haussteuerungs-System für Rollläden und Licht.
- Wämepumpe
- KFW-Förderung 261 möglich
Lage
Das Objekt liegt in der Altstadt von Trebur im Rhein-Main-Gebiet, verbindet ländliche Ruhe und zentrale Lage im Zentrum des Städte-Dreiecks Frankfurt/M. (ca. 30 km entfernt), Mainz/Wiesbaden (ca. 20 km) und Darmstadt (ca. 25 km) auf ideale Weise.
Trebur gehört zum Kreis Groß-Gerau und liegt südlich von Rüsselsheim.
Alle Einkaufsmöglichkeiten finden sie in unmittelbarer nähe.
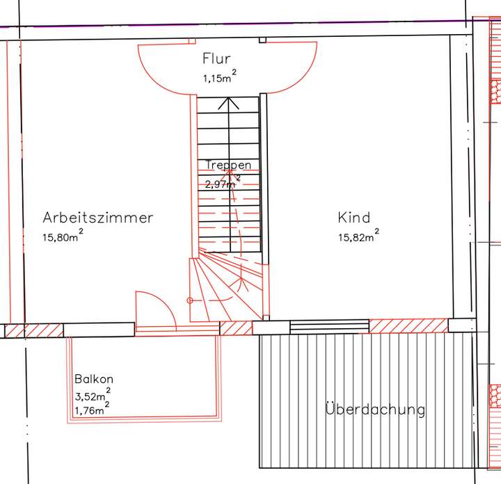
Grundriss
WE 2 EG
>
>
WE 2 OG
>
>
WE 2 DG
>
>
Adresse
65468 Trebur
Interessante Orte
Preis- und Lageinformationen
Preistrend für Bestandsimmobilien in Trebur