Willkommen in Eppenhain – dort, wo Ruhe, Natur und Lebensqualität aufeinandertreffen. Diese seltene Gelegenheit vereint ein großzügiges Traumgrundstück von ca. 3.369 m² mit einer freistehenden Villa samt Pool und separatem Anbau. Eingebettet in eine der schönsten und ruhigsten Lagen des Ortes, direkt angrenzend an den Wald, bietet dieses naturnahe Anwesen ein Höchstmaß an Privatsphäre und Wohnkomfort mit vielfältigen Gestaltungsmöglichkeiten.
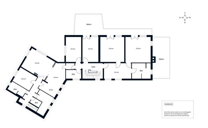
Die Villa aus dem Baujahr 1957 verfügt über ca. 415 m² Wohnfläche inklusive Einliegerwohnung - der eingeständige Anbau aus dem Jahr 1982 könnte als separate Wohneinheit genutzt werden.
Die bestehende Villa ist sanierungsbedürftig, bietet aber bereits im aktuellen Zustand ein beeindruckendes Raumangebot für eine große Familie. Neben dem Hauptgebäude mit mehreren großzügigen Wohn- und Schlafzimmern, Küche und Bädern, gibt es einen separaten Anbau mit eigenem Eingang – ideal für Gäste, erwachsene Kinder, Büro oder auch zur Vermietung.
Der vorhandene Pool ergänzt das Ensemble und bietet im Sommer entspannte Momente inmitten der Natur.
Sanierungsbedürftige Villa auf parkähnlichem Sonnengrundstück mit traumhaftem Weitblick
65779 Kelkheim (Taunus)
Die vollständige Adresse der Immobilie erhalten Sie vom Anbieter.
Auf Karte anzeigen
Die vollständige Adresse der Immobilie erhalten Sie vom Anbieter.
Finanzierungszertifikat
In nur zwei Minuten zu Ihrem persönlichen Finanzierungszertifkat.
Infos
| Haustyp | Einfamilienhaus |
|---|---|
| Etagenzahl | 2 |
| Wohnfläche ca. | 415 m2 |
| Nutzfläche | 230 m2 |
| Grundstücksfläche | 3.369 m2 |
| Bezugsfrei ab | nach Vereinbarung |
| Zimmer | 12 |
| Garage/Stellplatz | Außenstellplatz |
| Anzahl Garage/Stellplatz | 4 |
Kosten
| Kaufpreis |
0 € |
|---|---|
| Provision |
3,57 % inkl. gesetzlicher MwSt. von aktuell 19 % bezogen auf den Kaufpreis |
Finanzierungsrechner:
Kaufpreis:
600.000 €
Eigenkapital:
600.000 €
Monatliche Rate
0 €
Effektiver Jahreszins
0 %
Sollzinsbindung
10 Jahre
Bausubstanz & Energieausweis
| Baujahr | 1957 |
|---|---|
| Heizungsart | Öl-Heizung |
| Wesentliche Energieträger | Öl |
| Energieausweis | liegt vor |
| Energieausweistyp | Bedarfsausweis |
| Energieverbrauchskennwert | 269,4 kWh/(m²*a) |
| Energieeffizienzklasse | H |
269,4
kWh/(m²*a)
Energieeffizienzklasse H
- A+
- A
- B
- C
- D
- E
- F
- G
- H
- 0
- 25
- 50
- 75
- 100
- 125
- 150
- 175
- 200
- 225
- >250
Beschreibung des Objekts
Ausstattung
Bestandsvilla mit separatem Anbau:
_ 12 Zimmer
_ drei Bäder
_ sechs Schlafzimmer
_ Kernsanierung
_Pool
_vier Garagenstellplätze
Bebauungsplan (auszugsweise):
_ eine mögliche Sanierung/Erweiterung/Neubau richtet sich nach B-Plan Nr. 13/15 "Südöstl. der Rossertstraße/Im Birkenfeld (1. Änd.)" - allgemeines Wohngebiet mit GRZ: 0,2, zwei Vollgeschossen, offene Bauweise, etc.
Lage
_Kelkheim-Eppenhain liegt im Vordertaunus und bietet hohen Freizeit- und Erholungswert
_Attraktive und bevorzugte Wohnlage in der Rhein-Main-Region
_Eppenhain ist der nach Einwohnerzahl kleinste Stadtteil der Stadt Kelkheim (Taunus) und mit 423 Meter der höchstgelegene Ort des südhessischen Main-Taunus-Kreises.
_Ausgezeichnete Infrastruktur
_Frankfurt, Flughafen, Wiesbaden, Mainz und Bad Homburg in ca. 30 Minuten erreichbar
_Landschaftlich reizvolle Umgebung mit vielen Ausflugszielen
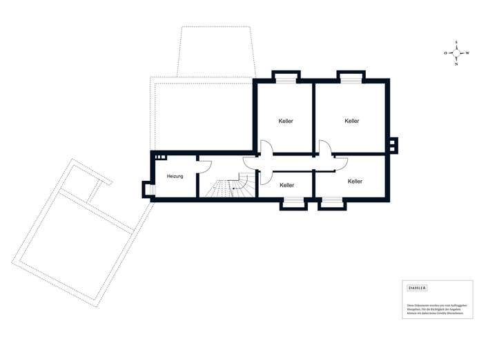
Grundriss
Erdgeschoss
>
>
1.Obergeschoss
>
>
Kellergeschoss
>
>
Adresse
65779 Kelkheim (Taunus)
Interessante Orte
Preis- und Lageinformationen
Preistrend für Bestandsimmobilien in Kelkheim (Taunus)