Das um ca. 1907 errichtete Zweifamilienhaus befindet sich auf einem ca. 564 m² großen Grundstück in ruhiger Lage und bietet eine Wohnfläche von rund 149 m², verteilt auf zwei separate Wohneinheiten. Das unterkellerte Gebäude verfügt über eine Garage sowie einen großzügigen Garten mit viel Gestaltungspotenzial. Die Ausstattung entspricht überwiegend dem Stand der 1980er Jahre – so stammen die Fenster aus dieser Zeit, und die Beheizung erfolgt über ältere Nachtspeicheröfen. Das Objekt ist insgesamt sanierungsbedürftig und bietet engagierten Käufern die Möglichkeit, durch eine umfassende Modernisierung ein individuelles Wohnkonzept zu realisieren. Ideal geeignet für Handwerker, Projektentwickler oder alle, die das Potenzial einer klassischen Immobilie erkennen und ausschöpfen möchten. Vereinbaren Sie noch heute einen Besichtigungstermin. Wir freuen uns, Ihnen dieses vielseitige Objekt präsentieren zur dürfen.
Reserviert: Algermissen: Zweifamilienhaus als Projektchance – attraktive Lage, großes Grundstück
31191 Algermissen
Die vollständige Adresse der Immobilie erhalten Sie vom Anbieter.
Auf Karte anzeigen
Die vollständige Adresse der Immobilie erhalten Sie vom Anbieter.

Finanzierungszertifikat
In nur zwei Minuten zu Ihrem persönlichen Finanzierungszertifkat.
Infos
Haustyp | Mehrfamilienhaus |
---|---|
Wohnfläche ca. | 149 m2 |
Grundstücksfläche | 564 m2 |
Bezugsfrei ab | 01.09.2025 |
Zimmer | 7 |
Garage/Stellplatz | Garage |
Anzahl Garage/Stellplatz | 1 |
Kosten
Kaufpreis |
177.000 € |
---|---|
Provision |
3,57 % inkl. ges. MwSt. Die Provision ist verdient und fällig mit notarieller Beurkundung. Der Immobilienmakler hat einen provisionspflichtigen Maklervertrag in gleicher Höhe mit dem Verkäufer abgeschlossen. |
Finanzierungsrechner:
Kaufpreis:
600.000 €
Eigenkapital:
600.000 €
Monatliche Rate
0 €
Effektiver Jahreszins
0 %
Sollzinsbindung
10 Jahre
Bausubstanz & Energieausweis
Baujahr | 1907 |
---|---|
Wesentliche Energieträger | Strom |
Energieausweis | liegt vor |
Energieausweistyp | Bedarfsausweis |
Energieverbrauchskennwert | 242,8 kWh/(m²*a) |
Energieeffizienzklasse | G |
242,8
kWh/(m²*a)
Energieeffizienzklasse G
- A+
- A
- B
- C
- D
- E
- F
- G
- H
- 0
- 25
- 50
- 75
- 100
- 125
- 150
- 175
- 200
- 225
- >250
Beschreibung des Objekts
Ausstattung
- Baujahr ca. 1907 - Grundstück ca. 564 m² - Wohnfläche ca. 149 m² - Zwei Wohneinheiten - Fenster 80er Jahre - Nachtspeicheröfen - großzügiger Garten - Garage vorhanden - Objekt unterkellert
Lage
Die Immobilie befindet sich in der Gemeinde Algermissen, einer beliebten Wohnlage im Landkreis Hildesheim. Algermissen zeichnet sich durch eine gute Infrastruktur, ein ruhiges Wohnumfeld und die Nähe zu den Städten Hildesheim und Hannover aus. Einkaufsmöglichkeiten des täglichen Bedarfs, Schulen, Kindergärten sowie Ärzte und Apotheken sind im Ort vorhanden. Der Bahnhof Algermissen bietet eine direkte Zugverbindung nach Hannover und Hildesheim – ideal für Berufspendler. Auch die Anbindung an das regionale Straßennetz ist sehr gut: Über die B494 und die nahegelegene A7 erreicht man die umliegenden Städte zügig. Die ländliche Umgebung mit Feldern und Naherholungsgebieten lädt zu Spaziergängen und Freizeitaktivitäten im Grünen ein und macht Algermissen besonders attraktiv für Familien und Ruhesuchende.
Sonstige Angaben
Detailliertere Informationen finden Sie in unserem Exposé. Bitte fordern Sie dieses bei uns an. Weitere Angebote finden Sie auf unserer Website: https://www.vb-eg.de/immobilien/immobiliensuche Allgemeine Geschäftsbedingungen für das Immobiliengeschäft der Volksbank eG 1. Sämtliche Angebote sind freibleibend und basieren auf Informationen, die der Eigentümer erteilt hat; eine Haftung für deren Richtigkeit und Vollständigkeit kann deshalb nicht übernommen werden. Zwischenverkauf bzw. –vermietung bleibt dem Eigentümer vorbehalten. 2. Alle Angebote und sonstigen Mitteilungen sind nur für den Adressaten bestimmt und müssen vertraulich behandelt werden. Erfolgt gleichwohl eine Weitergabe an Dritte und kommt dadurch ein Vertrag zustande, so kann der Adressat - unbeschadet weiterer Schadensersatzansprüche - Schadensersatz in Höhe der vereinbarten Provision schulden. 3. Ist dem Adressaten eine nachgewiesene Vertragsabschlussgelegenheit bekannt, hat er dies unter Offenlegung der Informationsquelle unverzüglich mitzuteilen. 4. Wird ein angebotenes Objekt später durch Dritte erneut angeboten, erlischt dadurch der Provisionsanspruch des Erstanbieters nicht. Um eine doppelte Provisionszahlung zu vermeiden, wird empfohlen, den nachfolgenden Anbietern die Vorkenntnis in Textform mitzuteilen und auf deren Maklerdienste zu verzichten. 5. Der Auftraggeber wird den Makler unverzüglich von einem Vertragsabschluss unterrichten; er ist verpflichtet, ihm eine Vertragsabschrift zu übersenden. 6. Der Makler kann sowohl für den Käufer als auch für den Verkäufer tätig werden und von beiden eine Provision verlangen. 7. Kommt es aufgrund der Tätigkeit des Maklers zum Abschluss eines Vertrags (z.B. Kauf, Miete, Pacht), wird die ortsübliche Provision geschuldet, sofern keine abweichende Vereinbarung getroffen wird. Dies gilt auch dann, wenn die Bedingungen des Vertrags von den in dem überlassenen Angebot genannten Konditionen abweichen. Ein Provisionsanspruch entsteht auch, wenn der Vertrag erst nach Vertragsbeendigung abgeschlossen wird. Der Provisionsanspruch ist mit dem Vertragsabschluss über das nachgewiesene bzw. vermittelte Objekt fällig. Gebäudeenergiegesetz (GEG) Hiermit weisen wir darauf hin, dass abhängig vom Alter der Immobilie, Art des Gebäudes, der Nutzungsart und den bisherigen Instandhaltungs- und/oder Instandsetzungsmaßnahmen des bisherigen Eigentümers Pflichten zur Sanierung nach dem Gebäudeenergiegesetz (GEG) binnen zwei Jahren ab Eigentumswechsel bestehen können, um die energetischen Voraussetzungen des GEG zu erfüllen. Dazu gehören u.a. die Dämmung der Geschoßdecken, § 47 GEG, die Dämmung von Rohren, § 69 GEG, sowie die Modernisierung der Heizungsanlage, §§ 71, 72 GEG. Die Hinzuziehung eines Energieberaters zwecks Prüfung von Sanierungspflichten nach dem GEG sowie deren Kostenumfang wird empfohlen.
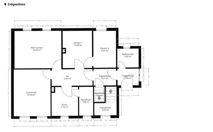
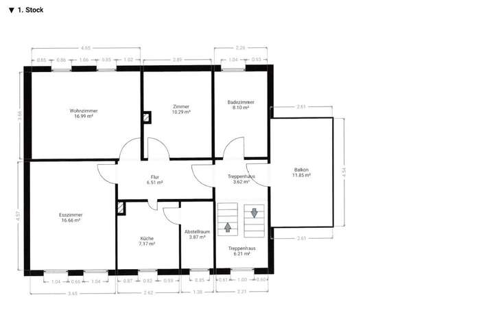
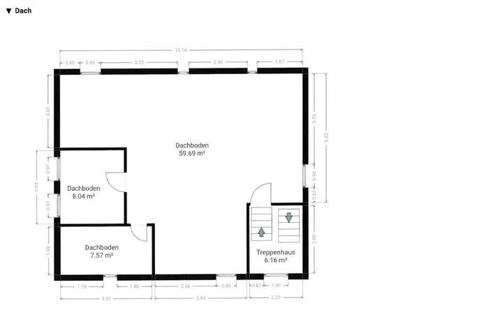
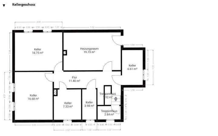
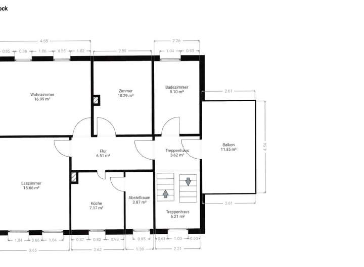
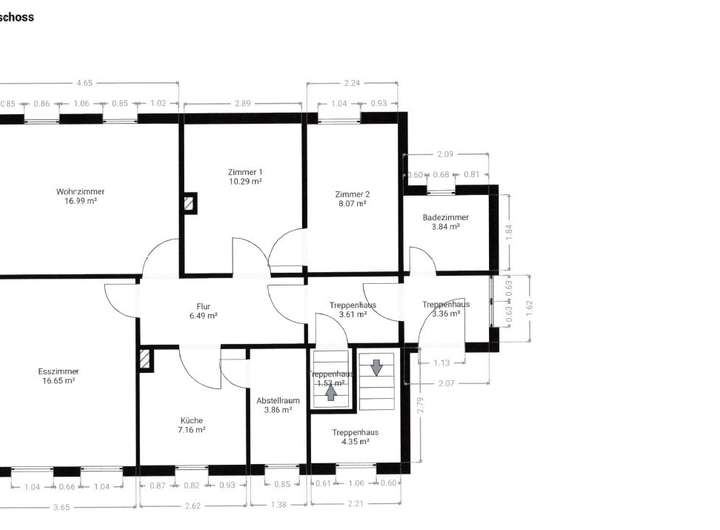
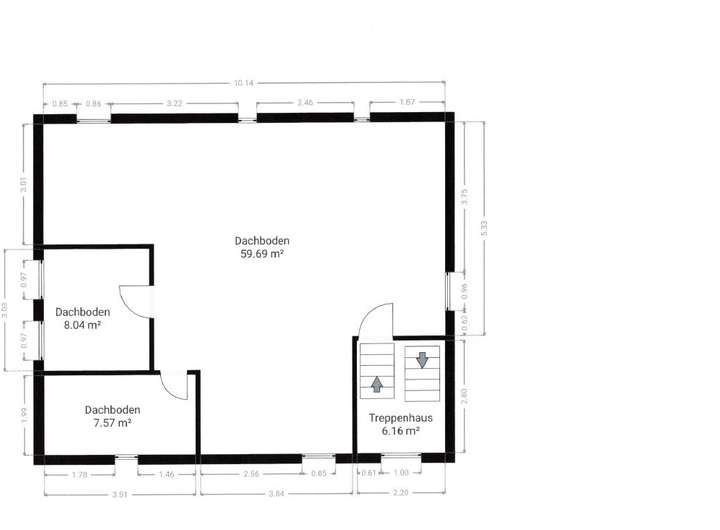
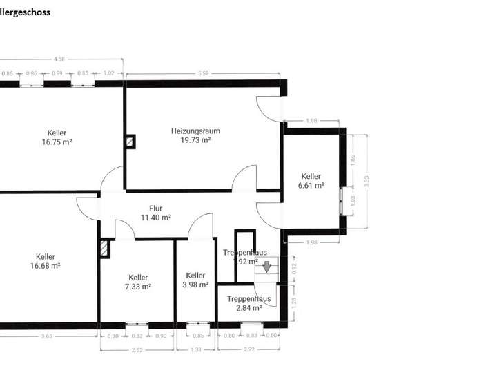
Grundriss
Grundriss EG
>

Grundriss OG
>

Grundriss DG
>

Grundriss KG
>

Adresse
31191 Algermissen
Interessante Orte
Preis- und Lageinformationen
Preistrend für Bestandsimmobilien in Algermissen