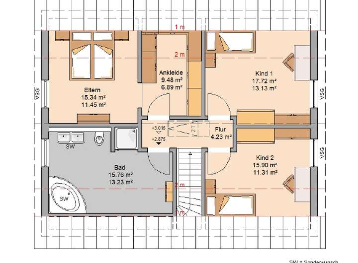
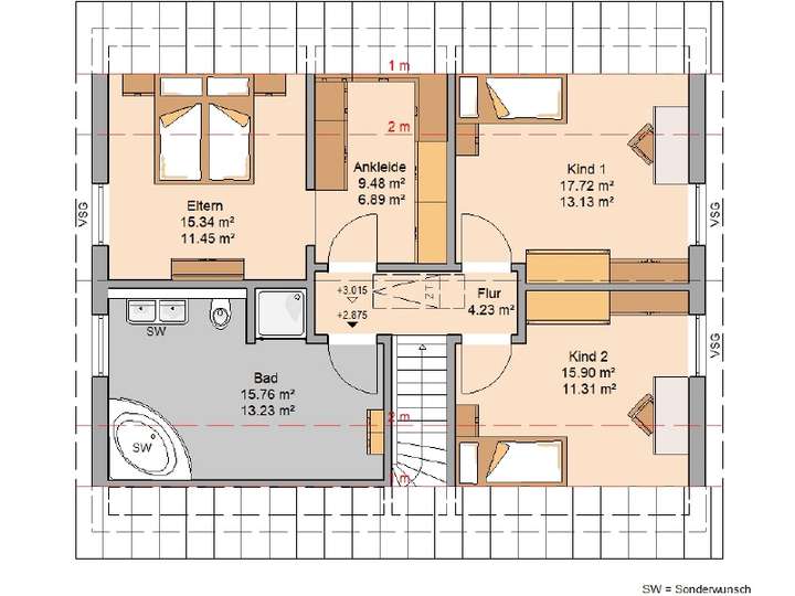
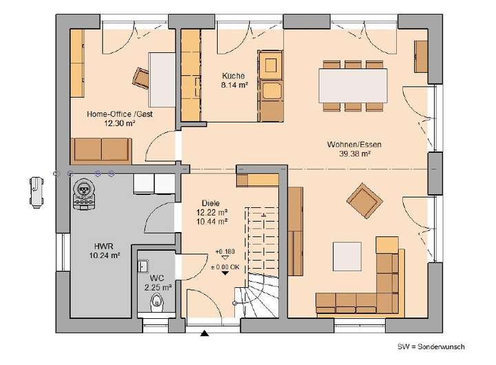
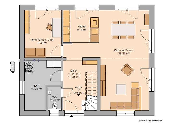
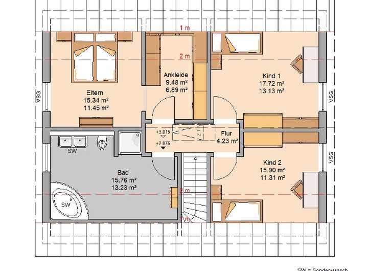
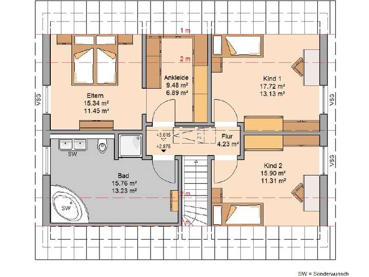
Architektenhaus Anto präsentiert sich vielfältig auf zwei Etagen mit einem innovativen Grundriss, der Wünsche wahr werden lässt. Im Erdgeschoss betreten Sie das Haus durch eine geräumige Diele, die offen in die Küche übergeht. Die Küche wird zum Mittelpunkt des Wohnbereiches. Direkt daneben befindet sich der Esstisch, wo man gemeinsam isst und Zeit verbringt. Der Wohnbereich mit Couch und TV schließt daran an und lädt zum Entspannen ein. Neben der Küche führt eine Tür in das praktische Home-Office. Ebenfalls im Erdgeschoss sind ein Hauswirtschaftsraum und ein Gäste-WC vorhanden. Abgerundet wird das Satteldachhaus im Dachgeschoss mit einem Elternschlafzimmer mit einer Ankleide, zwei Kinderzimmer und einem geräumigen Familienbad. Dieses Haus wird nach Ihren individuellen Wünschen geplant und ausgestattet!
Starker Baupartner gesucht? Dann ab zu Kern-Haus Chemnitz!
08393 Meerane
Die vollständige Adresse der Immobilie erhalten Sie vom Anbieter.
Auf Karte anzeigen
Die vollständige Adresse der Immobilie erhalten Sie vom Anbieter.

Finanzierungszertifikat
In nur zwei Minuten zu Ihrem persönlichen Finanzierungszertifkat.
Infos
Haustyp | Einfamilienhaus |
---|---|
Wohnfläche ca. | 143 m2 |
Grundstücksfläche | 1.052 m2 |
Zimmer | 5 |
Schlafzimmer | 3 |
Badezimmer | 1 |
Anzahl Garage/Stellplatz | 2 |
Kosten
Kaufpreis |
448.900 € |
---|---|
Provision | Nein |
Finanzierungsrechner:
Kaufpreis:
600.000 €
Eigenkapital:
600.000 €
Monatliche Rate
0 €
Effektiver Jahreszins
0 %
Sollzinsbindung
10 Jahre
Bausubstanz & Energieausweis
Baujahr | 2026 |
---|---|
Bauphase | Haus in Planung (projektiert) |
Objektzustand | Erstbezug |
Heizungsart | Wärmepumpe |
Energieausweis | liegt vor |
Energieausweistyp | Bedarfsausweis |
Energieeffizienzklasse | A+ |
Energieeffizienzklasse A+
- A+
- A
- B
- C
- D
- E
- F
- G
- H
- 0
- 25
- 50
- 75
- 100
- 125
- 150
- 175
- 200
- 225
- >250
Beschreibung des Objekts
Ausstattung
5 Zimmer, offene Küche, Diele, Flur, Bad, WC, Ankleide, Hauswirtschaftsraum Das gezeigte Traumhaus im Überblick: + Massivhaus als Ausbauhaus im Sinne der Bau- und Ausstattungsbeschreibung "Paulo" + Gebäudehülle ist für Effizienzhaus 40 optimiert + Inklusive Bodenplatte + Architekten- und Ingenieurleistungen (u. a. Bauantrag, Werkplanung, Statik und Wärmeschutzberechnung) + Zimmermannsmäßiger Dachstuhl aus Konstruktionsvollholz + Dacheindeckung mit Betondachsteinen von Braas mit Star-Oberfläche + Hochwertiger Kunstharz-Außenputz für eine langlebige Fassade + Haustür mit 5-fach-Sicherheitsverriegelung + Fenster mit 3-Scheiben-Wärmeschutzverglasung und Rollläden + Dachflächenfenster von Velux oder Roto + Granitaustrittsschwellen an bodengleichen Terrassentüren
Lage
Das schöne Grundstück befindet sich im Norden von Meerane und ist an einem Park gelegen. Der Preis versteht sich inklusive Grundstück und exklusive Baunebenkosten. Wir planen jedes Kern-Haus individuell nach Ihren Wünschen und passen es in das Grundstück ein.
Sonstige Angaben
Kern-Haus Kern-Haus baut individuelle und massive Architektenhäuser zu einem attraktiven Preis-Leistungs-Verhältnis – und das bereits mit einer Erfahrung seit 1980. Maximale Sicherheit bei Kern-Haus: + 10 Jahre Gewährleistung auf die wesentlichen Bauleistungen + Bis zu 18 Monate Festpreisbindung + 50 Jahre Gewährleistung auf das DuoTherm-Mauerwerk + Verbindliche Bauzeit + Zahlung nach Baufortschritt Preise und Auszeichnungen von Kern-Haus: - German Brand Award in den Jahren 2018 und 2021 - Hausbau Design Award: Sieger in den Jahren 2017, 2018, 2019, 2020, 2021, 2022 und 2023 - Deutscher Traumhauspreis: Sieger in den Jahren 2014, 2015, 2016 und 2018 und Silber 2017, 2020 und 2021 - Mittelstandspreis "Top 100" in den Jahren 2014, 2016, 2018, 2020 und 2022 - German Design Award im Jahr 2018 Weitere Informationen Der gezeigte Preis versteht sich inklusive Grundstück und exklusive der Baunebenkosten.
Grundriss
Grundriss Erdgeschoss
>

Grundriss Dachgeschoss
>

Adresse
08393 Meerane
Interessante Orte
Preis- und Lageinformationen
Preistrend für Bestandsimmobilien in Meerane