Auf den ersten Blick wirkt das Objekt wie ein "normales Reihenhaus", daher ist der zweite Blick umso interessanter, da hier die Raumaufteilung genial gelungen ist.
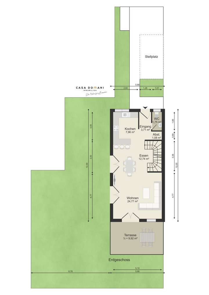
Das voll unterkellerte Haus hat einen großen Wohn-Essbereich mit bodentiefen Fenstern auf beiden Seiten zum Garten und zur Terrasse hin.
Das Anwesen liegt in einer sehr ruhigen Anwohnerstraße und das große Reihenendhaus hat einen uneinsehbaren Garten.
Das 1. Obergeschoss hat entweder 2 oder 3 Schlafzimmer und ein Bad, je nach Bedarf der Käufer.
Interessant ist jedoch das Dachgeschoss mit einer hausbreiten Dachterrasse von ca. 12,58 m² und einem offenen Studio.
Darüber hinaus befindet sich dort ein großzügiger Luftraum mit einer Treppe auf eine Galerie in den Spitzboden.
So kann auch in einer größeren Familie jeder seinen Rückzugsort in diesem Haus finden.
Zu der massiven Bauweise mit hochwertigen Designerelementen in Bädern und weiteren Ausstattungsmerkmalen gehört noch eine massiv erstellte Innentreppe, Fußbodenheizung und ein Kaminzug.
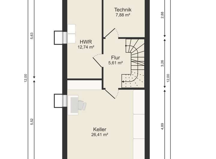
Das Untergeschoß hat Wohnraumhöhe und ebenfalls Fußbodenheizung.
A+ Designer - Haus mit 6 Zimmer- Dachterrasse und Garten
65232 Taunusstein
Die vollständige Adresse der Immobilie erhalten Sie vom Anbieter.
Auf Karte anzeigen
Die vollständige Adresse der Immobilie erhalten Sie vom Anbieter.
Finanzierungszertifikat
In nur zwei Minuten zu Ihrem persönlichen Finanzierungszertifkat.
Infos
| Haustyp | Reiheneckhaus |
|---|---|
| Etagenzahl | 4 |
| Wohnfläche ca. | 181 m2 |
| Nutzfläche | 57,61 m2 |
| Grundstücksfläche | 350 m2 |
| Bezugsfrei ab | nach Vereinbarung |
| Zimmer | 6 |
| Schlafzimmer | 4 |
| Badezimmer | 2 |
| Garage/Stellplatz | Außenstellplatz |
| Anzahl Garage/Stellplatz | 1 |
Kosten
| Kaufpreis |
780.000 € |
|---|---|
| Provision |
3% des Kaufpreises inkl. MwSt. |
Finanzierungsrechner:
Kaufpreis:
600.000 €
Eigenkapital:
600.000 €
Monatliche Rate
0 €
Effektiver Jahreszins
0 %
Sollzinsbindung
10 Jahre
Bausubstanz & Energieausweis
| Baujahr | 2022 |
|---|---|
| Bauphase | Haus fertig gestellt |
| Objektzustand | Neuwertig |
| Qualität der Austattung | Gehoben |
| Heizungsart | Wärmepumpe |
| Wesentliche Energieträger | Strom |
| Energieausweis | liegt vor |
| Energieausweistyp | Bedarfsausweis |
| Energieverbrauchskennwert | 25,7 kWh/(m²*a) |
Beschreibung des Objekts
Lage
Die Immobilie befindet sich in Taunusstein ca. 12 Autominuten von Wiesbaden.
In Laufnähe gibt es eine Bäckerei.
Weiter entfernt gibt es darüber hinaus mehrere Einkaufsmöglichkeiten, Schulen und Kindergärten.
Sonstige Angaben
Durch die Hessengeld Förderung ersparen Sie sich als Familie mit Kindern die Grunderwerbsteuer. Jedes Elternteil erhält 10.000,- € und das Kind jeweils 5.000,- € bis zur Höhe der Grunderwerbsteuer (6% des Kaufpreises), so erwerben Sie Ihre Erstimmobilie für die Eigennutzung.
Grundriss
EG mit Garten
>
>
OG
>
>
DG
>
>
SB
>
>
KG
>
>
Adresse
65232 Taunusstein
Interessante Orte
Preis- und Lageinformationen
Preistrend für Bestandsimmobilien in Taunusstein