Provisionsfrei für den Käufer! In meinem Angebot steht dieses charmante, teilunterkellerte Einfamilienhaus mit Garage und Wintergarten auf einem liebevoll angelegten Grundstück im Herzen von Hänigsen.
Dieses massive, solide und mit einer tollen Raumaufteilung stehende Haus ist von seiner Ausstattung und Raumgestaltung nicht mehr ganz so modern hergerichtet; so gab es doch aber über Jahrzehnte einer Familien ein tolles Zuhause - und so könnte es auch wieder werden.
Das im Ursprung im Jahre 1955 massiv erbaute Wohn- und Geschäftshaus wurde 1967 als Einfamilienhaus umgebaut und immer wieder gut instandgehalten und gepflegt. Die durchdachte Raumaufteilung bietet einer Familie mit insgesamt drei Schlafzimmern ideale Möglichkeiten.
Im Erdgeschoss befinden sich das geräumige Wohnzimmer mit dem angrenzenden großen Esszimmer, ein Gäste-WC mit Fenster und eine Küche mit Sitzbereich, von der aus der im Jahr 2018 erbaute Wintergarten zu betreten ist. Der Zugang zum schönen Garten schließt sich hier mit der Terrasse an.
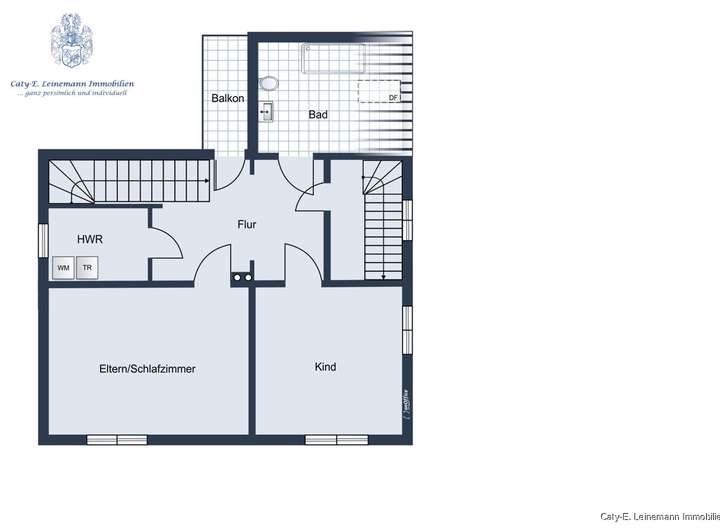
Das Obergeschoss bietet zwei große Schlaf- oder Kinderzimmer ohne Schrägen, einen zusätzlichen Hauswirtschaftraum, ein Badezimmer mit begehbarer Dusche und sogar einen Balkon.
Über einen weiteren, abgetrennten Flurbereich ist ein schöner ausgebauter Raum im Dachgeschoss über eine normale Geschosstreppe zu erreichen. Der weitere, bereits gedämmte Bereich des Daches kann als Stauraum gut genutzt werden. Das Dach ist gedämmt und mit einer langlebigen Tonpfanne eingedeckt.
Auf dem Grundstück findet sich angrenzend an die Garage ein Werkstattraum und ein gastgebendes Gartenhaus in massiver Holzbauweise. Ein weiterer von außen zugänglicher Raum des Hauses, der für Gartenutensilien genutzt werden kann und ein Duschbad bieten vielfältige Nutzungsmöglichkeiten für die schöne und ausgiebige Gartennutzung.
Das Haus ist teilunterkellert und bietet hier neben dem Heizungsraum genügend Platz und Abstellmöglichkeiten.
Durch meine zusätzliche Ausbildung mit IHK-Zertifizierung im Fachbereich Sanierung bei der Europäischen Immobilien Akademie stehe ich Ihnen gerne für die notwendigen und gewünschten Modernisierungs- und Sanierungsarbeiten beratend zur Seite. Lassen Sie sich von der Energieeffizienzklasse nicht abschrecken. Hierzu gibt es ganz besondere Fördermöglichkeiten.
Dieses Einfamilienhaus bietet das Potenzial um wieder ein wunderschönes Familienparadies zu werden.
Provisionsfrei für den Käufer! Charmantes Haus mit Teilkeller und tollem Garten für Ihre Familie
31311 Uetze
Die vollständige Adresse der Immobilie erhalten Sie vom Anbieter.
Auf Karte anzeigen
Die vollständige Adresse der Immobilie erhalten Sie vom Anbieter.
Finanzierungszertifikat
In nur zwei Minuten zu Ihrem persönlichen Finanzierungszertifkat.
Infos
| Haustyp | Einfamilienhaus |
|---|---|
| Etagenzahl | 3 |
| Wohnfläche ca. | 170 m2 |
| Nutzfläche | 80 m2 |
| Grundstücksfläche | 690 m2 |
| Bezugsfrei ab | nach Absprache |
| Zimmer | 5 |
| Schlafzimmer | 3 |
| Badezimmer | 1 |
| Garage/Stellplatz | Garage |
| Anzahl Garage/Stellplatz | 1 |
Kosten
| Kaufpreis |
222.000 € |
|---|---|
| Provision | Nein |
Finanzierungsrechner:
Kaufpreis:
600.000 €
Eigenkapital:
600.000 €
Monatliche Rate
0 €
Effektiver Jahreszins
0 %
Sollzinsbindung
10 Jahre
Bausubstanz & Energieausweis
| Baujahr | 1955 |
|---|---|
| Qualität der Austattung | Einfach |
| Heizungsart | Zentralheizung |
| Wesentliche Energieträger | Gas |
| Energieausweis | liegt vor |
| Energieausweistyp | Bedarfsausweis |
| Energieverbrauchskennwert | 369,1 kWh/(m²*a) |
| Energieeffizienzklasse | H |
369,1
kWh/(m²*a)
Energieeffizienzklasse H
- A+
- A
- B
- C
- D
- E
- F
- G
- H
- 0
- 25
- 50
- 75
- 100
- 125
- 150
- 175
- 200
- 225
- >250
Beschreibung des Objekts
Ausstattung
+ großzügiges Einfamilienhaus, 5 Zimmer
+ Wohn- und Esszimmer
+ drei Schlafzimmer
+ Zimmer im Obergeschoss ohne Schräge
+ elektrische Außenjalousien
+ Gäste-WC mit Fenster
+ Teilkeller
+ Dachgeschoss teilausgebaut
+ oberste Geschossdecke und Dach gedämmt
+ Garage und Werkstattraum
+ Wintergarten
+ Massives Holzgartenhaus im Garten
+ Brunnen zur Gartenbewässerung
Der Energieausweis liegt vor und wird mit dem Exposé verschickt.
Durch die Eigentümer wurde aktuell der individuelle Sanierungsfahrplan (iSFP) für besondere Fördermaßnahmen beantragt und ist bereits registriert.
Lage
Hänigsen gehört zur Gemeinde Uetze und liegt im nordöstlichen Teil der Region Hannover.
Der Ort selbst hat seinen ländlichen Charakter beibehalten können, bietet aber alle Möglichkeiten um den täglichen Bedarf zu decken.
Kindergarten und Grundschule sind in der nahen Umgebung zum Objekt. Weiterführende Schule sind direkt in Uetze zugeordnet. Gute Einkaufsmöglichkeiten, Restaurants, unterschiedlichste Ärzte, wie Allgemeinmediziner, Zahnärzte, Kinderarzt, Physiotherapeuten, sowie viele Vereine mit unterschiedlichsten Spaten und Veranstaltungen und auch ein örtliches Freibad runden das Ortsgeschehen ab.
Der ÖPNV ist gut und die B3 als Verbindungsstrecke zwischen Hannover und Celle und Anbindung an die Autobahnen A2, A7 und A37 ist innerhalb von 12 Minuten zu erreichen.
Sonstige Angaben
Alle Angaben in diesem Exposé wurden nach bestem Wissen und Gewissen des Eigentümers gemacht. Die Firma Caty-E. Leinemann Immobilien kann keine Gewährleistung für die Richtigkeit und Vollständigkeit der Angaben übernehmen. Fotos, Texte und Grafiken unterliegen dem Copyright der Firma Caty-E. Leinemann Immobilien und in Teilen der Space Renovator GmbH.
Dieses Exposé ist nur für Sie persönlich bestimmt. Eine Weitergabe an Dritte ist an meine ausdrückliche Zustimmung gebunden und unterbindet nicht meinen Provisionsanspruch bei Zustandekommen eines Vertrages. Alle Gespräche sind über mich zu führen. Bei Zuwiderhandlung behalte ich mir Schadenersatz bis zur Höhe der Provisionsansprüche ausdrücklich vor. Zwischenverkauf ist nicht ausgeschlossen.
Grundriss
Skizze Grundriss Erdgeschoss
>
>
Skizze Grundriss Obergeschoss
>
>
Skizze Grundriss Dachgeschoss
>
>
Skizze Grundriss Teilkeller
>
>
Adresse
31311 Uetze
Interessante Orte
Preis- und Lageinformationen
Preistrend für Bestandsimmobilien in Uetze