Viel Platz, viele Möglichkeiten – Charmantes Zweifamilienhaus mit großem Grundstück und moderner Ausstattung Zum Verkauf steht ein großzügiges Zweifamilienhaus, das im Jahr 1971 erbaut und 1997 umfassend modernisiert wurde. Die Immobilie befindet sich auf einem weitläufigen Grundstück von ca. 820 m² und überzeugt mit einer Wohnfläche von rund 185 m², verteilt auf insgesamt 7 Zimmer. Durch den professionellen Umbau zum Zweifamilienhaus bietet das Objekt flexible Wohnkonzepte – ideal für Mehrgenerationenhaushalte, Familien mit Platzbedarf oder als Kapitalanlage. Zwei Wohneinheiten mit durchdachter Raumaufteilung: Im Erdgeschoss erwartet Sie eine stilvoll gestaltete Hauptwohnung, die mit einem großzügigen Wohnbereich zum Verweilen einlädt. Der fließende Übergang vom gemütlichen Wohnzimmer zur angrenzenden Küche mit Essbereich schafft eine offene, einladende Atmosphäre – perfekt für gesellige Stunden mit Familie und Freunden. Zwei der insgesamt drei behaglichen Schlafzimmer befinden sich ebenfalls auf dieser Ebene und bieten individuelle Rückzugsorte. Ein modernes, hochwertig ausgestattetes Badezimmer rundet das Wohnkonzept harmonisch ab. Das Obergeschoss ist über eine separate Außentreppe erreichbar und bildet eine eigenständige Wohneinheit – ideal für Großeltern, erwachsene Kinder oder zur Vermietung. Hier stehen Ihnen ein weiteres Wohnzimmer, ein Schlafzimmer, ein Badezimmer sowie eine kompakte, funktionale Küche zur Verfügung. Die klare Trennung der beiden Einheiten ermöglicht ein hohes Maß an Privatsphäre und Flexibilität. Energetisch optimiert & liebevoll gepflegt: Im Rahmen der umfassenden Modernisierung im Jahr 1997 wurde die Fassade mit einem hochwertigen Klinker inklusive Wärmeschutz versehen und das Dach energetisch saniert (inkl. Dämmung und Dampfsperre). Diese Maßnahmen sorgen für hervorragende Isolierungswerte und tragen entscheidend zur Energieeffizienz sowie zum Werterhalt des Gebäudes bei. Eine zentrale Heizungsanlage versorgt beide Einheiten zuverlässig mit angenehmer Wärme. Außenbereich mit Wohlfühlfaktor: Das gepflegte Grundstück begeistert mit vielfältigen Nutzungsmöglichkeiten – von entspannter Gartenidylle bis zu lebendigen Grillabenden. Ein echtes Highlight ist die fest installierte Außenküche, die zum Mittelpunkt geselliger Veranstaltungen im Freien wird. Dank automatischer Bewässerungsanlage und Mähroboter gestaltet sich die Gartenpflege äußerst komfortabel – so bleibt Ihnen mehr Zeit zum Genießen. Lage & Umfeld: Die Immobilie befindet sich in ruhiger Wohnlage mit angenehmem Wohnumfeld und guter Infrastruktur. Einkaufsmöglichkeiten, Schulen, Kindergärten sowie Anbindungen an den öffentlichen Nahverkehr sind bequem erreichbar – ein Standort, der sowohl für Familien als auch für Pendler attraktiv ist. Fazit: Vielseitigkeit trifft Wohnkomfort: Ob als großzügiges Familiendomizil, Mehrgenerationenhaus oder renditestarke Kapitalanlage – diese Immobilie überzeugt durch ihre flexible Nutzung, ihre hochwertige Ausstattung und ihren gepflegten Zustand. Überzeugen Sie sich selbst vom Potenzial dieses besonderen Objekts – eine Besichtigung lohnt sich!
Zweifamilienhaus, oder viel Platz für die Familie
29339 Wathlingen
Die vollständige Adresse der Immobilie erhalten Sie vom Anbieter.
Auf Karte anzeigen
Die vollständige Adresse der Immobilie erhalten Sie vom Anbieter.

Finanzierungszertifikat
In nur zwei Minuten zu Ihrem persönlichen Finanzierungszertifkat.
Infos
Haustyp | Mehrfamilienhaus |
---|---|
Wohnfläche ca. | 185 m2 |
Nutzfläche | 55 m2 |
Grundstücksfläche | 820 m2 |
Zimmer | 7 |
Schlafzimmer | 3 |
Badezimmer | 2 |
Garage/Stellplatz | Garage |
Anzahl Garage/Stellplatz | 1 |
Kosten
Kaufpreis |
299.000 € |
---|---|
Provision |
Käuferprovision beträgt 3,57 % (inkl. MwSt.) des beurkundeten Kaufpreises |
Finanzierungsrechner:
Kaufpreis:
600.000 €
Eigenkapital:
600.000 €
Monatliche Rate
0 €
Effektiver Jahreszins
0 %
Sollzinsbindung
10 Jahre
Bausubstanz & Energieausweis
Baujahr | 1971 |
---|---|
Bauphase | Haus fertig gestellt |
Objektzustand | Gepflegt |
Qualität der Austattung | Normal |
Heizungsart | Zentralheizung |
Wesentliche Energieträger | Öl |
Energieausweis | liegt vor |
Energieausweistyp | Bedarfsausweis |
Energieverbrauchskennwert | 201,2 kWh/(m²*a) |
Energieeffizienzklasse | G |
201,2
kWh/(m²*a)
Energieeffizienzklasse G
- A+
- A
- B
- C
- D
- E
- F
- G
- H
- 0
- 25
- 50
- 75
- 100
- 125
- 150
- 175
- 200
- 225
- >250
Beschreibung des Objekts
Ausstattung
Sanierungen: Umbau zum Zweifamilienhaus in 1997; 1997 Klinker mit Wärmeschutz neu; Dachdämmung mit Dampfsprerre neu 2022; Außentreppe zum OG 2006; Bewässerung Garten und Mähroboter; Außenküche im Garten; Kellerfenster und Türen in 2021 neu; Wintergarten komplett saniert mit Isolierung in 2022; Garage zum Teil z. T. saniert in 2022; Pool mit Pumpe; inkl. EBK mit E-Geräten im EG;
Lage
Die Immobilie befindet sich in der charmanten Gemeinde Wathlingen, gelegen im Landkreis Celle in Niedersachsen. Mit rund 6.000 Einwohnern bietet Wathlingen eine attraktive Kombination aus ländlicher Ruhe und guter Anbindung an die Städte Celle, Hannover und Braunschweig. Der Ort überzeugt durch eine gut ausgebaute Infrastruktur: Einkaufsmöglichkeiten, Ärzte, Apotheken, Kindergärten und Schulen sind bequem erreichbar. Für Pendler ist die Lage besonders attraktiv – die Bundesstraße B214 sowie die Nähe zur B3 und zur A7 ermöglichen schnelle Verbindungen in die umliegenden Städte. Der Bahnhof in Ehlershausen ist in wenigen Minuten mit dem Auto erreichbar und bietet Anschluss an den Regionalverkehr Richtung Hannover. Wathlingen selbst bietet zahlreiche Freizeit- und Naherholungsmöglichkeiten: Ob Spaziergänge in der Natur, Sportvereine, ein reges Vereinsleben oder kulturelle Veranstaltungen – hier wird Lebensqualität großgeschrieben. Der nahegelegene Fuhsekanal sowie mehrere Grünflächen und Spielplätze machen den Ort besonders familienfreundlich. Die ruhige Wohnlage der Immobilie in einem gewachsenen Wohngebiet unterstreicht das angenehme, naturnahe Wohngefühl – perfekt für alle, die entspannte Umgebung mit guter Erreichbarkeit verbinden möchten.
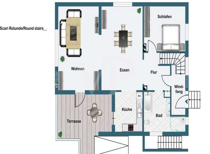
Grundriss
ZFH_OG_Wathlingen
>

ZFH_Wathlingen_EG
>

Adresse
29339 Wathlingen
Interessante Orte
Preis- und Lageinformationen
Preistrend für Bestandsimmobilien in Wathlingen