1981 wurde dieses großzügig geschnittene Haus in beliebter Gegend von Billstedt in ruhiger Sackgassenlage errichtet. Die Fassade ist mit einem hellen Stein verklinkert und das Satteldach mit einer dunklen Betonpfanne belegt. Die zweifach verglasten soliden Holzfenster stammen aus dem Baujahr des Hauses. 2017 wurden die Fenster im Keller und im Erdgeschoss des Hauses teilweise durch neue Kunststofffenster ersetzt. Außenrollläden sorgen für Ihre Sicherheit und Privatsphäre. Eine Gasheizung von 2005 versorgt das Haus mit Wärme und Warmwasser. Eine Modernisierung des Innenbereichs hat in den letzten Jahren stattgefunden.
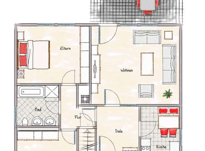
Das Erdgeschoss teilt sich in eine große Eingangsdiele, eine Küche mit Einbauküche von 2013, ein großes Wohnzimmer, einen Flur sowie zwei weitere Zimmer auf. Das Gäste-WC auf dieser Ebene wurde in einen Abstellraum umgebaut, ein Rückbau ist möglich. Das Bad ist zur Zeit in einem rohbauähnlichen Zustand, die Fertigstellung mit Fliesen und Armaturen erfolgt Käuferseitig.
Das Dachgeschoss wurde ursprünglich als Einliegerwohnung genutzt. Daher verfügt ein Zimmer über entsprechende Küchenanschlüsse. Des Weiteren befindet sich auf dieser Ebene noch ein Wannenbad sowie zwei weitere Zimmer.
Das bewährte Holzständerbauwerk sorgt für ein gutes Raumklima und bietet optimale Möglichkeiten, sofern Sie trotz des gut durchdachten Grundrisses noch eigene Änderungswünsche in die Tat umsetzen möchten.
Der Vollkeller bietet Ihnen reichlich Platz. Praktisch ist der zusätzliche Kellerzugang über die teilweise überdachte Außentreppe.
Herzstück des gepflegten Gartens ist die großzügige Terrasse, die sich gut geschützt hinter dem Haus befindet. Die Garage bietet Platz für zwei Fahrzeuge. An diesem Gebäude wurde das Flachdach bereits modernisiert.
Mit insgesamt sechs Zimmern, darunter fünf Schlafzimmer, finden alle Familienmitglieder ihren eigenen Rückzugsort. Daher eignet sich diese Immobilie sowohl für die große Familie als auch als Mehrgenerationen-Haus.
Vereinbaren Sie gerne einen Besichtigungstermin.
6-Zimmer-Einfamilienhaus mit Vollkeller!
22119 Hamburg
Die vollständige Adresse der Immobilie erhalten Sie vom Anbieter.
Auf Karte anzeigen
Die vollständige Adresse der Immobilie erhalten Sie vom Anbieter.
Finanzierungszertifikat
In nur zwei Minuten zu Ihrem persönlichen Finanzierungszertifkat.
Infos
| Haustyp | Einfamilienhaus |
|---|---|
| Etagenzahl | 1 |
| Wohnfläche ca. | 155 m2 |
| Grundstücksfläche | 470 m2 |
| Zimmer | 6 |
| Schlafzimmer | 5 |
| Badezimmer | 2 |
| Garage/Stellplatz | Garage |
| Anzahl Garage/Stellplatz | 2 |
Kosten
| Kaufpreis |
598.000 € |
|---|---|
| Provision |
3,57 % inkl. ges. MwSt. |
Finanzierungsrechner:
Kaufpreis:
600.000 €
Eigenkapital:
600.000 €
Monatliche Rate
0 €
Effektiver Jahreszins
0 %
Sollzinsbindung
10 Jahre
Bausubstanz & Energieausweis
| Baujahr | 1981 |
|---|---|
| Bauphase | Haus fertig gestellt |
| Objektzustand | Gepflegt |
| Qualität der Austattung | Normal |
| Heizungsart | Zentralheizung |
| Wesentliche Energieträger | Gas |
| Energieausweis | liegt vor |
| Energieausweistyp | Verbrauchsausweis |
| Energieverbrauchskennwert | 144,4 kWh/(m²*a) |
| Energieeffizienzklasse | E |
144,4
kWh/(m²*a)
Energieeffizienzklasse E
- A+
- A
- B
- C
- D
- E
- F
- G
- H
- 0
- 25
- 50
- 75
- 100
- 125
- 150
- 175
- 200
- 225
- >250
Beschreibung des Objekts
Ausstattung
Vollkeller, Doppelgarage
teilweise modernisiert
große Terrasse
ruhige Lage
ideal für große Familien
Einliegerwohnung möglich
Lage
In dem Stadtteil Billstedt, nur 7,4 km östlich vom Stadtzentrum, befindet sich ein charmantes Einfamilienhaus, das ideal für Familien mit Kindern ist. Die Immobilie bietet ein städtisches Flair und ist nur wenige Gehminuten von der nächsten Bushaltestelle bzw. Bahnstation entfernt. Die Autobahnauffahrt Hamburg-Jenfeld ist in weniger als 5 Minuten mit dem Auto erreichbar.
Familien mit Kindern werden die Nähe zu Bildungseinrichtungen schätzen. Eine Schule und eine Grundschule sind nur wenige Gehminuten entfernt, und drei Kindergärten bieten eine gute Betreuung für die Kleinsten.
Die Freizeitgestaltung ist in Billstedt vielfältig. Restaurants, Sportvereine und das Bäderland Billstedt sind in nur wenigen Minuten zu erreichen. Mehrere Parks laden zum Entspannen und Bewegen ein.
In der Nähe des Einfamilienhauses befinden sich auch mehrere Einkaufsmöglichkeiten, wie Supermärkte, Bäckereien, Drogeriemärkte und ein Einkaufszentrum. Ein Baumarkt ist in der näheren Umgebung zu finden.
Sonstige Angaben
Die Grundrisse sind von uns gefertigt und dienen der allgemeinen Veranschaulichung. Wir übernehmen keine Gewähr für deren Richtigkeit.
Grundriss
Grundriss Erdgeschoss
>
>
Grundriss Dachgeschoss
>
>
Grundriss Keller
>
>
Adresse
22119 Hamburg
Interessante Orte
Preis- und Lageinformationen
Preistrend für Bestandsimmobilien in Billstedt