Dieses charmante Fachwerkhaus, erbaut um 1896, diente einst als das alte Schulhaus in Altendorf. Mit einer Wohnfläche von etwa 180 m² und einem Grundstück von 527 m² bietet dieses solide Einfamilienhaus jetzt ausreichend Platz für eine 4–5-köpfige Familie.
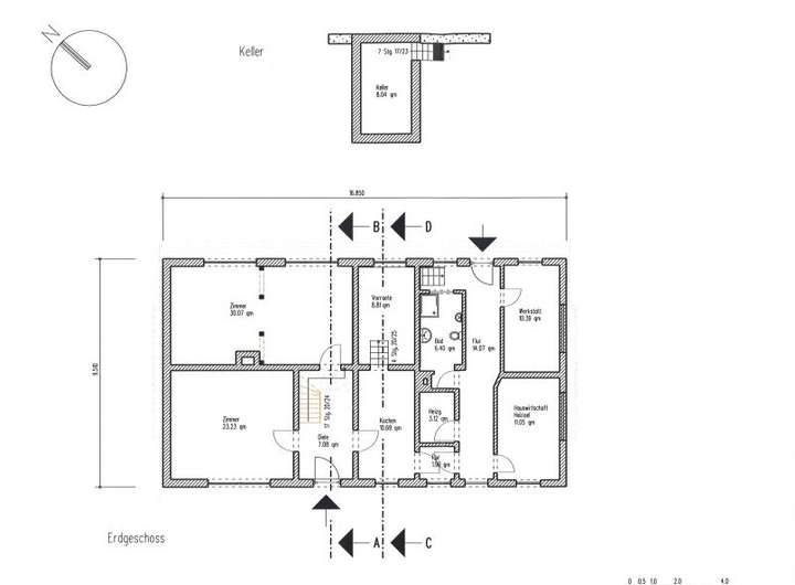
Der einladende Eingangsbereich führt direkt in das Erdgeschoss des Hauses. Hier befinden sich eine geräumige Küche mit angrenzender Speisekammer oder Wirtschaftsraum, ein großzügiges Wohnzimmer, ein Wohn-Schlafraum, ein Badezimmer, ein Heizungs- und Abstellraum sowie der Zugang zum Keller und zum Garten.
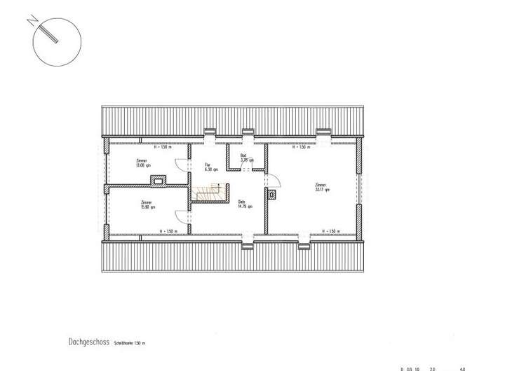
Im Obergeschoss erwartet Sie ein heller Flur mit Galerie, der die Räume im Obergeschoss verbindet. Darüber hinaus gibt es drei weitere Schlafräume und ein Badezimmer.
Das gepflegte Gartengrundstück mit einer überdachten und geschützten Terrasse bietet viel Platz für Freizeitaktivitäten. Der Garten lädt an schönen Sommertagen zur Erholung und gemütlichen Stunden im Freien ein.
Auf dem Grundstück sorgen eine Garage und vor dem Haus zusätzliche KFZ-Stellplätze für ausreichend Parkmöglichkeiten.
Keine Käuferprovision! Viel Platz für die Familie - Charmantes Fachwerkhaus in ruhiger Ortslage
38465 Brome
Die vollständige Adresse der Immobilie erhalten Sie vom Anbieter.
Auf Karte anzeigen
Die vollständige Adresse der Immobilie erhalten Sie vom Anbieter.
Finanzierungszertifikat
In nur zwei Minuten zu Ihrem persönlichen Finanzierungszertifkat.
Infos
| Haustyp | Einfamilienhaus |
|---|---|
| Wohnfläche ca. | 180 m2 |
| Nutzfläche | 30 m2 |
| Grundstücksfläche | 527 m2 |
| Bezugsfrei ab | sofort |
| Zimmer | 5 |
| Schlafzimmer | 4 |
| Badezimmer | 2 |
| Garage/Stellplatz | Garage |
| Anzahl Garage/Stellplatz | 1 |
Kosten
| Kaufpreis |
179.000 € |
|---|---|
| Provision | Nein |
Finanzierungsrechner:
Kaufpreis:
600.000 €
Eigenkapital:
600.000 €
Monatliche Rate
0 €
Effektiver Jahreszins
0 %
Sollzinsbindung
10 Jahre
Bausubstanz & Energieausweis
| Baujahr | 1896 |
|---|---|
| Letzte Sanierung | 2006 |
| Objektzustand | Gepflegt |
| Qualität der Austattung | Normal |
| Heizungsart | Zentralheizung |
| Wesentliche Energieträger | Öl |
| Energieausweis | liegt vor |
| Energieausweistyp | Bedarfsausweis |
| Energieverbrauchskennwert | 175,0 kWh/(m²*a) |
| Energieeffizienzklasse | F |
175,0
kWh/(m²*a)
Energieeffizienzklasse F
- A+
- A
- B
- C
- D
- E
- F
- G
- H
- 0
- 25
- 50
- 75
- 100
- 125
- 150
- 175
- 200
- 225
- >250
Beschreibung des Objekts
Ausstattung
Mauerwerk: Massiv
Keller: Massiv, Teilkeller nicht wohnlich ausgebaut
Außenwände: Klinker
Dämmung: Nicht bekannt
Dach: Faserzementplatten, Eindeckung ca. 1980
Elektrische Anlage: 3-adrig, ca. 1980
Verrohrung Frisch- und Abwasser: Kupfer, ca. 1980
Heizung: Zentralheizung, Öl, ca. 1992
Kamin: Kachelofen (Bestandsschutz)
Fenster: Holzfenster, 2-fach Verglasung, ca. 1980
Rollläden: Ja, manuell
Bodenbeläge: Parkett, Laminat, Teppich, PVC und Fliesen
Bad im EG: Dusche ebenerdig, Badewanne, Waschtisch, Fenster, ca. 2006
Bad im OG: Dusche, Waschbecken, Fenster
Raumaufteilung: Gute Raumaufteilung, 5 Räume
Terrasse: Überdachter Außensitzbereich
Garage/Stellplätze: Garage + KFZ-Stellplätze
Glasfaser: Giffinet (muss noch angeschlossen werden)
Lage
Das EFH befindet sich im Ortskern von Altendorf. Altendorf liegt ca. 25 PKW-Fahrminuten in nördlicher Richtung von Wolfsburg entfernt. Einkaufsmöglichkeiten und einen Bäcker erreichen
Sie über den Kirchsteig in 5 Minuten mit dem Fahrrad. Altendorf verfügt über ein intaktes Vereins-leben. In ca. 1 km Entfernung in Brome sind eine Grundschule, eine Kita, eine Krippe und weitere Einkaufsmöglichkeiten für den täglichen Bedarf, Ärzte, ein Freibad, eine Tankstelle sowie eine Apotheke vorhanden. Die Anbindung in nahe Ortschaften, nach Wolfsburg oder Gifhorn, wird durch öffentliche Verkehrsmittel sichergestellt.
Sonstige Angaben
Das Betreten des Grundstücks ist ohne vorherige Terminabsprache mit unserem Maklerbüro nicht gestattet!
Die Objektdaten wurden mit großer Sorgfalt zusammengestellt und basieren auf den Angaben der Verkäufer!
Für die Richtigkeit der im Exposé enthaltenen Angaben übernehmen wir keine Gewähr!
Von Grussendorf Immobilien & Finanzdienste werden keinerlei Zusicherungen über den baulichen Zustand einer Immobilie gemacht!
Besuchen Sie unsere Homepage unter: www.grussendorfimmobilien.de
Adresse
38465 Brome
Interessante Orte
Preis- und Lageinformationen
Preistrend für Bestandsimmobilien in Brome