Diese Doppelhaushälfte verbindet höchste Bauqualität mit nachhaltiger Architektur und traditionellem Charme. Errichtet in massiver Holzbauweise, erfüllt das Gebäude sämtliche aktuell geltenden Energiestandards – einschließlich der anspruchsvollen KfW 40 Vorgaben. Darüber hinaus ist es QNG-zertifiziert, was die konsequente Ausrichtung auf ökologisches und ressourcenschonendes Bauen unterstreicht. Das Grundstück ist eines der schönsten des gesamten Projektes.
Die klare Formsprache des Hauses orientiert sich an der typischen Hamburger Bauweise, wie man sie aus der historischen Deichstraße kennt. Ein markantes Spitzdach und die hochwertige Fassade verleihen dem Gebäude eine zeitlose, norddeutsche Eleganz, die sich harmonisch in die Umgebung einfügt.
Das Haus wurde besonders gesundheitsbewusst und allergikerfreundlich gebaut. Durch die sorgfältige Auswahl natürlicher, emissionsarmer Materialien entsteht ein wohngesundes Raumklima, das sich ideal für Familien mit Kindern und Menschen mit hohen Ansprüchen an Wohn- und Lebensqualität eignet.
Neben der hochwertigen energetischen Ausstattung bietet das Haus ein hohes Maß an Wohnkomfort. Die Häuser verfügen sowohl über einen Vorgarten als auch über einen Garten hinter dem Haus, von dem aus ein Teil der angrenzenden Naturfläche zugänglich ist. Diese Naturfläche wird ebenfalls Ihrem Grundstück zugewiesen und bietet herrliche Möglichkeiten für Ihre Kinder und Naturliebhaber.
Licht, Raum und Qualität – Innenarchitektur zum Wohlfühlen
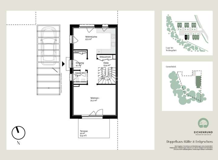
Bereits beim Betreten des Hauses wird deutlich: Hier trifft durchdachte Raumplanung auf hochwertige Ausstattung. Über einen einladenden Flur gelangen Sie zunächst in den Hauswirtschaftsraum sowie das modern gestaltete Gästebad. Von hier aus öffnet sich der Blick in den großzügigen, lichtdurchfluteten Wohn- und Essbereich.
Der Wohnbereich und die weiteren Stockwerke sind mit einem hochwertigen Eichenparkettboden ausgestattet, der in Kombination mit der massiven Holzbauweise ein besonders angenehmes und ruhiges Raumklima schafft. Die verbauten Armaturen und Sanitärobjekte – darunter Badewanne, WC, Waschbecken und Spültisch – stammen aus dem Hause Villeroy & Boch sowie Hansgrohe und unterstreichen den hohen Qualitätsanspruch dieses Hauses.
Durch das Wohnzimmer betreten Sie die großzügige Terrasse mit Südausrichtung, die einen herrlichen Blick in den Garten sowie in den angrenzenden Wald eröffnet.
Im ersten Obergeschoss erwarten Sie ein voll ausgestattetes Badezimmer mit Dusche und Badewanne, zwei Schlafräume sowie ein Technikraum. Der Flur auf dieser Etage bietet zudem ausreichend Platz für eine stilvolle Arbeitsecke – ideal für Homeoffice oder Ruhezone im Obergeschoss. Im zweiten Obergeschoss befinden sich zwei weitere Schlafzimmer sowie ein zusätzliches Badezimmer, das auch hier mit hochwertigen Armaturen und Fliesen ausgestattet ist.
+ Doppelhaushälfte mit Traumgarten – Wohnen direkt am Wald +
22397 Hamburg
Die vollständige Adresse der Immobilie erhalten Sie vom Anbieter.
Auf Karte anzeigen
Die vollständige Adresse der Immobilie erhalten Sie vom Anbieter.
Finanzierungszertifikat
In nur zwei Minuten zu Ihrem persönlichen Finanzierungszertifkat.
Infos
| Haustyp | Doppelhaushaelfte |
|---|---|
| Wohnfläche ca. | 151 m2 |
| Grundstücksfläche | 633 m2 |
| Bezugsfrei ab | sofort / nach Absprache |
| Zimmer | 5 |
| Schlafzimmer | 4 |
| Badezimmer | 3 |
| Garage/Stellplatz | Carport |
Kosten
| Kaufpreis |
990.000 € |
|---|---|
| Provision |
2,75 % (inkl. gesetzlicher MwSt.) Die vom Käufer zu entrichtende Provision beträgt 2,75 % (inkl. gesetzlicher MwSt.) vom beurkundeten Kaufpreis. Peters+Peters erhält vom Verkäufer eine Provision in gleichlautender Höhe. |
Finanzierungsrechner:
Kaufpreis:
600.000 €
Eigenkapital:
600.000 €
Monatliche Rate
0 €
Effektiver Jahreszins
0 %
Sollzinsbindung
10 Jahre
Bausubstanz & Energieausweis
| Bauphase | Haus im Bau |
|---|---|
| Objektzustand | Erstbezug |
| Qualität der Austattung | Luxus |
| Energieausweis | laut Gesetz nicht erforderlich |
Beschreibung des Objekts
Ausstattung
Wer ein Haus in Eichenrund betritt, spürt sofort: Hier wurde mitgedacht.
Hochwertige Materialien, markenstarke Ausstattung und ein warmes, klares Raumgefühl schaffen eine Atmosphäre, in der man sich sofort zu Hause fühlt. Die Verbindung von Funktion und Design zeigt sich in vielen Details: Fußbodenheizung auf allen Ebenen, rund 90 Steckdosen und 35 Lichtauslässe, edle Echtholzböden und massive Holztreppen – alles durchdacht für den Alltag.
Auch die Technik überzeugt: Im Erdgeschoss sorgen elektrische Rollos für Komfort, im Dachgeschoss Sonnenschutzrollos für ein angenehmes Raumklima. Drei Außensteckdosen führen bis in den Garten, die verputzten Wände sind bereits inklusive – ohne zusätzliche Kosten. Das Fliesenbudget ist in der Bauleistungsbeschreibung festgelegt, sodass sich jedes Detail individuell aussuchen lässt. Auf dem Dach: langlebige Tondachziegel sowie eine leistungsstarke Photovoltaikanlage mit 8,0 kW Peak.
Auch draußen stimmt das Bild:
Jede Einheit verfügt über einen eigenen Garten mit Terrasse.
Das Carport für dieses Haus ist bereits inklusive.
Individuelle Extras machen Ihr Zuhause komplett:
• Batteriespeicher für die PV-Anlage
• KNX-Elektrik für intelligente Haussteuerung
So entsteht ein Wohnkonzept, das nicht nur schön, sondern auch zukunftssicher ist – mit viel Freiraum für Ihre eigenen Vorstellungen.
Energieausweis liegt zur Fertigstellung vor.
Lage
Willkommen in Lemsahl-Mellingstedt – einem charmanten Stadtteil im grünen Norden Hamburgs. Die Gegend besticht besonders durch ihre zahlreichen Naturschutzgebiete und die idyllische, naturnahe Lage. Ideal für alle, die gerne ins Grüne blicken, Ruhe genießen – und dennoch in nur rund 30 Autominuten das Herz der Hamburger Innenstadt erreichen möchten.
Nur etwa drei Minuten entfernt liegt der renommierte Golfclub Treudelberg, eingebettet in eine weitläufige Parklandschaft mit Wasserläufen. Neben dem Sportangebot lädt das Gelände zu entspannten Spaziergängen ein. Mitglieder profitieren zudem von einer ausgezeichneten Gastronomie und einer wohltuend ruhigen Atmosphäre. Die Umgebung bietet eine Vielzahl an Naherholungsgebieten – etwa das Wittmoor oder das Rodenbeker Quellental. Diese eignen sich hervorragend für Spaziergänge mit Familie oder Freunden sowie für Aktivitäten wie Reiten, Paddeln, Radfahren oder Wandern.
In Lemsahl-Mellingstedt finden Sie alle Schulformen bis hin zur Oberstufe. Für den täglichen Bedarf sorgt der EDEKA Radtke vor Ort. Wer Lust auf ein größeres Shopping-Erlebnis hat, erreicht das beliebte Alstertal-Einkaufszentrum (AEZ) in nur 12 Autominuten – hier finden sich zahlreiche Geschäfte für jeden Geschmack. Die Bushaltestelle Fiersbarg liegt nur etwa zwei Gehminuten entfernt. Von dort aus bringen Sie die Buslinien 176 und 276 bequem zum nächstgelegenen Bahnhof Poppenbüttel, der eine direkte Anbindung an das Hamburger Verkehrsnetz bietet.
Auch die überregionale Anbindung ist ideal: Die Autobahnen A1 und A7 sind in jeweils rund 25 Minuten erreichbar.
Sonstige Angaben
PETERS+PETERS ist Ihr starker Immobilienpartner - sowohl beim Kauf und Verkauf von Wohn- und Anlageimmobilien als auch bei der Wohnraumvermietung.
"Wir halten Wort" ist bei uns keine Floskel, sondern Unternehmensmaxime.
Mit unserer Schwesterfirma PETERS+BURKHARDT Grundstücksverwaltung GmbH bieten wir auch professionellen Hausverwaltungsservice, mehr unter www.pbimmo.de.
Peters+Peters Wohn- und Anlageimmobilien GmbH, IVD Mitgliedsunternehmen
Immobilienverband Deutschland,
Mittelweg 22
20148 Hamburg-Rotherbaum
Rufen Sie uns an Tel. 040 / 44 40 01
www.ppimmo.de
Adresse
22397 Hamburg
Interessante Orte
Preis- und Lageinformationen
Preistrend für Bestandsimmobilien in Lemsahl-Mellingstedt