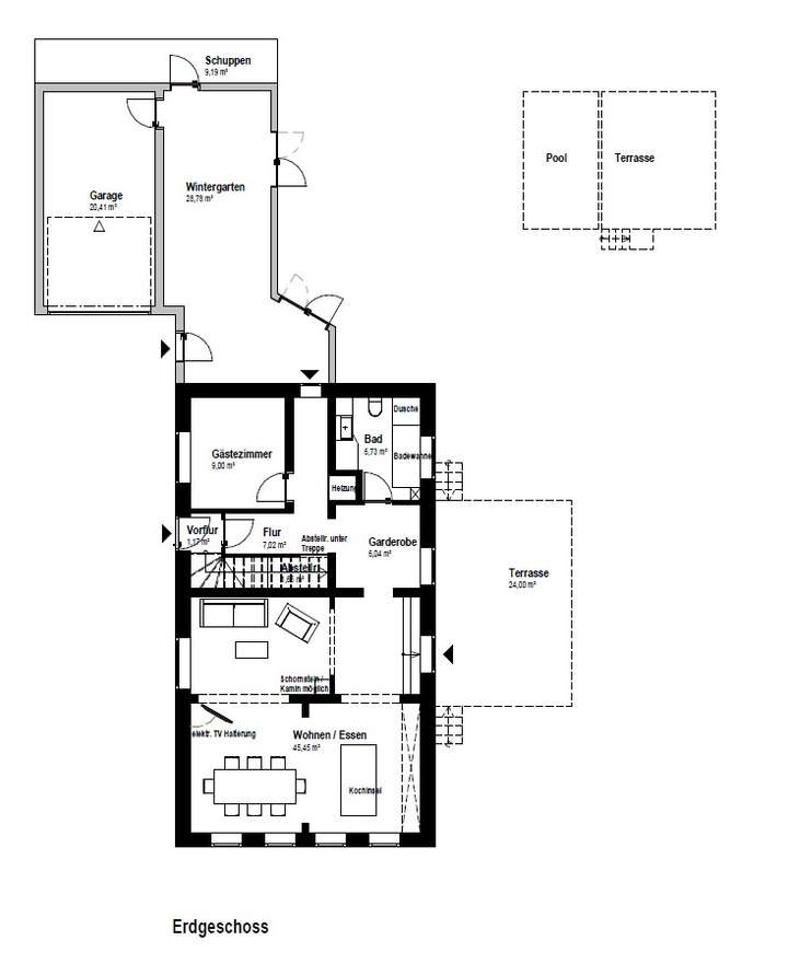
Dieses stilvoll modernisierte Ein- bis Zweifamilienhaus aus dem Jahr 1908 vereint historischen Charme mit modernem Wohnkomfort – und das in zentraler, familienfreundlicher Lage mitten in Rastede. Auf einem ca. 579m² großen, vollständig eingefriedeten Grundstück bietet die Immobilie nicht nur viel Raum, sondern auch eine liebevoll gestaltete Gartenanlage mit Apfel-, Kirsch- und Pflaumenbaum, zwei Terrassen sowie einem beheizbaren Pool mit Gegenstromanlage und Hochterrasse – ein echtes Highlight für entspannte Stunden im Freien.
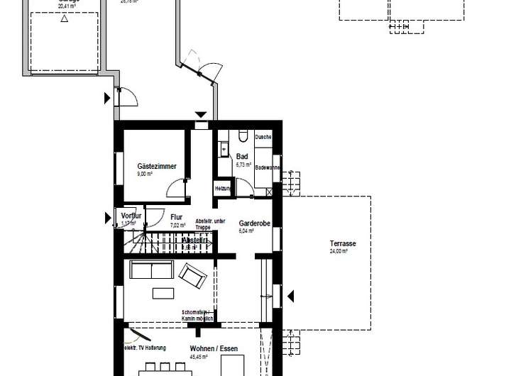
Die Wohnfläche von ca. 171m² erstreckt sich über zwei Etagen mit insgesamt fünf flexibel nutzbaren Zimmern. Im Erdgeschoss erwartet Sie ein lichtdurchfluteter Wohn- und Essbereich mit direktem Zugang zum Garten, ein modernes Tageslichtbad mit Dusche, Badewanne und WC sowie ein weiteres Zimmer – ideal als Gäste-, Kinder- oder Arbeitsbereich.
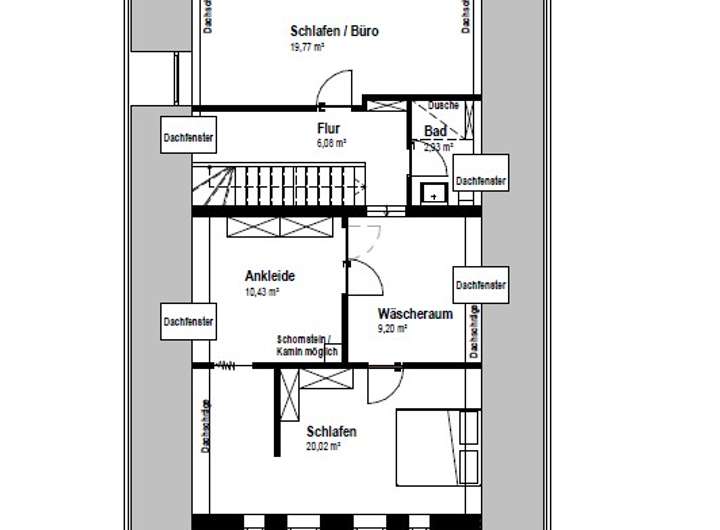
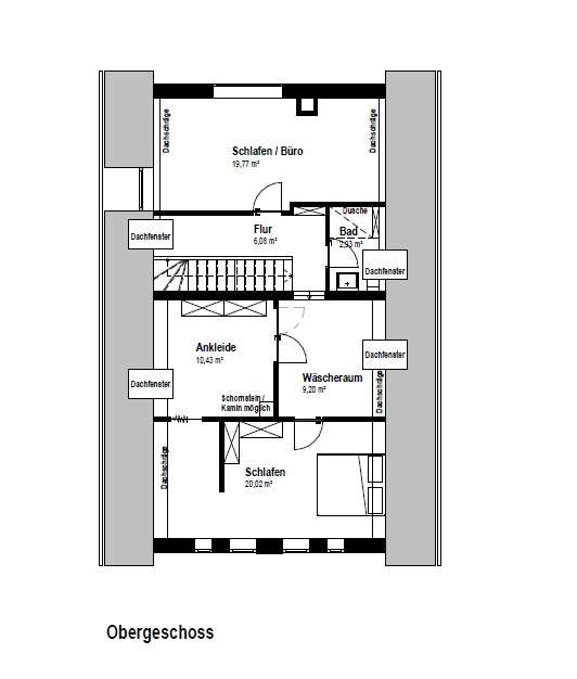
Im Obergeschoss befinden sich ein großzügiges Schlafzimmer mit direkter Ankleide, ein zweites Tageslichtbad mit Dusche und WC sowie ein weiteres Zimmer, das aktuell als Büro genutzt wird. Die Raumaufteilung erlaubt eine flexible Nutzung: Ob als großzügiges Einfamilienhaus, für Mehrgenerationen oder als Zweifamilienhaus , alle nötigen Anschlüsse sind vorhanden.
Technisch und optisch befindet sich das Haus in einem top Zustand. Es verfügt über eine hochwertige Einbauküche, Smarthome-Steuerung, elektrische Jalousien, moderne Zimmertüren mit Glaseinsatz sowie durchgehend verlegte Parkettdielen – sogar auf Treppen und Fensterbänken. Sämtliche Heizungs- und Elektroleitungen wurden erneuert, ebenso wie Datenkabel, Netzwerkdosen und TV-Anschlüsse.
Eine geräumige Garage mit elektrischem Sektionaltor, ein großzügiger Geräteraum sowie eine praktische Teilunterkellerung mit Hausanschlüssen und Stauraum ergänzen das Gesamtbild dieser gepflegten Immobilie.
Nutzen Sie die Chance auf ein vielseitiges Zuhause in Top-Lage.
Weitere Infos oder Besichtigungstermine gerne auf Anfrage.
Liebhaberstück im Zentrum von Rastede – modernisiert mit Gefühl und Geschmack
26180 Rastede
Die vollständige Adresse der Immobilie erhalten Sie vom Anbieter.
Auf Karte anzeigen
Die vollständige Adresse der Immobilie erhalten Sie vom Anbieter.
Finanzierungszertifikat
In nur zwei Minuten zu Ihrem persönlichen Finanzierungszertifkat.
Infos
| Haustyp | Einfamilienhaus |
|---|---|
| Etagenzahl | 2 |
| Wohnfläche ca. | 171 m2 |
| Grundstücksfläche | 579 m2 |
| Bezugsfrei ab | nach Vereinbarung |
| Zimmer | 5 |
| Schlafzimmer | 3 |
| Badezimmer | 2 |
| Garage/Stellplatz | Garage |
| Anzahl Garage/Stellplatz | 1 |
Kosten
| Kaufpreis |
550.000 € |
|---|---|
| Provision |
2,5 % zzgl. MwSt. |
Finanzierungsrechner:
Kaufpreis:
600.000 €
Eigenkapital:
600.000 €
Monatliche Rate
0 €
Effektiver Jahreszins
0 %
Sollzinsbindung
10 Jahre
Bausubstanz & Energieausweis
| Baujahr | 1908 |
|---|---|
| Objektzustand | Modernisiert |
| Heizungsart | Zentralheizung |
| Wesentliche Energieträger | Gas |
| Energieausweis | liegt vor |
| Energieausweistyp | Bedarfsausweis |
| Energieverbrauchskennwert | 245,8 kWh/(m²*a) |
| Energieeffizienzklasse | G |
245,8
kWh/(m²*a)
Energieeffizienzklasse G
- A+
- A
- B
- C
- D
- E
- F
- G
- H
- 0
- 25
- 50
- 75
- 100
- 125
- 150
- 175
- 200
- 225
- >250
Beschreibung des Objekts
Ausstattung
Grunddaten
- Baujahr Haupthaus: 1908
- Baujahr Anbau und Garage: 1978
- Grundstücksfläche: ca. 579m²
- Wohnfläche: ca. 171,00m²
- Zimmeranzahl: 5 (flexibel nutzbar)
- Nutzungsmöglichkeiten: Ein-oder Zweifamilienhaus, Mehrgenerationshaus möglich
- Vollständig eingefriedetes Grundstück
- Etagen: 2
Innenausstattung
- Hochwertige Einbauküche und Smarthome-Steuerung
- Lichtdurchfluteter Wohn-/Essbereich mit Zugang zum Garten
- Zwei moderne Tageslichtbäder mit Dusche und Badewanne
- Schlafzimmer mit Ankleide sowie separates Büro im Obergeschoss
- Parkettdielen im gesamten Haus inkl. Treppe und Fensterbänke
- Elektrische Jalousien und moderne Zimmertüren mit Glaseinsatz
- Neue Datenkabel, Datendosen und TV-Halterung
Außenbereich
- Liebevoll angelegter Garten mit Apfel-, Kirsch- und Pflaumenbaum
- Zwei Terrassen (eine in Holz-, eine in Massivbauweise)
- Beheizbarer Pool mit Gegenstromanlage und Hochterrasse
- Hochwertiger Aluminiumzaun zur Straßenseite
- Teilunterkellerung mit Hausanschlüssen und Stauraum
- Garage mit elektrischem Sektionaltor und großem Geräteraum
Lage
Die Immobilie befindet sich in zentraler, äußerst begehrter Wohnlage von Rastede – in der Friedrichstraße, einer ruhigen Seitenstraße mit gepflegtem Umfeld und angenehmer Nachbarschaft. Hier wohnen Sie mitten im Ort und genießen dennoch ein hohes Maß an Privatsphäre und Lebensqualität.
Alle Dinge des täglichen Bedarfs – darunter Einkaufsmöglichkeiten, Ärzte, Apotheken, Cafés und Restaurants – sind bequem fußläufig erreichbar. Auch Kindergärten, Schulen sowie Freizeit- und Sportangebote befinden sich in unmittelbarer Nähe und machen diese Lage besonders attraktiv für Familien.
Die gute Anbindung an den öffentlichen Nahverkehr sowie die Nähe zur A29 sorgt für eine schnelle Erreichbarkeit der Städte Oldenburg und Wilhelmshaven – ideal für Pendler. Der nahegelegene Schlosspark Rastede sowie zahlreiche Rad- und Spazierwege laden zu Erholung im Grünen ein.
Sonstige Angaben
Wir freuen uns auf Ihre SCHRIFTLICHE Anfrage.
Bitte füllen Sie die Kontaktdaten VOLLSTÄNDIG aus. Um Ihre Anfrage schnell und fachgerecht beantworten zu können benötigen wir Ihren vollständigen Namen, Ihre E-Mail Adresse, eine Telefonnummer unter der wir Sie erreichen können und Ihre Adresse.
Bitte haben Sie Verständnis dafür, dass wir Ihnen nur dann detaillierte Informationen zu der Immobilie zukommen lassen können.
Beste Grüße,
Jan Schmolke Immobilien & Investments
Grundriss
Grundriss_Obergeschoss
>
>
Grundriss_Erdgeschoss
>
>
Adresse
26180 Rastede
Interessante Orte
Preis- und Lageinformationen
Preistrend für Bestandsimmobilien in Rastede