Willkommen in einem Zuhause mit besonderem Charme und beeindruckendem Potenzial: Dieses freistehende Einfamilienhaus überzeugt durch seine einzigartige Grundstücksgröße, stilvolle Wohnräume mit Charakter und eine Lage, wie sie in Alt-Warmbüchen nur selten zu finden ist. Mit ca. 150 m² Wohnfläche bietet das Haus ein durchdachtes Raumkonzept mit viel Flexibilität. Bereits beim Betreten des Grundstücks eröffnen sich vielfältige Nutzungsmöglichkeiten: Zwei Freiplätze, ein Carport sowie eine Garage sorgen für bequemes Parken – ideal für Familien mit mehreren Fahrzeugen oder Hobbyhandwerker. Das gesamte Grundstück ist eingezäunt und vermittelt direkt ein Gefühl von Geborgenheit und Privatsphäre. Der Eingangsbereich des Hauses führt Sie in ein durchdachtes Raumensemble mit Möglichkeiten: Zwei separate Zimmer, die aktuell über ein Durchgangszimmer verbunden sind, lassen sich bei Bedarf leicht trennen – perfekt für Homeoffice, Gäste oder ein zusätzliches Kinderzimmer. Über den großzügigen Flur sind alle Zimmer miteinander verbunden. Das Herzstück des Hauses ist das großzügige Wohnzimmer mit seiner ganz eigenen architektonischen Handschrift. Keine reinen Rechtecke, sondern spannende Raumkanten, charmante Winkel und ein Grundriss mit Charakter – hier wurde mitgedacht. Große, teilweise dreifach verglaste Fensterfronten sorgen für ein lichtdurchflutetes Ambiente und geben den Blick in alle Richtungen frei: auf den Garten, zum Eingangsbereich sowie zur seitlich gelegenen Terrasse, die das Wohnzimmer durch eine elegante Schiebetür optisch und funktional erweitert. Ein hochwertiger Kaminofen sorgt an kalten Tagen für wohlige Wärme und rundet das stimmige Gesamtbild ab. Die moderne, hochwertig ausgestattete Küche überzeugt nicht nur optisch durch klare Linien und edle Materialien, sondern auch funktional. Hier trifft Design auf Alltagstauglichkeit – mit direktem Zugang in den hinteren Gartenbereich, ideal für Frühstück im Grünen oder entspannte Grillabende. Die Küche fügt sich harmonisch in das Wohnkonzept ein und ist ein echtes Highlight für Kochbegeisterte und Familienmenschen. Im Obergeschoss befinden sich zwei Schlafräume, welche besonders durch Größe und gute Lichtverhältnisse überzeugen. Das Badezimmer wurde vollständig modernisiert und bietet mit stilvollen neuen Fliesen, einer Dusche, einem Waschbecken und einem eingebauten Radio kleine Wohlfühlmomente im Alltag. Ein durchdachtes Detail, das modernen Komfort mit persönlichem Flair verbindet. Der Dachboden des Hauses ist gedämmt und dient als praktischer Stauraum, während ein separater Geräteschuppen im Außenbereich zusätzlichen Platz für Gartenutensilien oder Hobbyausrüstung bietet. Ein zusätzliches Highlight dieses Hauses offenbart sich auch draußen: Über 1.100 m² Grundstück mit Gartenidylle, eingebettet in altem Baumbestand, umrahmen das Grundstück wie eine grüne Oase. Eine natürlich gewachsene Lichtung im Zentrum schafft ein einmaliges Gefühl von Rückzug und Ruhe – ein Paradies für Naturliebhaber, Familien mit Kindern oder Hobbygärtner. Trotz seiner urigen Erscheinung ist der Garten äußerst gepflegt und birgt großes Gestaltungspotenzial – ein echter Rohdiamant. Der Garten bietet eröffnet zusätzlich noch bauliche Möglichkeiten: Mit einer Grundflächenzahl von 0,4 dürfen Sie bis zu 40% des Grundstücks bebaut werden. Dadurch besteht die Option, das bestehende Haus noch zu erweitern oder zusätzliche Flächen zu realisieren- sei es für einen Anbau eine Garage oder eine separate Wohneinheit.
Mehr als Zuhause - Einfamilienhaus mit Charakter & Gartenparadies!
30916 Isernhagen
Die vollständige Adresse der Immobilie erhalten Sie vom Anbieter.
Auf Karte anzeigen
Die vollständige Adresse der Immobilie erhalten Sie vom Anbieter.

Finanzierungszertifikat
In nur zwei Minuten zu Ihrem persönlichen Finanzierungszertifkat.
Infos
Haustyp | Einfamilienhaus |
---|---|
Etagenzahl | 2 |
Wohnfläche ca. | 149 m2 |
Nutzfläche | 141,9 m2 |
Grundstücksfläche | 1.103 m2 |
Bezugsfrei ab | nach Absprache |
Zimmer | 5 |
Schlafzimmer | 3 |
Badezimmer | 1 |
Garage/Stellplatz | Carport |
Anzahl Garage/Stellplatz | 1 |
Kosten
Kaufpreis |
549.000 € |
---|---|
Provision |
Provision gem. §656c BGB i.H.v. 3,57% brutto, gleichhoch Verkäufer. |
Finanzierungsrechner:
Kaufpreis:
600.000 €
Eigenkapital:
600.000 €
Monatliche Rate
0 €
Effektiver Jahreszins
0 %
Sollzinsbindung
10 Jahre
Bausubstanz & Energieausweis
Baujahr | 1961 |
---|---|
Objektzustand | Gepflegt |
Heizungsart | Öl-Heizung |
Wesentliche Energieträger | Öl |
Energieausweis | liegt vor |
Energieausweistyp | Bedarfsausweis |
Energieverbrauchskennwert | 363,5 kWh/(m²*a) |
Energieeffizienzklasse | H |
363,5
kWh/(m²*a)
Energieeffizienzklasse H
- A+
- A
- B
- C
- D
- E
- F
- G
- H
- 0
- 25
- 50
- 75
- 100
- 125
- 150
- 175
- 200
- 225
- >250
Beschreibung des Objekts
Lage
Altwarmbüchen gehört zur beliebten Gemeinde Isernhagen und zählt zu den begehrtesten Wohnlagen im nordöstlichen Speckgürtel von Hannover. Das Haus liegt besonders ruhig und grün – eingebettet in ein gewachsenes Wohnumfeld mit gepflegten Einfamilienhäusern, großzügigen Grundstücken und viel Privatsphäre. Hier leben Familien, die Wert auf Naturverbundenheit, Sicherheit und eine gute Infrastruktur legen. In fußläufiger Nähe befinden sich sowohl Kindergärten als auch eine Grundschule. Weiterführende Schulen sind bequem mit dem Fahrrad oder Bus erreichbar. Auch zahlreiche Spielplätze, Sportvereine und Freizeitmöglichkeiten in der Umgebung machen das Leben für Kinder abwechslungsreich und sorgen für eine aktive, gesunde Freizeitgestaltung. Einkaufen, Arztbesuche und Alltagserledigungen lassen sich in Alt-Warmbüchen und den angrenzenden Ortsteilen schnell und unkompliziert erledigen. Supermärkte, Bäckereien, Apotheken und Ärzte befinden sich in der Nähe – ebenso wie gemütliche Cafés und Restaurants für den entspannten Familienausflug. Die zahlreichen Felder, Wälder und Seen rund um Alt-Warmbüchen laden zu Spaziergängen, Fahrradtouren und gemeinsamen Erkundungen mit der Familie ein. Gleichzeitig ist die Anbindung hervorragend: In wenigen Fahrminuten erreichen Sie die A2 oder die A7 – ideal für Pendler. Auch Hannover ist sowohl mit dem Auto als auch mit dem öffentlichen Nahverkehr schnell und unkompliziert erreichbar. Wer für seine Familie ein Zuhause sucht, das Ruhe, Natur, Gemeinschaft und Infrastruktur vereint, wird in Alt-Warmbüchen fündig – und ganz besonders in dieser Lage, die nicht nur mit Größe, sondern auch mit Seltenheit überzeugt.
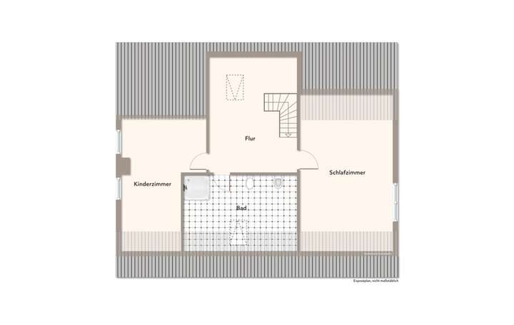
Grundriss
Grundriss
>

Grundriss
>

Grundriss
>

Grundriss
>

Adresse
30916 Isernhagen
Interessante Orte
Preis- und Lageinformationen
Preistrend für Bestandsimmobilien in Isernhagen