Dieses Einfamilienhaus in Gifhorn ist weit mehr als nur ein Zuhause. Es ist ein Ort, an dem Wohlfühlen, Großzügigkeit und Privatsphäre ineinanderfließen. Schon beim Ankommen entfaltet sich ein besonderer Eindruck: Die gepflasterte Zufahrt, die massive Garage mit elektrischem Tor und der einladende Eingangsbereich versprühen sofort ein Gefühl von Ankommen und Geborgenheit. Auf einer Wohnfläche von rund 244,99 m², ergänzt durch ca. 73,75 m² Nutzfläche, öffnet sich hier ein Raumangebot, das keine Wünsche offenlässt.
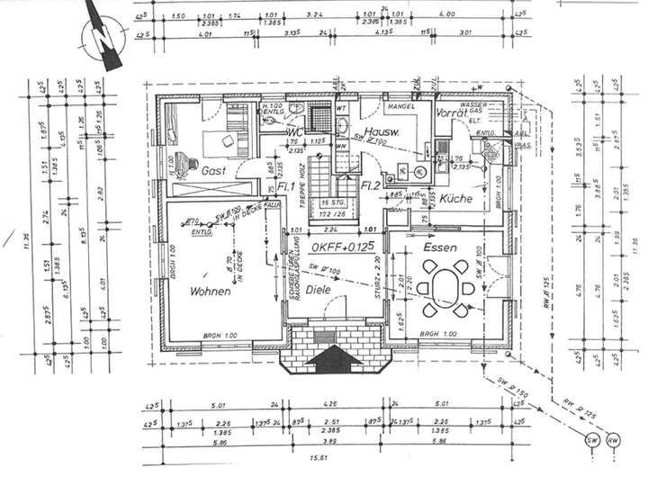
Das Erdgeschoss begrüßt Sie mit einer großzügigen Diele, die den Blick in verschiedene Richtungen freigibt. Zur linken Seite liegt ein lichtdurchflutetes Wohnzimmer mit großen Fensterfronten, die den Blick in den idyllischen Garten freigeben. Zur rechten Seite befindet sich das Esszimmer mit direkter Verbindung zur Küche über eine charmante Durchreiche. Von hier aus gelangen Sie auch auf die Terrasse, perfekt, um laue Sommerabende im Freien zu genießen oder mit Freunden draußen zu speisen. Die Küche selbst ist groß, funktional und bietet viel Raum für kulinarische Ideen. Ergänzt wird sie durch einen angrenzenden Hauswirtschaftsraum, der den Alltag erleichtert. Ein Gästezimmer mit eigenem Bad samt Dusche rundet das Erdgeschoss ab. Ein Rückzugsort für Besucher oder ideal als Arbeitszimmer.
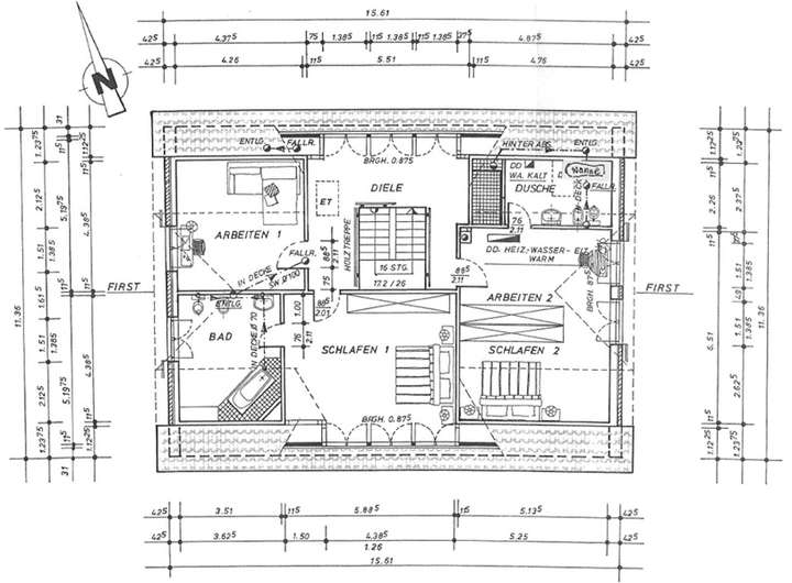
Im Obergeschoss setzt sich der großzügige Grundriss fort: Hier finden sich drei Schlafzimmer, die allesamt hell, freundlich und komfortabel geschnitten sind. Zwei dieser Räume verfügen über ein eigenes Badezimmer mit Badewanne. Eine echte Besonderheit, die den Wohnkomfort für Familien oder Paare spürbar erhöht. Über eine Holztreppe erreicht man den gedämmten Dachboden, der bereits für einen Ausbau vorbereitet ist. Hier könnte zusätzlicher Wohnraum entstehen, ob als Studio, Hobbybereich oder Homeoffice.
Exklusives Einfamilienhaus mit Wohlfühlcharakter, Privatsphäre & Ausbaupotenzial in Gifhorn
38518 Gifhorn
Die vollständige Adresse der Immobilie erhalten Sie vom Anbieter.
Auf Karte anzeigen
Die vollständige Adresse der Immobilie erhalten Sie vom Anbieter.
Finanzierungszertifikat
In nur zwei Minuten zu Ihrem persönlichen Finanzierungszertifkat.
Infos
| Haustyp | Einfamilienhaus |
|---|---|
| Etagenzahl | 1 |
| Wohnfläche ca. | 245 m2 |
| Nutzfläche | 74 m2 |
| Grundstücksfläche | 1.210 m2 |
| Bezugsfrei ab | sofort |
| Zimmer | 6 |
| Schlafzimmer | 4 |
| Badezimmer | 3 |
| Anzahl Garage/Stellplatz | 4 |
Kosten
| Kaufpreis |
669.000 € |
|---|---|
| Provision |
3,57 % Die Courtage in Höhe von 3,57 % des Kaufpreises inkl. der gesetzlichen Mehrwertsteuer ist vom Käufer zu tragen. Die Provision ist verdient und fällig mit Beurkundung des notariellen Kaufvertrags. Der Makler hat einen provisionspflichtigen Maklervertrag in gleicher Höhe mit dem Verkäufer abgeschlossen (§ 656c BGB). |
Finanzierungsrechner:
Kaufpreis:
600.000 €
Eigenkapital:
600.000 €
Monatliche Rate
0 €
Effektiver Jahreszins
0 %
Sollzinsbindung
10 Jahre
Bausubstanz & Energieausweis
| Baujahr | 1989 |
|---|---|
| Letzte Sanierung | 2012 |
| Bauphase | Haus fertig gestellt |
| Qualität der Austattung | Gehoben |
| Heizungsart | Gas-Heizung |
| Wesentliche Energieträger | Gas |
| Energieausweis | liegt zur Besichtigung vor |
Beschreibung des Objekts
Ausstattung
Die Ausstattung dieses Hauses verbindet durchdachte Bauweise mit modernen Annehmlichkeiten. Errichtet 1989, überzeugt es mit solider Substanz: Außenwände aus Porotonmauerwerk mit Verblendstein, ein elegantes Satteldach mit Krüppelwalm, hochwertige Holzfenster mit Rollläden und massive Innenwände. Diese Bauweise sorgt für ein behagliches Wohnklima und ist zugleich langlebig und wertbeständig.
Im Inneren prägen helle, großzügige Räume den Charakter. Große Fenster lassen reichlich Licht einfallen und schaffen ein freundliches Ambiente. Der Eingangsbereich öffnet sich zu Wohnzimmer und Esszimmer, perfekt für gesellige Runden und Familienleben. Die Küche überzeugt durch Größe und Funktionalität, ergänzt durch den praktischen Hauswirtschaftsraum. Das Gästezimmer mit eigenem Bad im Erdgeschoss macht Besucher unabhängig und bietet Flexibilität für jede Lebenssituation.
Im Obergeschoss erwarten Sie drei Schlafzimmer, die durch ihre Helligkeit und ihren Komfort bestechen. Zwei Bäder mit Badewannen sorgen für ein hohes Maß an Privatsphäre und Familienfreundlichkeit. Der gedämmte Dachboden eröffnet weiteres Potenzial: Ob zusätzlicher Wohnraum, Büro oder Atelier, die Möglichkeiten sind vielfältig.
Auch die Außenbereiche sind hochwertig gestaltet: Eine massive Garage mit elektrischem Tor, ein Abstellraum, mehrere Außenstellplätze sowie eine moderne Wallbox für Elektrofahrzeuge bieten Komfort und Zukunftssicherheit. Der weitläufige Garten ist pflegeleicht und gleichzeitig vielseitig nutzbar. Ob als Spielparadies für Kinder, Gemüsegarten oder private Ruheoase.
Alles in allem ist die Ausstattung dieses Hauses eine gelungene Mischung aus Funktionalität, Behaglichkeit und Exklusivität.
Lage
Das Haus befindet sich in einem ruhigen und gewachsenen Wohngebiet von Gifhorn. Hier erleben Sie die perfekte Balance zwischen naturnahem Wohnen und urbaner Erreichbarkeit. Die Nachbarschaft ist geprägt von Einfamilienhäusern, gepflegten Gärten und einer Atmosphäre, in der man sich sofort zuhause fühlt.
Einkaufsmöglichkeiten, Schulen, Kindergärten, Ärzte und Apotheken befinden sich in unmittelbarer Nähe. Familien profitieren von kurzen Wegen zu Bildungseinrichtungen und einem sicheren Umfeld für Kinder. Die Freizeitgestaltung wird durch nahegelegene Wälder, Seen und Sportmöglichkeiten bereichert, ideal für Spaziergänge, Fahrradtouren oder sportliche Aktivitäten.
Die Verkehrsanbindung ist exzellent: Über die Bundesstraße 4 erreichen Sie Braunschweig in kurzer Zeit, über die B188 gelangen Sie nach Wolfsburg. Damit eignet sich das Haus hervorragend für Berufspendler, die nach einem ruhigen Lebensmittelpunkt mit gleichzeitig optimaler Vernetzung suchen. Auch die Gifhorner Innenstadt mit ihren Geschäften, Restaurants und kulturellen Angeboten ist in wenigen Minuten erreichbar.
Besonders hervorzuheben ist die absolute Privatsphäre des Gartens. Ein Luxus, der in stadtnaher Lage selten geworden ist. So verbindet die Immobilie das Beste aus zwei Welten: Ruhe und Rückzug auf der einen Seite, schnelle Erreichbarkeit und städtisches Leben auf der anderen.
Sonstige Angaben
Dieses Einfamilienhaus bietet eine seltene Kombination: großzügige Wohnfläche von 244,99 m², zusätzliche 73,75 m² Nutzfläche und ein weitläufiges Grundstück von 1.210 m². Damit erfüllt es die Wünsche nach Platz, Flexibilität und einem Zuhause mit Zukunft. Der energetische Zustand ist solide: Laut Energieausweis (gültig bis 28.05.2029) liegt der Endenergieverbrauch bei 89,4 kWh/(m²*a) und entspricht der Energieeffizienzklasse C. Die wesentlichen Energieträger sind Gas und Strom, die Heizungsanlage wurde 2012 erneuert. Ergänzend gibt es Empfehlungen für Modernisierungen wie den hydraulischen Abgleich oder die Dämmung einzelner Leitungen – Maßnahmen, die das Haus für die Zukunft noch effizienter machen können.
Das Objekt überzeugt nicht nur durch seine Substanz, sondern auch durch sein Potenzial: Der ausgebaute Dachboden bietet Raum für individuelle Gestaltungsideen, der Garten ist eine Oase der Ruhe, und die Garage mit Wallbox macht das Haus bereit für die Mobilität von morgen.
Provisionshinweis:
Die Courtage in Höhe von 3,57 % des Kaufpreises inkl. der gesetzlichen Mehrwertsteuer ist vom Käufer zu tragen. Die Provision ist verdient und fällig mit Beurkundung des notariellen Kaufvertrags. Der Makler hat einen provisionspflichtigen Maklervertrag in gleicher Höhe mit dem Verkäufer abgeschlossen (§ 656c BGB).
Adresse
38518 Gifhorn
Interessante Orte
Preis- und Lageinformationen
Preistrend für Bestandsimmobilien in Gifhorn