Die im Jahr 2020 errichtete Doppelhaushälfte mit Carport präsentiert sich in einem neuwertigen Gesamtzustand und befindet sich in Bad Zwischenahn / Ekern – nur wenige Fahrminuten vom Zentrum Bad Zwischenahns entfernt.
Das Haus befindet sich im „Mühlenpark Ekern“ und bietet dank der ansprechenden Umgebung sowie der modernen, energieeffizienten Architektur eine angenehme Wohnatmosphäre – ideale Voraussetzungen für junge Familien!
Räumlichkeiten:
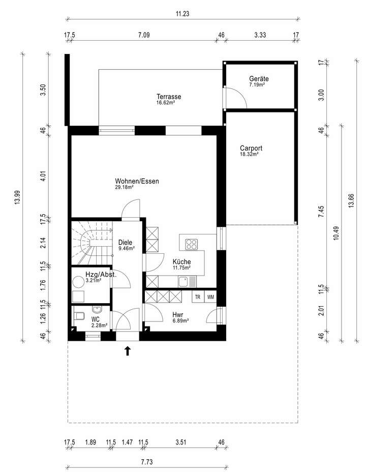
a) Erdgeschoss
Großzügiger und lichtdurchfluteter Wohn- und Essbereich mit offener Küche und Zugang zur Terrasse, Gäste-WC, Hauswirtschaftsraum mit Nebeneingang, Abstellraum und einer Eingangsdiele mit Treppenaufgang.
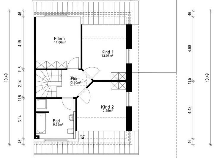
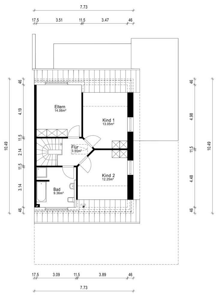
b) Dachgeschoss
Elternschlafzimmer, Badezimmer, zwei Kinderzimmer und Flur mit Zugang zum Dachboden (Abstellzwecke).
Die Wohnfläche beträgt ca. 115,38 m².
Die Nutzfläche verteilt sich auf ca. 25,51 m².
Das ca. 478 m² große Grundstück verfügt über einen regelmäßigen Zuschnitt und ist in seinen Grenzen von einer Hecke bzw. mit einem Zaun umstanden (Hundehaltung möglich).
Besonders hervorzuheben ist die Solarthermie auf dem Dach, Fußbodenheizung im gesamten Haus sowie die überdachte Terrasse in optimaler Sonnenausrichtung.
Die Hoffläche bietet eine Carportanlage mit einem angrenzenden und abschließbaren Geräteraum für Fahrräder und Mülltonnen. Die Hoffläche , wie auch die Gehwege zum und um das Haus und die Terrasse, mit grauen Betonsteinen befestigt.
Die Übergabe erfolgt nach Vereinbarung.
+++ Neuwertige Doppelhaushälfte in familienfreundlicher Lage in Bad Zwischenahn / Ekern +++
26160 Bad Zwischenahn
Die vollständige Adresse der Immobilie erhalten Sie vom Anbieter.
Auf Karte anzeigen
Die vollständige Adresse der Immobilie erhalten Sie vom Anbieter.
Finanzierungszertifikat
In nur zwei Minuten zu Ihrem persönlichen Finanzierungszertifkat.
Infos
| Haustyp | Doppelhaushaelfte |
|---|---|
| Wohnfläche ca. | 115 m2 |
| Nutzfläche | 25,51 m2 |
| Grundstücksfläche | 479 m2 |
| Bezugsfrei ab | nach Vereinbarung |
| Zimmer | 4 |
| Schlafzimmer | 3 |
| Badezimmer | 1 |
| Garage/Stellplatz | Carport |
| Anzahl Garage/Stellplatz | 1 |
Kosten
| Kaufpreis |
395.000 € |
|---|---|
| Provision |
Die Käuferprovision beträgt 3,57 % inkl. 19 % MwSt. vom beurkundeten Kaufpreis. |
Finanzierungsrechner:
Kaufpreis:
600.000 €
Eigenkapital:
600.000 €
Monatliche Rate
0 €
Effektiver Jahreszins
0 %
Sollzinsbindung
10 Jahre
Bausubstanz & Energieausweis
| Baujahr | 2020 |
|---|---|
| Objektzustand | Neuwertig |
| Qualität der Austattung | Gehoben |
| Heizungsart | Solar-Heizung |
| Wesentliche Energieträger | Gas |
| Energieausweis | liegt vor |
| Energieausweistyp | Bedarfsausweis |
| Energieverbrauchskennwert | 41,0 kWh/(m²*a) |
| Energieeffizienzklasse | A |
41,0
kWh/(m²*a)
Energieeffizienzklasse A
- A+
- A
- B
- C
- D
- E
- F
- G
- H
- 0
- 25
- 50
- 75
- 100
- 125
- 150
- 175
- 200
- 225
- >250
Beschreibung des Objekts
Lage
Die nächstgelegende Bushaltestelle ist nur ca. 300 m entfernt.
Die Entfernung bis zum Kurpark und zum Zwischenahner Meer beträgt nur etwa 2,5 km.
Alle einschlägigen Einkaufsmöglichkeiten, Ärzte, Apotheken sowie verschiedene Schularten sind in der näheren Umgebung (ca. 2 km) bequem zu erreichen.
Sonstige Angaben
Zu diesem Objekt liegt ein ausführliches Exposé mit weiteren Detailinformationen vor, das Sie gerne bei uns anfordern können.
Telefonische Erreichbarkeit:
Montag - Freitag: 8.00 Uhr - 12.30 Uhr und 14.00 Uhr bis 17.30 Uhr
Samstag: 9.00 Uhr -12.00 Uhr
Sie möchten Ihre Immobilie verkaufen.....
..... und suchen den passenden Käufer?
Unabhängig davon, ob Sie aktuell oder erst in unbestimmter Zeit Ihre Immobilie verkaufen möchten, ist eine fundierte Beratung bares Geld wert. Wir wissen, worauf es beim professionellen Verkauf Ihrer Immobilie ankommt.
Über 60 Jahre Marktpräsenz und tausende Vermittlungen sprechen für sich.
Für ein kostenfreies und informatives Beratungsgespräch stehen wir Ihnen jederzeit gerne zur Verfügung.
Grundriss
Grundriss Erdgeschoss
>
>
Grundriss Dachgeschoss
>
>
Adresse
26160 Bad Zwischenahn
Interessante Orte
Preis- und Lageinformationen
Preistrend für Bestandsimmobilien in Bad Zwischenahn